Ralph Wagner
Dallmer GmbH + Co. KG
Wiebelsheidestr. 25
59757 Arnsberg
Deutschland
Alle Inhalte von Dallmer
Produktserien Produkte / BIM-Daten Ausschreibungstexte CAD-Details Architekturobjekte Alle Inhalte anzeigenPassende Suchbegriffe zu Dallmer
Duschrinnen Rückstauverschlüsse Duschflächen Duschabläufe Bodenabläufe Kellerabläufe Dachabläufe Kunststoff-Abläufe Rohrbelüfter Barrierefreie Duschen Brandschutz Sanitärablaufarmaturen Geräteanschlussarmaturen Rohrformstücke Parkdeckabläufe Punkt-Entwässerung Ablaufgarnituren Abläufe Urinalspülungen Entwässerung Ablauftechnik Duschräume Sanitärräume Entwässerungsanlagen BadezimmerDALLMER Stausafe Rückstauverschluss RS
Dieses Produkt von Dallmer gibt es in 4 Varianten
Beschreibung
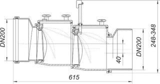
Rückstauverschluss Stausafe RSTyp 2 gemäß EN 13564-1:2002 (DN 100-DN 150)
Einsatzbereich nach DIN 1986-100:2002-03: geeignet für fäkalienfreies Abwasser
Ausführung:
– zwei automatisch wirkende Rückstauklappen aus Edelstahl
– zusätzliche Handabsperrung (
Downloads
Dokumente und Planungshilfen
Produkteigenschaften
Produktkategorie
Sicherungsarmaturen
Rückstauverschlüsse
Technische Bauteile
Entwässerungsanlagen
Medien, Stoffe
Abwasser
Abwasserverschmutzung
Werkstoff
Ablaufrichtung
Nennweite DN
Passende Inhalte zum Produkt "DALLMER Stausafe Rückstauverschluss RS"
Passende Produktserie
Passende Ausschreibungstexte 4
Alle anzeigenPassende CAD-Details 5
Alle anzeigenÄhnliche Hersteller
Das könnte Sie auch interessieren