Ralph Wagner
Dallmer GmbH + Co. KG
Wiebelsheidestr. 25
59757 Arnsberg
Deutschland
Alle Inhalte von Dallmer
Produktserien Produkte / BIM-Daten Ausschreibungstexte CAD-Details Architekturobjekte Alle Inhalte anzeigenPassende Suchbegriffe zu Dallmer
Duschrinnen Rückstauverschlüsse Duschflächen Duschabläufe Bodenabläufe Kellerabläufe Dachabläufe Kunststoff-Abläufe Rohrbelüfter Barrierefreie Duschen Brandschutz Sanitärablaufarmaturen Geräteanschlussarmaturen Rohrformstücke Parkdeckabläufe Punkt-Entwässerung Ablaufgarnituren Abläufe Urinalspülungen Entwässerung Ablauftechnik Duschräume Sanitärräume Entwässerungsanlagen BadezimmerDALLMER Stausafe Rückstauverschluss H
Dieses Produkt von Dallmer gibt es in 4 Varianten
Beschreibung
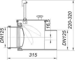
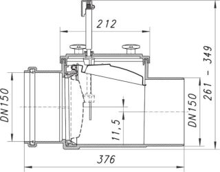
Rückstauverschluss Stausafe Hgeeignet für Regenwassernutzungsanlagen
Ausführung:
– automatisch wirkendende Rückstauklappe aus Edelstahl
– zusätzliche Handverriegelung (Notverschluss)
– Verschlussgestänge aus Edelstahl
– wartungsfreundliches Gehäuse aus
Downloads
Dokumente und Planungshilfen
Produkteigenschaften
Produktkategorie
Sicherungsarmaturen
Rückstauverschlüsse
Technische Bauteile
Entwässerungsanlagen
Medien, Stoffe
Abwasser
Abwasserverschmutzung
Werkstoff
Ablaufrichtung
Nennweite DN
Passende Inhalte zum Produkt "DALLMER Stausafe Rückstauverschluss H"
Passende Produktserie
Passende Ausschreibungstexte 4
Alle anzeigenPassende CAD-Details 5
Alle anzeigenÄhnliche Hersteller
Das könnte Sie auch interessieren