Ralph Wagner
Dallmer GmbH + Co. KG
Wiebelsheidestr. 25
59757 Arnsberg
Deutschland
Alle Inhalte von Dallmer
Produktserien Produkte / BIM-Daten Ausschreibungstexte CAD-Details Architekturobjekte Alle Inhalte anzeigenPassende Suchbegriffe zu Dallmer
Duschrinnen Rückstauverschlüsse Duschflächen Duschabläufe Kellerabläufe Bodenabläufe Dachabläufe Kunststoff-Abläufe Barrierefreie Duschen Rohrbelüfter Brandschutz Sanitärablaufarmaturen Geräteanschlussarmaturen Rohrformstücke Parkdeckabläufe Punkt-Entwässerung Abläufe Ablaufgarnituren Urinalspülungen Entwässerung Ablauftechnik Duschräume Sanitärräume Entwässerungsanlagen BadezimmerDownloads
Dokumente und Planungshilfen
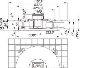
GTIN
4001636518392
HAN
518392
Produktkategorie
Abläufe
Technische Funktionen
Freispiegelentwässerung
Raumtypen
Badezimmer
Duschräume
Waschräume
Anschluss, Abdichtung
Anschlussmanschette, Anschlussfolie
Polymerbetonkragen mit Stahlmatte
Beheizbarkeit Ablauf
ohne Begleitheizung
Produkt
Ablauf mit Aufsatzstück
Werkstoff
Kunststoff
Stutzen-Ausführung
waagerecht
Nennweite DN
50
Passende Inhalte zum Produkt "DALLMER Schallschutzablauf CeraDrain Select"
Passendes CAD-Detail
Ähnliche Hersteller
Das könnte Sie auch interessieren