Ralph Wagner
Dallmer GmbH + Co. KG
Wiebelsheidestr. 25
59757 Arnsberg
Deutschland
Alle Inhalte von Dallmer
Produktserien Produkte / BIM-Daten Ausschreibungstexte CAD-Details Architekturobjekte Alle Inhalte anzeigenPassende Suchbegriffe zu Dallmer
Duschrinnen Rückstauverschlüsse Duschflächen Duschabläufe Kellerabläufe Bodenabläufe Dachabläufe Kunststoff-Abläufe Rohrbelüfter Barrierefreie Duschen Brandschutz Sanitärablaufarmaturen Rohrformstücke Geräteanschlussarmaturen Parkdeckabläufe Punkt-Entwässerung Abläufe Ablaufgarnituren Urinalspülungen Entwässerung Ablauftechnik Sanitärräume Duschräume Entwässerungsanlagen BadezimmerDALLMER DallFlex DallSafe Rückstau-Kellerablauf
Dieses Produkt von Dallmer gibt es in 3 Varianten
Beschreibung
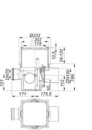
Rückstau-Kellerablauf Ballstau 200/1nach DIN EN 1253
Typ 5 gemäß EN 13564, Anwendungsbereich nach DIN 1986-100:2002-03: geeignet für fäkalienfreies Abwasser.
Ablaufstutzen DN 100 seitlich (3 Grad Gefälle)
Ausführung:
– automatisch wirkendes Ballventil
–
Downloads
Dokumente und Planungshilfen
Produktkategorie
Abläufe
Technische Funktionen
Entwässerung
Raumtypen
Keller
Beheizbarkeit Ablauf
Produkt
Werkstoff
Stutzen-Ausführung
Nennweite DN
Passende Inhalte zum Produkt "DALLMER DallFlex DallSafe Rückstau-Kellerablauf"
Passende Produktserie
Passende Ausschreibungstexte
Passende CAD-Details
Ähnliche Hersteller
Das könnte Sie auch interessieren