KESSEL SE + Co. KG
Bahnhofstr. 31
85101 Lenting
Deutschland
Alle Inhalte von KESSEL Entwässerungstechnik
Produktserien Produkte / BIM-Daten Ausschreibungstexte CAD-Details Architekturobjekte Alle Inhalte anzeigenPassende Suchbegriffe zu KESSEL Entwässerungstechnik
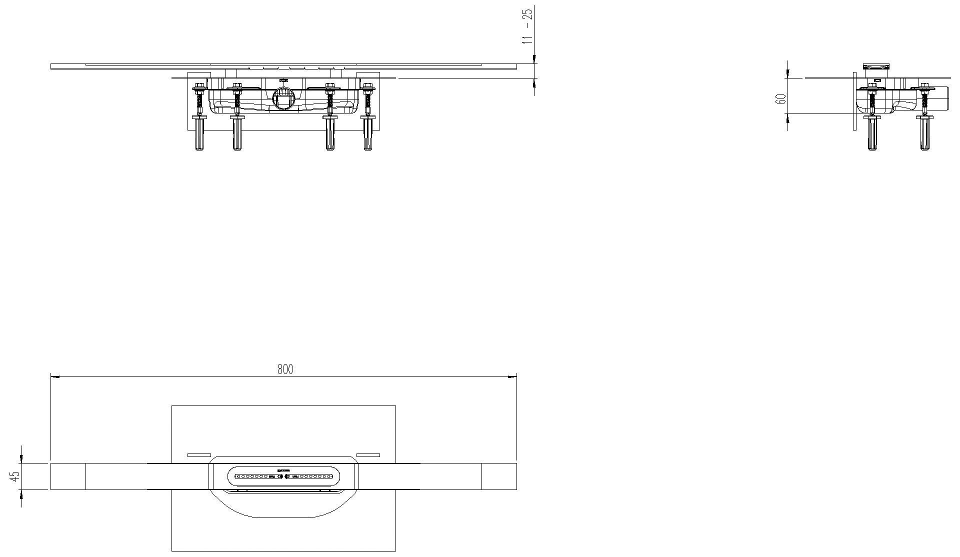
Rückstauschutz Abscheider Duschabläufe Duschrinnen Abwasserhebeanlagen Leichtflüssigkeitsabscheider Kläranlagen-Zubehör Entwässerungsanlagen Abläufe Entwässerung Ablauftechnik Ablauf-Zubehör Freispiegelentwässerung Böden Punktabläufe Punkt-Entwässerung Bodenentwässerung Fettabscheider Bodenabläufe Funktionsarmaturen Rückstauverschlüsse Sanitärräume BadezimmerKESSEL-Duschrinne Linearis Infinity 60 L: 800 mm, DN 40, Black, geb., Megastop
KESSEL Entwässerungstechnik
Passende Inhalte zum CAD-Detail "KESSEL-Duschrinne Linearis Infinity 60 L: 800 mm, DN 40, Black, geb., Megastop"
Passende Produktserie
Passendes Produkt
Passende Ausschreibungstexte 22
Alle anzeigenÄhnliche Hersteller
Das könnte Sie auch interessieren