Ralph Wagner
Dallmer GmbH + Co. KG
Wiebelsheidestr. 25
59757 Arnsberg
Deutschland
Alle Inhalte von Dallmer
Produktserien Produkte / BIM-Daten Ausschreibungstexte CAD-Details Architekturobjekte Alle Inhalte anzeigenPassende Suchbegriffe zu Dallmer
Duschrinnen Rückstauverschlüsse Duschflächen Duschabläufe Dachabläufe Bodenabläufe Kellerabläufe Kunststoff-Abläufe Rohrbelüfter Barrierefreie Duschen Brandschutz Sanitärablaufarmaturen Rohrformstücke Geräteanschlussarmaturen Parkdeckabläufe Punkt-Entwässerung Ablaufgarnituren Abläufe Urinalspülungen Entwässerung Ablauftechnik Duschräume Sanitärräume Entwässerungsanlagen BadezimmerDALLMER Duschrinne CeraLine Nano F 800 mm, DN 50
Dallmer
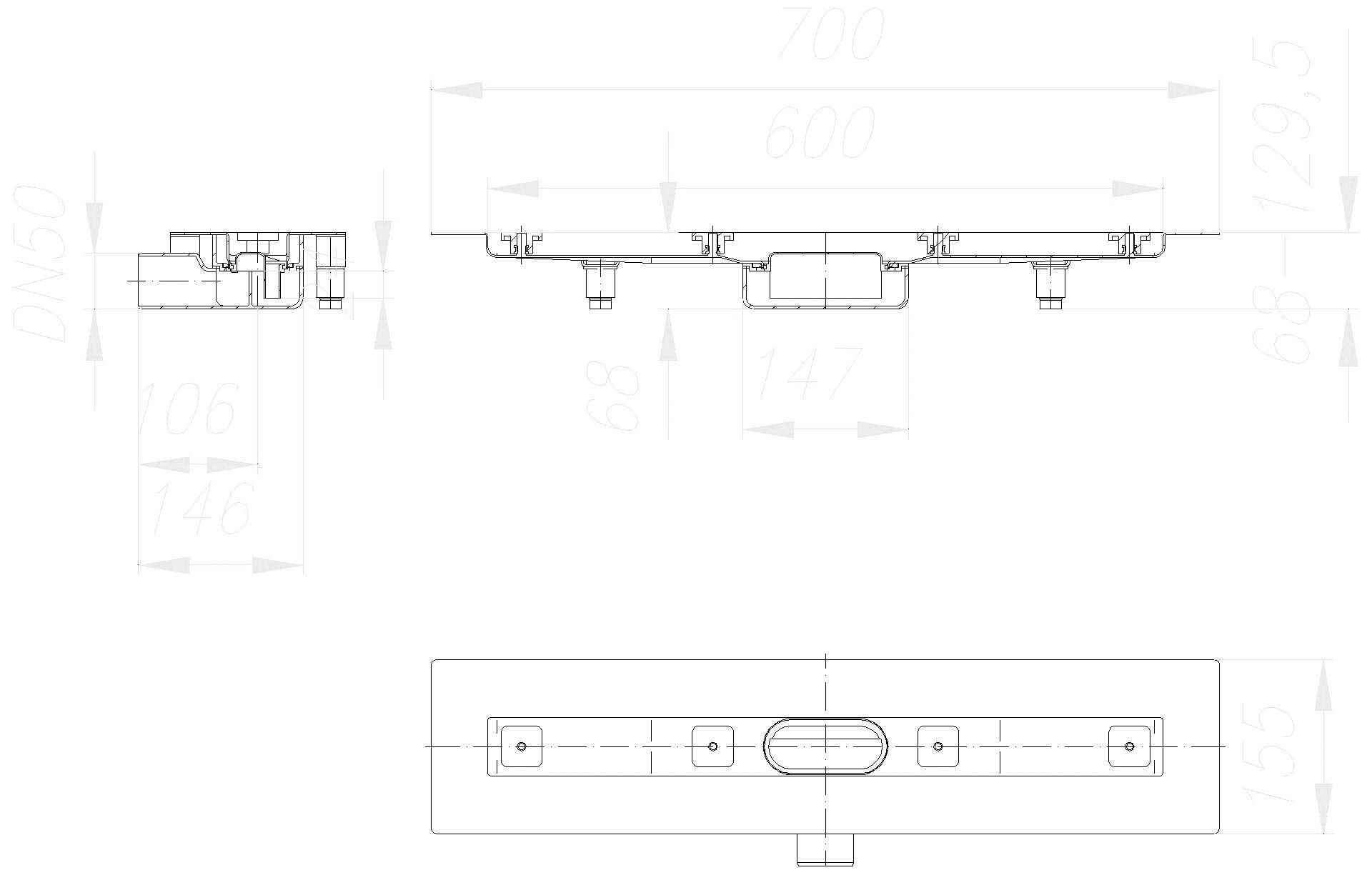
DALLMER Duschrinne CeraLine Nano F 800
Linienentwässerung aus Edelstahl 1.4301 für die Montage in der Fläche.
Mit höhenverstellbaren Justierschrauben für Abdeckungen 800 x 40 mm. Rinnenkörper mit Selbstreinigungseffekt durch innenliegendes Gefälle, Einbaumaße 900 mm x 155 mm.
Mit 50 mm breitem, umlaufenden, besandeten Flansch zum sicheren Anschluss an Verbund- und Bahnenabdichtungen gemäß DIN 18534, schallentkoppelnden Montagefüßen zur Höheneinstellung, Bauschutz, Fliesenanschlag zur gleichmäßigen Fliesenverlegung, vormontiertem Ablaufgehäuse aus Polyproylen mit herausnehmbarem Geruch- und Reinigungsverschluß, Ablaufstutzen DN 50 horizontal. Ablaufleistung gemessen nach DIN 1253: 0,46 l/s.
- Menge: ..........
- Einheit: Stk
- EP: ..........
- GP: ..........
Passende Inhalte zum Ausschreibungstext "DALLMER Duschrinne CeraLine Nano F 800 mm, DN 50"
Passendes Produkt
Passende CAD-Details 9
Alle anzeigenDownloads
Planungshilfen
Ähnliche Hersteller
Das könnte Sie auch interessieren