Text 1.447 von 1.613

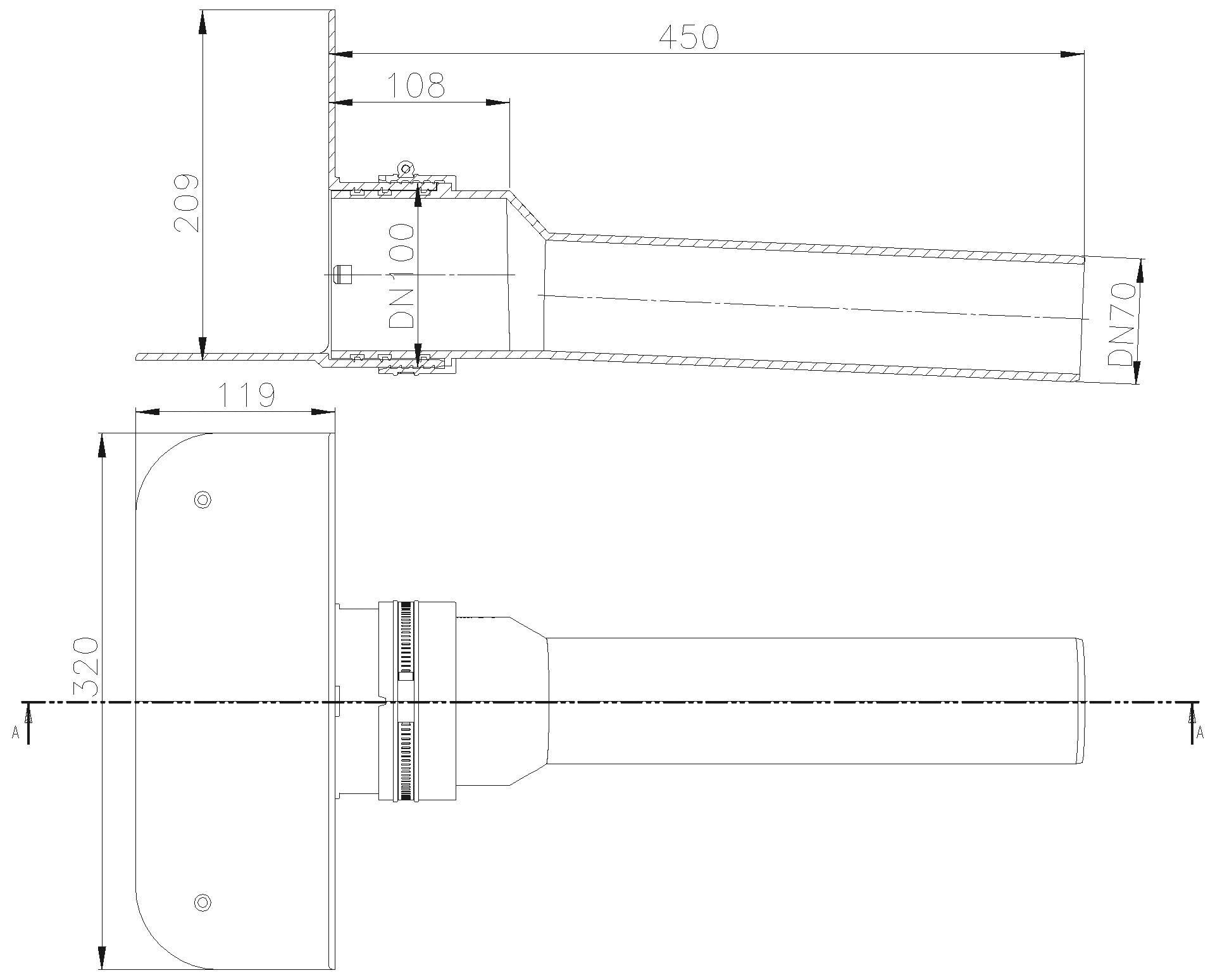
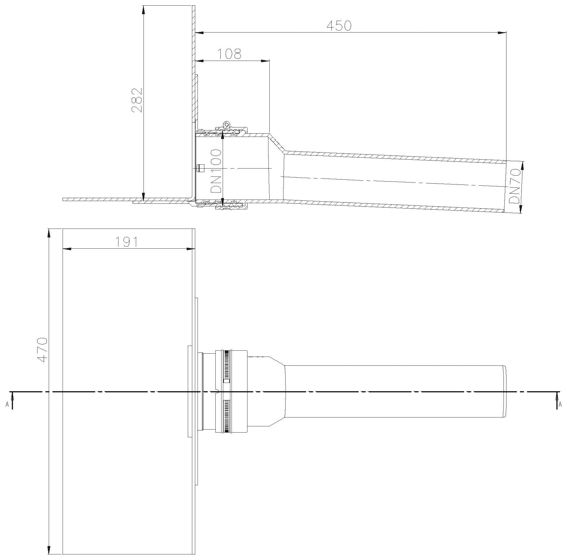
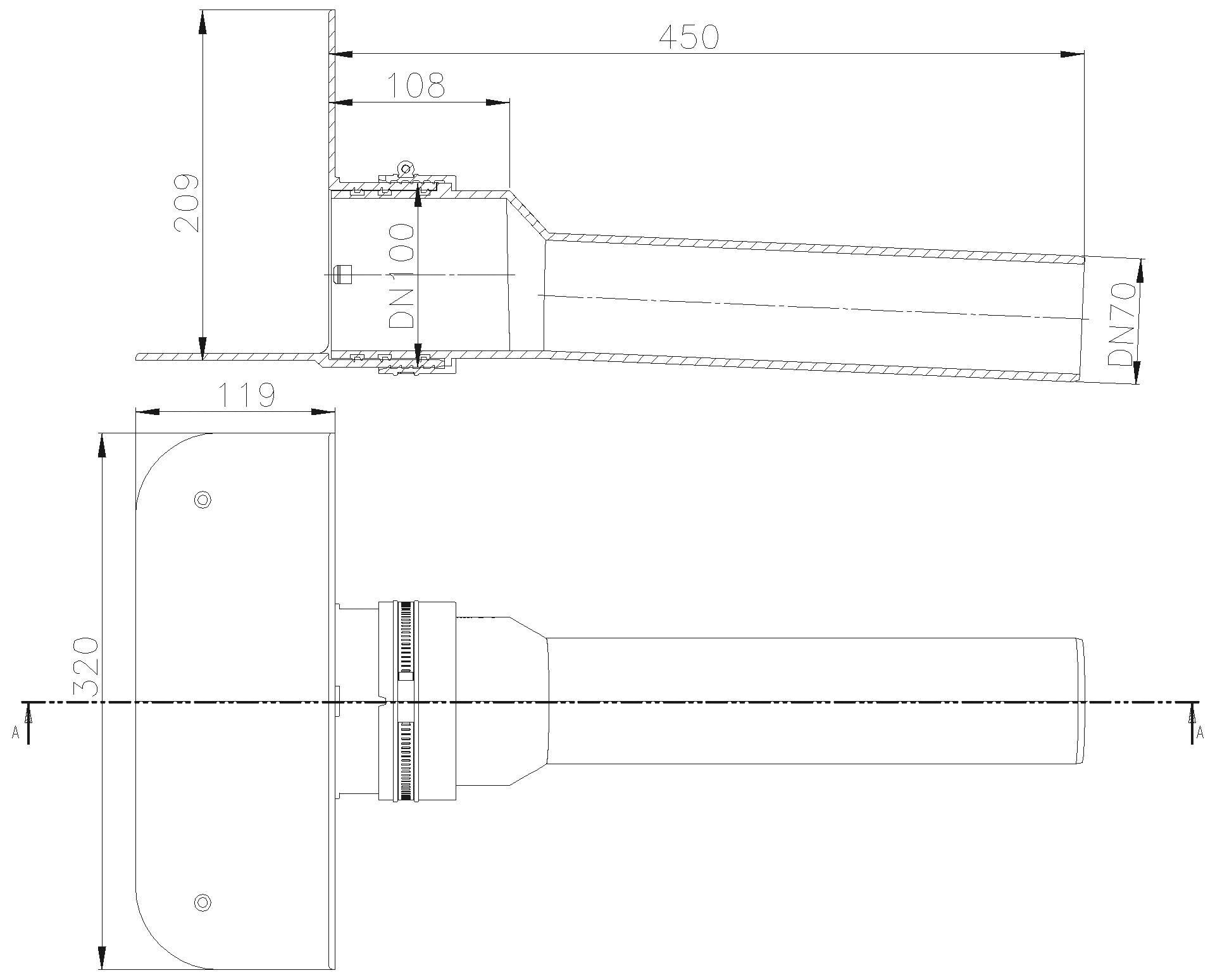
DALLMER Attikaablauf DallBit, DN 100

Dallmer


DALLMER Attikaablauf DallBit, DN 100

Abgewinkeltes Ablaufgehäuse aus UV-stabilisiertem Polypropylen zur Entwässerung durch die Attika. Mit Edelstahl-Flammschutz und werkseitig aufgeschweißter Bitumenschweißbahn-Manschette, 4 mm stark. Ablaufstutzen DN 100 seitlich, 3 Grad abgewinkelt. Ablaufleistung bei 35 mm Anstauhöhe je nach verwendetem Zubehör und Art des Anschlusses: 0,71 - 2,82 l/s (frei auslaufend), 0,71 - 3,45 l/s (mit angeschlossener Fallleitung = 4,2 m).

  • Menge: ..........
  • Einheit: Stk
  • EP: ..........
  • GP: ..........

Passende Inhalte zum Ausschreibungstext "DALLMER Attikaablauf DallBit, DN 100"

Passendes Produkt

Bitte melden Sie sich an

Um diese Funktion nutzen zu können, müssen Sie bei heinze.de registriert und angemeldet sein.

Hier anmelden

Diese Seite weiterempfehlen

1390928764