Text 526 von 560

Probenahmeschacht DN 150, Klasse D

KESSEL Entwässerungstechnik


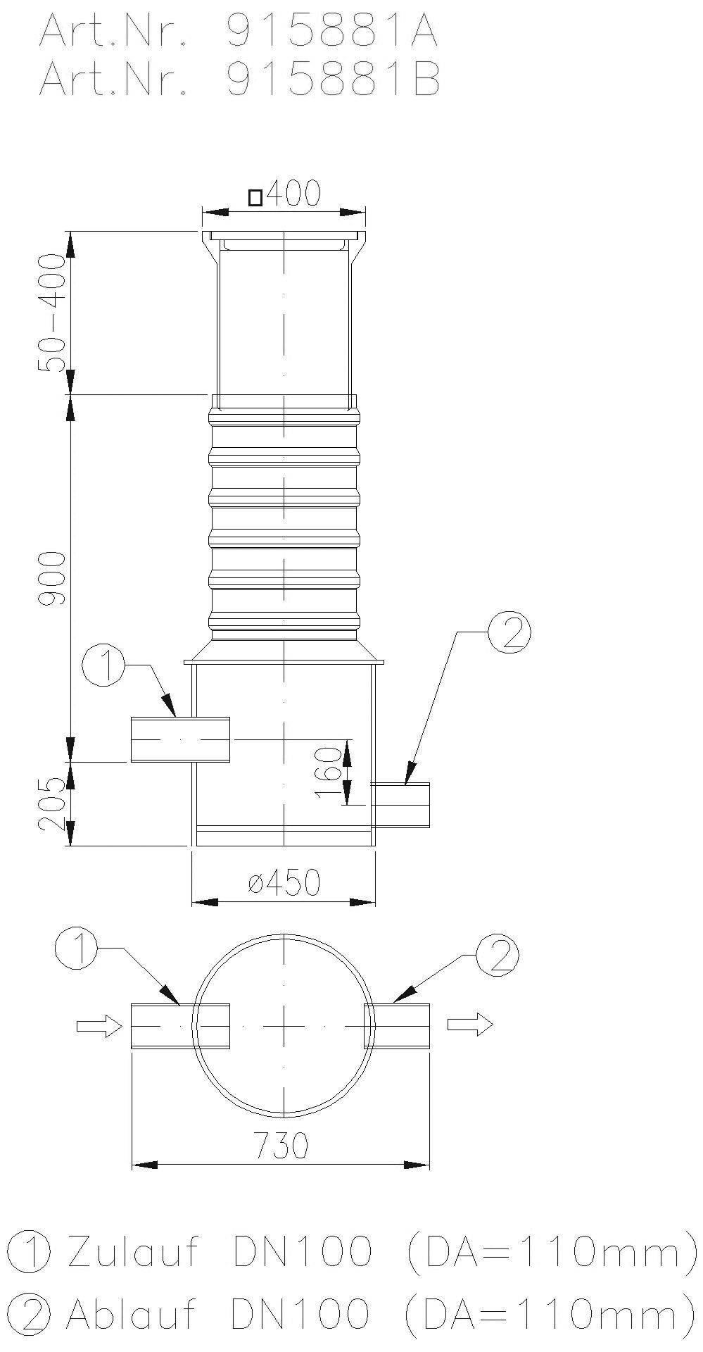
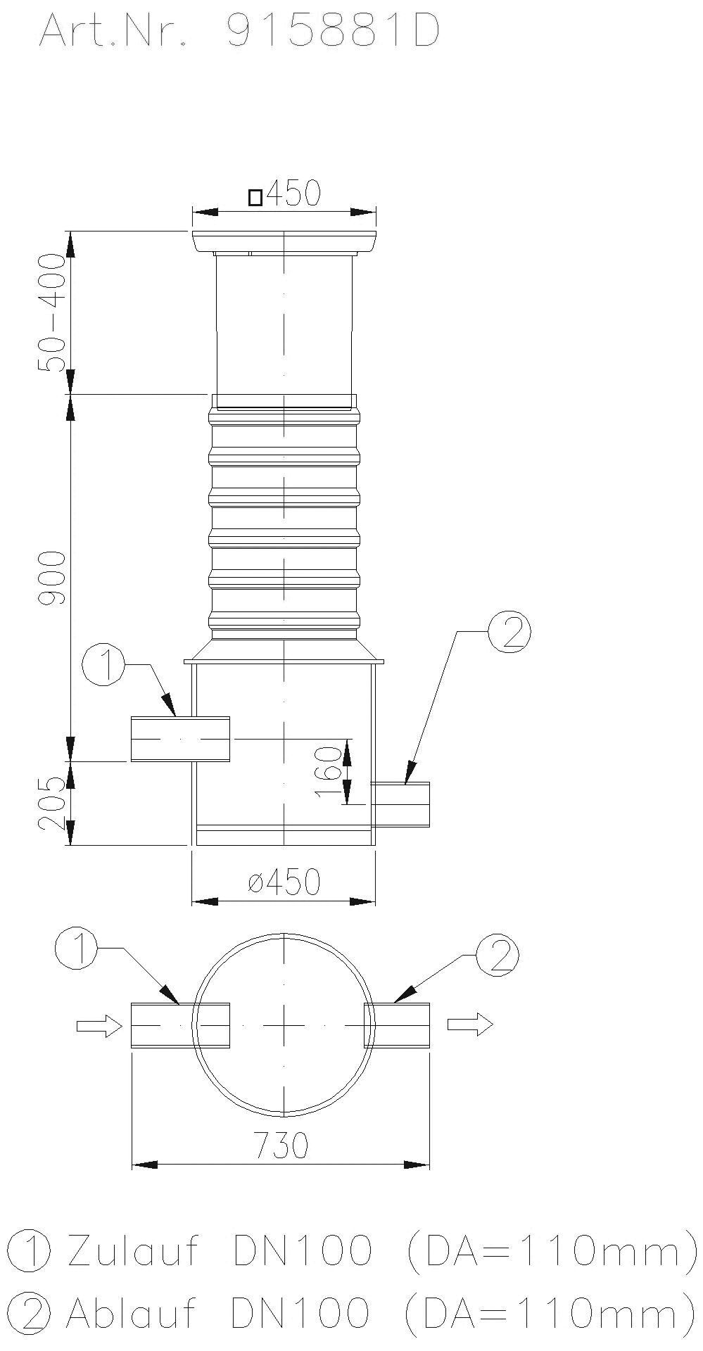
Probenahmeschacht LW 450 für Abscheideanlagen, zum Einbau ins Erdreich, leerlaufend, wasserdicht, beständig gegen aggressive Abwässer. Minimale Einbautiefe erreichbar durch Absägen. Fließrichtung: gerade Bei Belastungsklasse D ist bauseitig eine Lastverteilplatte zu verbauen. Die Bewehrungspläne sind bei KESSEL erhältlich.

Allgemeine Merkmale
Farbe: schwarz
Material: PE

Abmessungen
Gewicht netto: 48 kg
Gewicht brutto: 54 kg
Gefällesprung: 160 mm
Einbautiefe: 950 - 1300 mm
Art der Höhenverstellbarkeit: teleskopisches Aufsatzstück
Länge: 730 mm
Verpackungsmaß Länge: 700 mm
Verpackungsmaß Breite: 800 mm
Verpackungsmaß Höhe: 1200 mm

Behälter/Grundkörper
Abstand Rohrsohle Zulauf zu Behälterboden: 205 mm
Auslauf Nennweite (DA): 160 mm
Auslauf Nennweite (DN): 150 mm
Zulauf Nennweite (DA): 160 mm
Zulauf Nennweite (DN): 150 mm
Lichte Weite Behälter (LW): 450 mm

Abdeckungsmerkmale
Abdeckungsart: Abdeckplatte
Abdeckung Material: Grauguss
Abdeckung Farbe: schwarz
Belastungsklasse: D 400 (EN 124)
Dichtheit: geruchs- und tagwasserdicht

Produktinformationen:

Probenahmeschacht DN 150, Klasse D

Artikelnummer: 915882D
  • Menge: ..........
  • Einheit: Stk
  • EP: ..........
  • GP: ..........

Passende Inhalte zum Ausschreibungstext "Probenahmeschacht DN 150, Klasse D"

Bitte melden Sie sich an

Um diese Funktion nutzen zu können, müssen Sie bei heinze.de registriert und angemeldet sein.

Hier anmelden

Diese Seite weiterempfehlen

1386480662