Gallina Deutschland GmbH
Meinhardstr. 5
44379 Dortmund
Deutschland
Passende Suchbegriffe zu Gallina Deutschland
Polycarbonat-Paneele Polycarbonat-Hohlkammerplatten Tageslichtnutzung Lichtbandelemente Verglasungen Lichtbänder Kunststoff-Lichtbandelemente Belichtung - Tageslicht Dachoberlichter Flachdachbelichtung Innenwandverglasungen Sheddach Terrassenverglasungen Verbundplatten Kunststoff-Dachoberlichter Außenwandverglasungen Dachbelichtung Dachlichtbänder Deckenlichtbänder Innenwandbekleidungen Kunststoff-Gläser Lichtwände Dächer Fünffach-Stegplatten Sechsfach-StegplattenSprossenlose Dach- und Wandverglasung
Aus der Serie Verglasungspaneele für Dach und Wand von Gallina Deutschland
Wandverglasungen
Sprossenlose Kunststoffverglasung aus Polycarbonat mit Nut- und Feder in 40 bis 60 mm Dicken und 3 bis 12 Schalen.
Hohe Isolierwerte mit U-Werten von 1,7 bis 0,72 W/m2K und flexibel gestaltbare g-Werte von 60 bis nahe 0 %.
Überlegene Kosten-/Nutzen Relation
Prokulit PC 540-7
Lichtbauelement aus Polycarbonat mit hoher Wärmestandfähigkeit für sprossenlose Dach- und Wandlichtbänder an Industrie-, Gewerbe- und Sportgebäuden mit hohen Isoliereigenschaften, ideal für Neubauten und Sanierungen von alten Drahtglasflächen
arcoPlus 549
Lichtbauelement aus Polycarbonat für sprossenlose Dach- und Wandlichtbänder an Industrie-, Gewerbe-, Sport- und Sondergebäuden mit sehr guten Isoliereigenschaften und bester Kosten-/Nutzen-Relation
Prokulit PC 560-10
Lichtbauelement aus Polycarbonat für sprossenlose Dach- und Wandlichtbänder an Industrie-, Gewerbe-, Sport- und Sondergebäuden mit höchsten Isoliereigenschaften und besten statischen Lastwiderständen
arcoPlus DBconnect
Das modulare transparente 2- und 3-schalige Verglasungssystem aus Polycarbonat bietet in Abhängigkeit der gesetzten Anforderungen eine Vielzahl von Lösungen hinsichtlich Wahl der Verglasungspaneele, Farben und Oberflächenausführungen.
Zwischen den einzelnen Schalen ist eine ausreichende Luftzirkulation zu allen Jahreszeiten gewährleistet. Die Befestigungen sind weitgehend verdeckt.
CAD und Ausschreibungstexte: Lichtpaneele
Technische Daten:Lichtpaneele
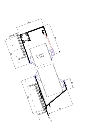
Lichtband in Laibung, thermisch getrennt
Traversprofil 60 mm, thermisch getrennt
CAD und Ausschreibungstexte: Sprossenlose Wandverglasung
Referenzauswahl
Behindertenwerkstätten, Garbenteich
Dachverglasungen
Satteldach-, Shed- und Pultdachverglasungen, Freiflächenüberdachungen
Hohe Isolierwerte bis 0,72 W/m2K
Geringes Eigengewicht
Brandklasse schwer entflammbar, nicht brennend abtropfend B S1 d0 gem. DIN 1350-1-1
Ausschmelzbare Fläche zum Wärmeabzug im Brandfall < 300°C
Hagelsicher gem. schweizer Hagelschlagnorm
Prokulit PC 540-7
Lichtbauelement aus Polycarbonat mit hoher Wärmestandfähigkeit für sprossenlose Dach- und Wandlichtbänder an Industrie-, Gewerbe- und Sportgebäuden mit hohen Isoliereigenschaften, ideal für Neubauten und Sanierungen von alten Drahtglasflächen
arcoPlus 549
Lichtbauelement aus Polycarbonat für sprossenlose Dach- und Wandlichtbänder an Industrie-, Gewerbe-, Sport- und Sondergebäuden mit sehr guten Isoliereigenschaften und bester Kosten-/Nutzen-Relation
Prokulit PC 560-10
Lichtbauelement aus Polycarbonat für sprossenlose Dach- und Wandlichtbänder an Industrie-, Gewerbe-, Sport- und Sondergebäuden mit höchsten Isoliereigenschaften und besten statischen Lastwiderständen
Passende CAD und Ausschreibungstexte: Lichtpaneele
Technische Daten:Lichtpaneele
Einseitige Dach/ Shedverglasung >25°
Zweiseitige Dachverglasung
CAD und Ausschreibungstexte: Shed- und Sattelverglasung
Referenzen
Transparente Fassaden/ hinterlüftete Fassaden

Prokulit PC 540-7
Lichtbauelement aus Polycarbonat mit hoher Wärmestandfähigkeit für sprossenlose Dach- und Wandlichtbänder an Industrie-, Gewerbe- und Sportgebäuden mit hohen Isoliereigenschaften, ideal für Neubauten und Sanierungen von alten Drahtglasflächen
arcoPlus 549
Lichtbauelement aus Polycarbonat für sprossenlose Dach- und Wandlichtbänder an Industrie-, Gewerbe-, Sport- und Sondergebäuden mit sehr guten Isoliereigenschaften und bester Kosten-/Nutzen-Relation
Prokulit PC 560-10
Lichtbauelement aus Polycarbonat für sprossenlose Dach- und Wandlichtbänder an Industrie-, Gewerbe-, Sport- und Sondergebäuden mit höchsten Isoliereigenschaften und besten statischen Lastwiderständen
Transparente hinterlüftete Fassade
Transparente hinterlüftete Fassade, Fensteröffnung
Transparente hinterlüftete Fassade, Eckbereich
Transparente hinterlüftete Fassade, Traversprofil
arcoPlus VT Fassade

System aus Polycarbonat-Stegplatten mit Verbindungsfuge mit UV-Schutz für die Herstellung hinterlüfteter Fassaden und Fassadenverkleidungen. Es handelt sich um ein modulares System aus coextrudierten Polycarbonat-Stegplatten mit einem Einrastsystem aus Aluminiumprofilen, das an den vorhanden baulichen Strukturen mit entsprechenden Bügeln befestigt wird und die Ebenheit der Oberflächen sicherstellt.
CAD und Ausschreibungstexte: Transparente Fassaden
Referenzen
Supermarkt, Bazenheid (Schweiz)

Kulturzentrum, Göttelborn
Aus der Serie Sprossenlose Dach- und Wandverglasung von Gallina Deutschland
Kulturzentrum, Göttelborn
Drahtglassanierungen
Ersatz von erneuerungsbedürftigen Drahtglasflächen im Dach- und Wandbereich
Hohe Isolierwirkung bis 0,72 W/m2K
Geringes Eigengewicht für Spielraum von zusätzlichen Wärmedämmmaßnahmen auf dem übrigen Dach
Ausschmelzbare Flächen < 300°C zum Wärmeabzug im Brandfall
Drahtglassanierung - Satteldach

Drahtglassanierung - Sheddach

Drahtglassanierung - Wandverglasung, thermisch getrennt
CAD und Ausschreibungstexte: Drahtglassanierung
Referenzauswahl
Direkter Kontakt zu "Gallina Deutschland"
Downloads
Produktinfos zum Mitnehmen
Ähnliche Hersteller
Das könnte Sie auch interessieren





























































