Hydro Building Systems
Germany GmbH (WICONA)
Einsteinstr. 61
89077 Ulm
Deutschland
Alle Inhalte von WICONA
Produktinformationen Produkte / BIM-Daten Ausschreibungstexte CAD-Details Architekturobjekte Alle Inhalte anzeigenPassende Suchbegriffe zu WICONA
Fenster Profile Türen Belichtung - Tageslicht Profilsysteme für Fenster/Türen Fenstersysteme Fensterbausysteme Außenwandbekleidungssysteme Tragwerkskonstruktion Rahmenprofile Drehflügeltüren Fenstertüren Pfosten-Riegel-Bauweise Fassadensysteme Fassadenplatten Außentüren Verbundfenster Fassaden Sonnenschutz Bogenfenster Bullaugenfenster Wände Außenwände InnentürenSystemlösungen
Nachhaltige Aluminium-Systemlösungen mit Hydro CIRCAL aus mindestens 75% recyceltem End-of-Life Aluminium
Echte Kreislaufwirtschaft mit WICONA
Alle WICONA-Serien werden aus der Aluminiumlegierung Hydro CIRCAL, die aus mindestens 75% End-of-Life Aluminium besteht, hergestellt.
Der CO2-Fußabdruck von Hydro CIRCAL ist gering: 2,3 Kilogramm CO2 pro Kilogramm Aluminium, zertifiziert von unabhängigen Drittprüfern und mit der entsprechenden Environmental Product Declaration (EPD).
Mit dem innovativen Konzept 75/95 geht WICONA noch einen Schritt weiter in Richtung Kreislaufwirtschaft: Mit der Verwendung von 75% recyceltem und 95% recycelbarem Material können die CO2-Emissionen der WICONA-Produkte minimiert werden.
Zertifizierungen
Die Herstellung ist unabhängig nach ISO 14064 zertifiziert, durch die Initiative A|U|F Wertstoffkreislauf bestätigt und komplett nachverfolgbar.
Nachhaltige Gebäudezertifizierung
Nachhaltigkeitsproduktpass des ift Rosenheim | EPD des Instituts Bauen und Umwelt e.V. | Internationale Auszeichnung von Cradle to Cradle. | Aluminium Stewardship Initiative (ASI)
Umwelt-Gebäudezertifizierungen
LEED | BREEAM | DGNB
Weitere Informationen
Fassadensysteme
Pfosten-Riegel-Fassade - Projekt: Hallenbad Ried, WICTEC 50 (©Johannes Hloch)
Elementfassade - Projekt: City Tower Bozen, Italien WICTEC EL evo (©WICONA)
Ganzglasfassaden - Projekt: Sea Towers Bürokomplex, Barcelona, Spanien WICTEC 50SG (©Rafael Vargas)
WICSOLAIRE Beschattungssystem - Projekt: Sofilo, Marseille, Frankreich WICSOLAIRE (©WICONA)

Sanierung - Projekt: Vandervalk Hotel, Venlo, Niederlande, WICTEC 50, Hydro CIRCAL (©Edbert de Boer)
Aus der Serie WICONA - Fassadensysteme WICTEC von WICONA
Sanierung - Projekt: Vandervalk Hotel, Venlo, Niederlande, WICTEC 50, Hydro CIRCAL (©Edbert de Boer)
Fassadensanierungssysteme | Bauen im Bestand (ohne Abbildung)
Vorteile
Immer die passende Fassadenlösung durch große Systemvielfalt
Für alle Gebäudestrukturen bis hin zu dreidimensionalen Objekten wie Pyramiden, Polygonen, Tonnengewölben oder Rundüberdachungen
Kombinierbar mit WICONA Fenster-, Tür- und Schiebesystemen
Hochwärmedämmende, einbruchhemmende, durchschusshemmende und Branschutzausführungen sind mit identischer Optik und mit wenigen Zusatzteilen zur Standard- Grundkonstruktion möglich
Anpassung an individuelle Designwünsche durch große Profil- und Ausgestaltungsvielfalt
Umfangreiche Systemprüfungen nach internationalen Standards, wie z.B. die Produktnorm für Vorhangfassaden EN 13830, belegen die hohe Qualität der Systemtechnik
Basierend auf dem WICONA Unisys Prinzip: Umfangreiche Gestaltungsfreiheit, hohe Prozesssicherheit, Kosten- und Zeitersparnis, einfache Produktion, geringer Werkzeugeinsatz
Ein System für alle Anforderungen Unisys
WICONA Unisys ist ein modulares Konzept für alle WICONA Systemkonstruktionen:
bei allen Fassaden kann mit gleichen Verarbeitungsschritten, Zubehör, Dichtungen, Dicht- und Verbindersystemen gearbeitet werden.

Unisys Teil Übersicht ©WICONA
Aus der Serie WICONA - Fassadensysteme WICTEC von WICONA
Unisys Teil Übersicht ©WICONA
Die gesamte Übersicht der Unisys Systeme
Pfosten-Riegel-Fassaden
Projekt: Martin Auer, Graz, Österreich -Hydro CIRCAL, WICTEC 50 (©MEDIASHOTS)

WICTEC 50 mit integrierten Andruckprofilen (©WICONA)
WICTEC Pfosten-Riegel-Fassaden sind die flexiblen Allrounder unter den WICONA Fassadensystemen.
Ansichtsbreiten von 50 und 60 mm ermöglichen eine filigrane Ansicht der Fassade.
Zusätzliche Funktionen für Sicherheit und höchste Wärmedämmung mit Uw-Werten bis unter 0,8 W/(m2K) können ohne optische Einbußen mit geringstem zusätzlichem Aufwand erfüllt werden.
Lieferprogramm Pfosten-Riegel Fassaden
WICTEC 50 (50 mm Ansichtsbreite)
WICTEC 60 NG (60 mm Ansichtsbreite)
WICTEC 50 HI (Passivhausfassade)
WICTEC 50A (Aufsatzkonstruktion Stahl / Holz)
WICTEC 50SG-Design (Structural Glazing Design mit minimierten Profilansichten)
WICTEC 50SG (Structural Glazing)
Sicherheitsfassaden:
WICTEC Brandschutz
WICTEC Einbruchhemmung
WICTEC Durchschusshemmung
WICTEC 50 / WICTEC 60

WICTEC 50 Pfosten-Riegel-Fassade (©WICONA)
Aus der Serie WICONA - Fassadensysteme WICTEC von WICONA
WICTEC 50 Pfosten-Riegel-Fassade (©WICONA)
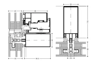
WICTEC 50 ist die Basisversion der Pfosten-Riegel-Fassade mit einer Ansichtsbreite von 50 mm innen und außen.
Flexible Fassadenserie
WICTEC 50 ist in vielen Systemvarianten und mit vielen Erweiterungsmöglichkeiten lieferbar. Diese sind alle mit geringen Systemergänzungen ohne optische Einbußen realisierbar.
Projekt: Berufsakademie Heidenheim - WICTEC 50 (©WICONA)
Projekt: Folkwang Museum, Essen - Pfosten-Riegel-Fassade WICTEC 60 (©Conné van d'Grachten)
WICTEC 50HI - Passivhausfassade

WICTEC 50HI - Passivhausfassade (©WICONA)
Aus der Serie WICONA - Fassadensysteme WICTEC von WICONA
WICTEC 50HI - Passivhausfassade (©WICONA)
WICTEC 50 wurde als erste passivhaustaugliche Aluminium-Glasfassade durch das ift Rosenheim zertifiziert und ist mit sehr geringem zusätzlichem Aufwand auf Basis der Standardserie ausführbar.
Durch Einsatz eines einfach zu montierenden Dämmprofils wird die Wärmedämmung von Uf = 0,65 W/(m2K) erreicht.
Weitere Informationen:
WICTEC 50HI Passivhausfassade, Hydro CIRCAL (©Mediashots)
WICTEC 50HI Passivhausfassade, Hydro CIRCAL (©Mediashots)
WICTEC 50A - Aufsatzkonstruktion

WICTEC 50A - Aufsatzkonstruktion (©WICONA)
Aus der Serie WICONA - Fassadensysteme WICTEC von WICONA
WICTEC 50A - Aufsatzkonstruktion (©WICONA)
WICTEC 50A als Aufsatzvariante ermöglicht die direkte Verglasung auf Tragkonstruktionen aus Stahl oder Holz.
Damit bietet WICTEC die freie Wahl des Tragwerkstoffes, Aluminium, Stahl oder Holz, bei identischer Außenansicht und Verglasungstechnik der Fassade.
Weitere Informationen

WICTEC 50A - Aufsatzkonstruktion

WICTEC 50A - Aufsatzkonstruktion (©WICONA)
WICTEC 50SG-Design - Ganzglasfassade

WICTEC 50SG-Design - Ganzglasfassade (©WICONA)
Aus der Serie WICONA - Fassadensysteme WICTEC von WICONA
WICTEC 50SG-Design - Ganzglasfassade (©WICONA)
WICTEC 50 erzielt mit integrierten Andruckprofilen eine SG-ähnliche Fassadenästhetik in einer kostengünstigen Variante. Durch die Verglasungstechnik mit einer mit dem Glasflächen bündigen oder alternativ sehr flach aufliegenden Andruckleiste ist die Herstellung und Montage so schnell und einfach wie bei der klassischen Pfosten-Riegel-Fassade.
Weitere Informationen:

WICTEC 50SG-Design - Ganzglasfassade (©WICONA)
WICTEC 50SG-Design - Ganzglasfassade (©WICONA)
WICTEC 50SG - Structural Glazing Fassade

WICTEC 50SG - Structural Glazing Fassade (©WICONA)
Aus der Serie WICONA - Fassadensysteme WICTEC von WICONA
WICTEC 50SG - Structural Glazing Fassade (©WICONA)
Das System bietet Ganzglastechnik mit Isolierverglasung und kann mit seiner filigranen Optik sowohl in vertikalen Fassaden wie in Glasdächern eingesetzt werden.
Auf Basis der WICTEC Pfosten-Riegel-Fassade können diese Varianten einfach und wirtschaftlich auf hohem technischem Niveau erstellt werden. Mit dem WICLINE 90SG Flügel in Ganzglasausführung wird die homogene Ganzglasoptik bei Senk-Klapp- oder Parallel-Ausstellfenstern zusätzlich unterstrichen.
Weitere Informationen:
WICTEC 50SG - Structural Glazing Fassade (©WICONA)
WICTEC 50SG mit Öffnungselement WICLINE 90SG / WICTEC 50SG (©WICONA)
WICTEC 50FP/60FP - Brandschutzfassade

WICTEC50 FP / WICTEC 60FP Brandschutzfassade (©WICONA)
Aus der Serie WICONA - Fassadensysteme WICTEC von WICONA
WICTEC50 FP / WICTEC 60FP Brandschutzfassade (©WICONA)
Mit WICTEC FP lassen sich alle Fassadenvarianten auf die notwendigen Schutzanforderungen (G30 bzw F30) abstimmen. Die Ausführung FP basiert auf den Standardfassaden WICTEC 50 und WICTEC 60.
Weitere Informationen:
Projekt: The Squaire, Frankfurt a. Main - WICTEC 50FP Brandschutzfassade (©Conné van d'Grachten)
Projekt: The Squaire, Frankfurt a. Main - WICTEC 50FP Brandschutzfassade (©Conné van d'Grachten)
WICTEC 50EH - Einbruchhemmende Fassade

WICTEC 50 RC2 und RC3 (©WICONA)
Aus der Serie WICONA - Fassadensysteme WICTEC von WICONA
WICTEC 50 RC2 und RC3 (©WICONA)
Die verschieden hohen Anforderungen im Bereich Einbruchhemmung werden bei allen WICTEC Fassadenserien ohne optische Veränderungen mit geringfügigen Zusatzmaßnahmen auf Basis der Grundkonstruktionen erfüllt.
Weitere Informationen:
Projekt: The Squaire, Frankfurt a. Main - WICTEC 50EH (©Conné van d'Grachten)
Projekt: The Squaire, Frankfurt a. Main - WICTEC 50EH (©Conné van d'Grachten)
WICTEC 50 DH / WICTEC 60DH - Fassade mit Durchschusshemmung

WICTEC 50 DH / WICTEC 60 DH - Fassade mit Durchschusshemmung (©WICONA)
Aus der Serie WICONA - Fassadensysteme WICTEC von WICONA
WICTEC 50 DH / WICTEC 60 DH - Fassade mit Durchschusshemmung (©WICONA)
Die Anforderungen im Bereich Durchschusshemmung werden bei WICTEC Fassadenserien durch eine Erweiterung mit speziellen Aluminium-Vorsatzprofilen erreicht. Durchschusshemmung nach DIN EN 1522: FB4
Weitere Informationen:
WICTEC 50 DH / WICTEC 60 DH - Fassade mit Durchschusshemmung (©WICONA)

WICTEC 50 DH / WICTEC 60 DH - Fassade mit Durchschusshemmung (©WICONA)
Elementfassaden

Elementfassade - Projekt: Via Vika, Oslo, Norwegen (©Andrius Gudelis)
Elementfassaden bestehen aus werkseitig vorgefertigten, mindestens geschosshohen Einzelelementen, die den kompletten Raumabschluss bilden. Elementfassaden integrieren alle erforderlichen Bestandteile wie Brüstungen, Deckenkopfbekleidungen und transparente, zum Teil öffenbare Felder, in einem „Element“.
Lieferprogramm Elementfassaden
WICTEC EL EVO
WICTEC EL50
WICETC 60EL
WICTEC Modul Air (Closed Cavity Fassade)
Vorteile
rationelle Abwicklung durch Serienfertigung von wiederkehrenden Elementstrukturen
komplett witterungsunabhängige Vormontage der einzelnen Fassadenelemente
ergänzende Bauteile wie Öffnungselemente, Gebäudetechnik- Komponenten, Paneele, Verkleidungen oder Sonnenschutz sind integrierbar
Zeitgewinn und Kostenersparnis durch Just-in-time-Anlieferung und Montage von Fertigelementen (ohne Gerüst)
energetische Verbesserung während der Gebäudenutzung im Sanierungsfall
WICTEC EL EVO - modularisiertes Fassadensystem

WICTEC EL EVO (©WICONA)
Aus der Serie WICONA - Fassadensysteme WICTEC von WICONA
WICTEC EL EVO (©WICONA)
Das modularisierte Fassadensystem mit schmalen Ansichtsbreiten und gleicher Profiltiefe für Pfosten und Riegel kann individuell an projektspezifische Anforderungen angepasst werden. Schmale Rahmenansichtsbreiten selbst bei extremen Gebäudebewegungen durch die patentierte „Federdichtung“ in horizontalen Fugen zwischen den Elementen. Schnelle und einfach planbare Montage vor Ort durch Fertigung der Bauteile in kontrollierter Werkstattumgebung.
Weitere Informationen: WICTEC EL EVO - modularisiertes Fassadensystem

WICTEC EL EVO, Hydro CIRCAL - Projekt: Senckenbergturm, Frankfurt a. Main, (©Mediashots)
WICTEC EL EVO - Projekt: Vaghuset, Göteborg, Dänemark, (©Felix Gerlach)
WICTEC EL EVO - Projekt: Budapest One, Budapest, Ungarn (©Mediashots)
WICTEC 50EL - Elementfassade
WICTEC 50EL ist eine Variante der Pfosten-Riegel-Fassade WICTEC 50. Diese Serie kombiniert die Vorteile der Pfosten-Riegel-Struktur mit den Montagevorteilen der Elementfassade bei einer schlanken Ansichtsbreite von nur 50 mm bzw. 65 mm. Von außen aufgesetzte Glasleisten mit Gehrung erzielen eine besonders elegante Optik.
Wärmedämmwerte: Uf bis 1,4 W/(m2K)
Weitere Informationen: WICTEC 50EL - Elementfassade
Elementfassade im Bau - Projekt: Henninger Turm, Frankfurt a. Main (©WICONA)
Elementfassade im Bau - Projekt: Innovationsbogen Augsburg (©Mediashots)
Elementfassade im Bau - Projekt: Nationalbibliothek Leipzig (©Conné van d'Grachten)
WICTEC EL60 - Elementfassade

WICTEC EL60 - Elementfassade (©WICONA)
Aus der Serie WICONA - Fassadensysteme WICTEC von WICONA
WICTEC EL60 - Elementfassade (©WICONA)
WICTEC EL60 ist die filigrane Version der Elementfassade mit besonders schlanken Ansichtsbreiten von nur 60 mm innen und außen. Von außen aufgesetzte Glasleisten mit Gehrung erzielen eine besonders elegante Optik
Wärmedämmwerte: Ucw-Werten bis zu 0,9 W/(m2K)
Weitere Informationen: WICTEC EL60 - Elementfassade
Elementfassade am Tower 185 in Frankfurt im Bau
WICTEC Modul Air (Closed Cavity Fassade)

WICTEC Modul Air (Closed Cavity Fassade) (©WICONA)
Aus der Serie WICONA - Fassadensysteme WICTEC von WICONA
WICTEC Modul Air (Closed Cavity Fassade) (©WICONA)
Ein System aus Fassade, Sonnenschutz und Trockenluftanlage, Fertigung und Montage durch zertifizierte WICONA Partner, Garantie, Wartung und 24/7 Service: Alles aus einer Hand – das ist WICTEC MODUL AIR. Alle Komponenten sind aufeinander abgestimmt und langzeiterprobt. So gewährleisten sie höchste Funktionalität und Sicherheit bei geringen Betriebs- und Wartungskosten.
Weitere Informationen: WICTEC Modul Air | Closed Cavity Fassade (CCF)
WICTEC Modul Air (Closed Cavity Fassade) - Projekt: Via Vika, Oslo, Norwegen (©Andrius Gudelis)
WICTEC Modul Air (Closed Cavity Fassade) - Projekt: Via Vika, Oslo, Norwegen (©Andrius Gudelis)
WICTEC Modul Air (Closed Cavity Fassade) - Projekt: Amt für Umwelt, Basel, Schweiz (©Mediashots)
Glashaussystem
Glashaussystem Variolux

Schnitt Glashaussystem Variolux
Aus der Serie WICONA - Fassadensysteme WICTEC von WICONA
Schnitt Glashaussystem Variolux
Variolux bietet eine Vielzahl an Gestaltungsmöglichkeiten: eine komplett verglaste Gebäudehülle, ein gebogenes Dach oder die Integration von PV-Paneelen. Auch nachträgliches Umrüsten oder Anbauten zur Realisierung zukunftsgerechter Greenfarmingkonzepte sind möglich. Das System ist kompatibel mit allen Fenstern, Tür- und Fassadensystemen von WICONA und ist – je nach Projektanforderung – auch als hoch isolierende und thermisch getrennte Ausführung möglich.
Weitere Informationen: Glashaussystem I VARIOLUX (wicona.com)
Glashaussystem Variolux - Projekt: REWE Green Farming (©Jürgen Arlt www.arlt-photodesign.de)
Glashaussystem Variolux - Projekt: REWE Green Farming (©Jürgen Arlt www.arlt-photodesign.de)
Glashaussystem Variolux - Projekt: Rabensteiner Altmarktgarten, Oberhausen (©Rabensteiner)
Bauen im Bestand
Fassadensanierung - Bauen im Bestand
Fassadensysteme für Sanierungen
Fassadensysteme für Sanierungen
WICONA Systeme bieten für Fassadensanierungen thermisch optimierte Systeme. Ein großes Anwendungsspektrum bietet für jedes Modernisierungskonzept die geeignete Lösung.
Weitere Informationen folgen in Kürze
Beschattungs- und Lichtlenkungssysteme
WICSOLAIRE (©WICONA)
WICSOLAIRE - Projekt: Sofilo, Marseille, Frankreich (©Ludovic Molinier)
WICSOLAIRE
Bei dem außenliegenden Sonnenschutz handelt es sich um ein Lamellensystem aus extrudiertem Aluminium. Die Lamellen können in verschiedenen Winkeln und Abständen individuell positioniert werden und erhöhen somit den Nutzerkomfort.
Vorteile
Individuelle Einstellbarkeit verbessert die Energiebilanz des Gebäudes
Erhöhter Nutzerkomfort: der visuelle Kontakt mit der Umgebung des Gebäudes bleibt erhalten
WICSOLAIRE bietet 2 Befestigungsvarianten:

WICSOLAIRE - Systemunabhängige Tragkonstruktion (©WICONA)
Aus der Serie WICONA - Fassadensysteme WICTEC von WICONA
WICSOLAIRE - Systemunabhängige Tragkonstruktion (©WICONA)
Systemunabhängige Tragkonstruktion
Maximale Ausführungsmöglichkeiten mit vertikaler oder horizontaler Ausrichtung von festen oder beweglichen Lamellen, auch als Vordachausführung.
Weitere Informationen: WICSOLARIRE - Systemunabhängige Tragkonstruktion

WICSOLAIRE - Lamellen mit Tragkonstruktion (©WICONA)
Aus der Serie WICONA - Fassadensysteme WICTEC von WICONA
WICSOLAIRE - Lamellen mit Tragkonstruktion (©WICONA)
Lamellen mit Tragkonstruktion
Lamellen werden direkt an einer WICONA Pfosten-Riegel-Fassade befestigt
Weitere Informationen: WICSOLAIRE - Lamellen mit Tragkonstruktion
Direkter Kontakt zu "WICONA"
Passende Inhalte zur Produktinformation "WICONA - Fassadensysteme WICTEC"
Passende Produkte
Passende Architekturobjekte
Passende Ausschreibungstexte 365
Alle anzeigenPassendes CAD-Detail
Downloads
Produktinfos zum Mitnehmen
Ähnliche Hersteller
Das könnte Sie auch interessieren
- Lamellenfenster für Dach und Fassade, Klapp-, Dreh- und Kippfenster, Dachfenster
- Fassadenmodule
- heroal Fenstersysteme aus Aluminium
- Stahlprofile für Brand- und Rauchschutz
- Wärme- und Hochwärmegedämmte Stahl-Fensterprofile
- WORK - Wärmegedämmte Stahl-Fensterprofile Janisol
- Stahl-Fensterprofile für die Renovation

















































































