ABS Safety GmbH
Gewerbering 3
47623 Kevelaer
Deutschland
Passende Suchbegriffe zu ABS Safety
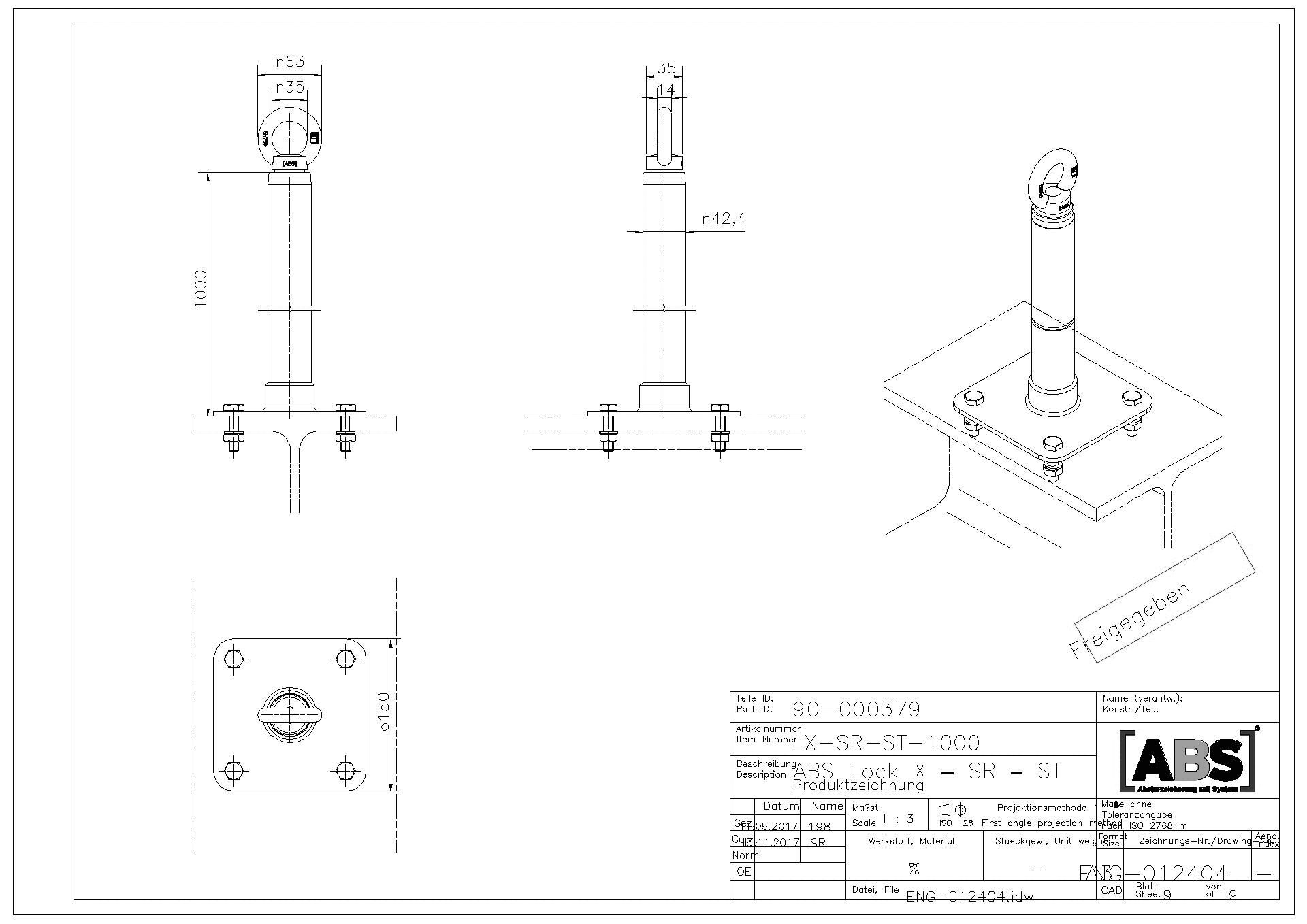
Absturzsicherungssysteme Personenschutz Arbeitsschutz Dächer Unfallschutz Absturzsicherung Flachdach Anschlagpunkte Anschlageinrichtungen Dachsicherungen Dach-Absturzsicherungen Flachdach-Absturzsicherungen Flachdach-Sicherungen Fassaden Steildach Decken Dachdecken Deckenkonstruktionen Steigschutz-Absturzsicherungen Fassaden-Absturzsicherungen Steildach-Absturzsicherungen Steildach-Sicherungen Innendecken Geschossdecken Stahl-UntergründeABS-Lock X-SR-ST
ABS Safety
Das von Ihnen ausgewählte CAD-Detail ist Bestandteil einer herstellerspezifischen Zusammenstellung von Details und Konstruktionszeichnungen. Für eine optimale Vorschau und leichtere Auswahl der Zeichnungen leiten wir Sie zu unserem CAD-Manager weiter.
Diese Zusammenstellung beinhaltet 8 CAD-Details.
Passende Inhalte zum CAD-Detail "ABS-Lock X-SR-ST"
Passende Produktserie
Downloads
Apps für Architekten und Planer
Ähnliche Hersteller
Das könnte Sie auch interessieren
- Absturzsicherung LUX-top® an PV-Anlagen
- Anschlagpunkte zur Absturzsicherung LUX-top®
- Seitenschutzsysteme und Geländer LUX-top® G-T
- Horizontales Edelstahl-Seilsicherungsystem LUX-top® FSE 2003
- Schienensicherungssystem mit fester Führung LUX-top® FSA 2010
- Leitersicherungen für Flach- und Steildächer LUX-top® LS
- Systeme für Abdichtung, Dämmung, Begrünung, Energieintegration von Flachdächern