CAD-Detail 37 von 62

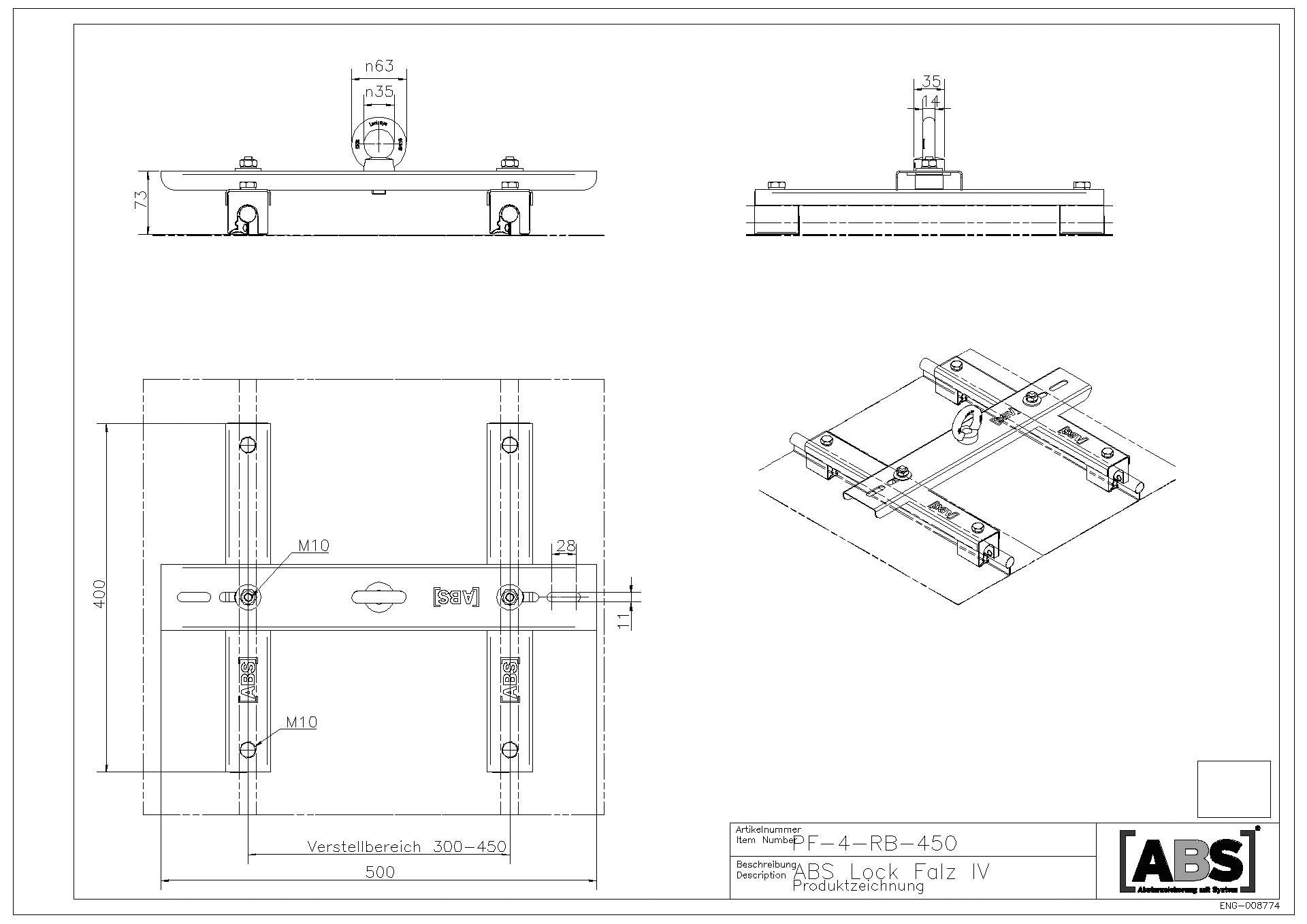
ABS-Lock Falz IV Rundbördelfalz

ABS Safety


ABS Safety - ABS-Lock Falz IV Rundbördelfalz

Das von Ihnen ausgewählte CAD-Detail ist Bestandteil einer herstellerspezifischen Zusammenstellung von Details und Konstruktionszeichnungen. Für eine optimale Vorschau und leichtere Auswahl der Zeichnungen leiten wir Sie zu unserem CAD-Manager weiter.

Diese Zusammenstellung beinhaltet 2 CAD-Details.

Passende Inhalte zum CAD-Detail "ABS-Lock Falz IV Rundbördelfalz"

Passende Produktinformationen

Absturzsicherung mit Einzelanschlagpunkten
Absturzsicherung mit Anschlagpunkten für Flachdach, Steildach, Fassade und Wand als auch zum Anschlagen über Kopf. ABS Safety Anschlagpunkte werden im Beton verankert oder eingedübelt, durch Stahl oder Holz gekontert, durchdringungsfrei auf Metallfalzprofile geklemmt oder auf Bitumen/Folie verschweißt. ABS Systeme für die sind bauaufsichtlich zugelassen und entsprechen der DIN EN 795.

Apps für Architekten und Planer

Lock Book Docu
Absturzsicherung einfach, schnell und rechtssicher mit dem Handy dokumentieren.

Bitte melden Sie sich an

Um diese Funktion nutzen zu können, müssen Sie bei heinze.de registriert und angemeldet sein.

Hier anmelden

Diese Seite weiterempfehlen

1456631565