Systea GmbH
Margarete-Steiff-Str. 6
24558 Henstedt-Ulzburg
Deutschland
Alle Inhalte von SYSTEA
Produktserien Produktdaten Ausschreibungstexte CAD-Details Architekturobjekte Alle Inhalte anzeigenPassende Suchbegriffe zu SYSTEA
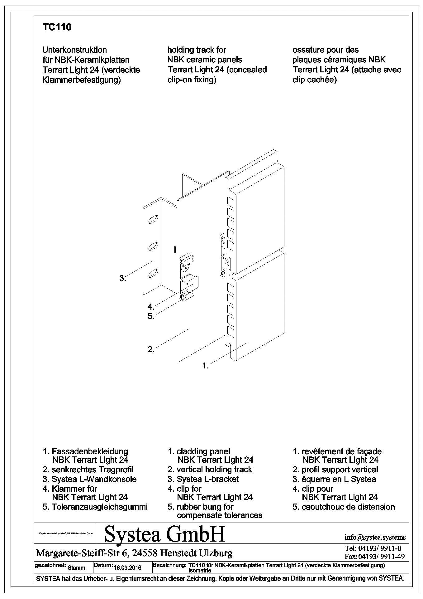
Fassadenbekleidungen Profile Fassaden Außenwandbekleidungssysteme Bekleidung Bekleidung Unterkonstruktion Außenwände Wände Fassadenplatten Vorgehängte hinterlüftete Fassaden Hinterlüftete Fassaden Vorhangfassaden Fassadenprofile Fassadenbausysteme Wandbekleidungen Befestigung Platten-Montageprofile Montage Fassadenbefestigungen Bau-Befestigungsmittel Profilbausysteme Wandbausysteme Fassadenplattenprofile Außenwandbekleidungen Außenwandkonstruktionen11_01_TC110 für NBK-Keramikplatten Light 24
SYSTEA
Das von Ihnen ausgewählte CAD-Detail ist Bestandteil einer herstellerspezifischen Zusammenstellung von Details und Konstruktionszeichnungen. Für eine optimale Vorschau und leichtere Auswahl der Zeichnungen leiten wir Sie zu unserem CAD-Manager weiter.
Diese Zusammenstellung beinhaltet 10 CAD-Details.
Passende Inhalte zum CAD-Detail "11_01_TC110 für NBK-Keramikplatten Light 24"
Passende Produktserie
Passende Ausschreibungstexte 52
Alle anzeigenÄhnliche Hersteller
Das könnte Sie auch interessieren