679

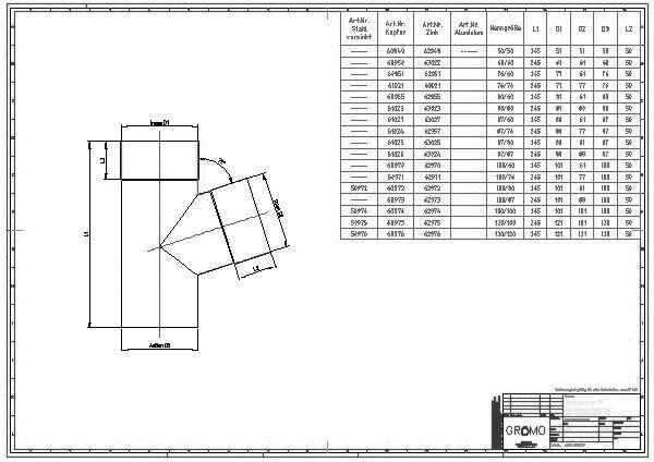
CAD-Details zu Regenfallrohr-Abzweige

Hier finden Sie Konstruktionszeichnungen, Ausführungsdetails und technische Zeichnungen zum Produktbereich Regenfallrohr-Abzweige in den wichtigsten CAD-Formaten (DWG und DXF).

Auswahl filtern

Regenfallrohr-Formstücke
UGINOX Stehfalzdach Konstruktionsbeispiele (gültig für Deutschland)

Aperam Stainless Services & Solutions Germany

33 CAD-Details zum Thema
01_nach_Einsatzbereich

GUTJAHR Systemtechnik

187 CAD-Details zum Thema
02_nach_Drainagen

GUTJAHR Systemtechnik

164 CAD-Details zum Thema
03_nach_Einbausituation

GUTJAHR Systemtechnik

203 CAD-Details zum Thema

Bitte melden Sie sich an

Um diese Funktion nutzen zu können, müssen Sie bei heinze.de registriert und angemeldet sein.

Hier anmelden
1392784891