Novoferm Vertriebs GmbH
Schüttensteiner Str. 26
46419 Isselburg
Deutschland
Alle Inhalte von Novoferm
Produktinformationen Produktdaten Ausschreibungstexte Architekturobjekte Alle Inhalte anzeigenPassende Suchbegriffe zu Novoferm
Tore Garagentore Türen Garagen Doppelgaragen Einzelgaragen Drehflügeltüren Sektionaltore Deckensektionaltore Außentüren Innentüren Eingangstüren Wärmeschutz Deckenlauftore Garagen-Sektionaltore Wärmeschutztore Schwingtore Anschlagtüren Schwenktüren Sperrtüren Nebeneingangstüren Parkboxen ReihengaragenSchiebetürsysteme
Übersicht Schiebetür-Arten
NovoSlide Wall
Vor der Wand laufendes Schiebetürsystem

NovoSlide Wall | vor der Wand laufendes Schiebetürsystem
Aus der Serie Novoferm Schiebetüren von Novoferm
NovoSlide Wall | vor der Wand laufendes Schiebetürsystem
Beschreibung
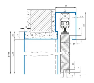
Das Schiebetürsystem NovoSlide Wall ist ein manuelles, vor der Wand laufendes, einflügeliges Schiebetürsystem für bauseitige Türblätter aus Holz oder Glas.
NovoSlide Wall besteht aus einer einteiligen Aluminium-Laufschiene, einem Laufwerk mit kugelgelagerten Rollen, Tragkraft 80 kg und beidseitiger Dämpfung 80 kg inkl. Aktivator sowie einer Aufhängung für bauseitige Türblätter aus Holz oder Glas. Das Schiebetürsystem lässt sich mit einer transportfreundlichen, in drei Einzelteile zerlegten Stahl-Durchgangszarge kombinieren.
Produktdetails
Einteilige Aluminium-Laufschiene, Oberfläche eloxiert F1, Länge 2.050 mm und 2.500 mm inkl. Kunststoff-Endkappe
Profilbreite: 53 mm für Holztüren/ 47 mm für Ganzglastüren ab 580 mm Türblattbreite, optimiert für Durchgangszargen mit 10 mm Umbug
53 mm für Holztüren/ 47 mm für Ganzglastüren ab 580 mm Türblattbreite, optimiert für Durchgangszargen mit 10 mm Umbug
59 mm für Holztüren/ 53 mm für Ganzglastüren ab 580 mm Türblattbreite, optimiert für Durchgangszargen mit 16 mm Umbug
Laufwerk mit kugelgelagerten Rollen, Tragkraft 80 kg und beidseitiger Dämpfung 80 kg inkl. Aktivator
Aluminium-Clipblende, Höhe 65 mm bzw. 79 mm,, Oberfläche eloxiert F1
Aufhängung für Holz- oder Glastürblätter (Türblatt bauseits)
Führungsschwert für Holztürblätter, optional Rollenbodenführung Deluxe inkl. Führungsprofil Aluminium für Holztürblatt unten
Klemmschuh für 8 bzw. 10 mm Ganzglastürblätter (Türblatt bauseits)
Bodenführung für Ganzglastürblätter 8 mm / 10 mm
NovoSlide Pocket
In der Wand laufendes Schiebetürsystem

NovoSlide Pocket | in der Wand laufendes Schiebetürsystem
Aus der Serie Novoferm Schiebetüren von Novoferm
NovoSlide Pocket | in der Wand laufendes Schiebetürsystem
Beschreibung
Das Schiebetürsystem NovoSlide Pocket fügt sich nahtlos in die Wandöffnung ein. Es besteht aus einer Metallbox, die auf Maß gefertigt wird, einer stabilen Aluminium-Lauf-Schiene mit Beschlagssets für bauseitige Holz- oder Ganzglastüren und optionaler Stahlzarge. NovoSlide Pocket eignet sich für private Wohnbereiche als auch für den Objektbau. Das Schiebetürsystem ist für den Einbau in Trockenbauwänden ausgelegt und in den Standard Türblatt-Breiten von 610 mm bis 1.235 mm lieferbar.
Produktdetails
beidseitiger Einzugsdämpfer bis 80 kg Türblattgewicht
keine Endanschläge nötig, der Dämpfer parkt die Tür sanft
sehr ruhiger Lauf durch kugelgelagertes Rollensystem
bauseitige Holz- oder Glastüren sowie Beschläge nach Wahl
optional: mit Stahlzarge oder zargenloser Variante durch Gipskarton Leibung von Novoferm oder bauseitiger Holzzarge
optional: moderner Magnetschwebeantrieb, steuerbar per Touch-To-Open, über berührungslosen Tastschalter, Radarmelder oder per App
schnelle Montage durch wenige Bauteile, Montagezubehör inklusive, auch als vormontiertes Element lieferbar
reversible Laufschiene und Tür
Parkposition nach Türblattmontage einstellbar, Höhenausgleich mittels optionaler Verstellfüsse
NovoSlide Frame
Vor der Wand laufendes Schiebetürsystem mit integrierter Stahldurchgangszarge

NovoSlide Frame | vor der Wand laufendes Schiebetürsystem mit integrierter Stahldurchgangszarge
Aus der Serie Novoferm Schiebetüren von Novoferm
NovoSlide Frame | vor der Wand laufendes Schiebetürsystem mit integrierter Stahldurchgangszarge
Produktdetails
bauseitige Holz- oder Glastüren sowie Beschläge nach Wahl
in Massiv- oder Trockenbauwände
Türblattbreiten ab 580 mm möglich, max. Laufschienenlänge 5.800 mm
Umfassungszarge mit Anschlagspfosten, 1-schalig für Massivwände oder wandbegleitenden Einbau in Trockenbauwände oder 2-schalig für den nachträglichen Einbau in Trockenbauwände bzw. Mauerwerk
zahlreiche Varianten möglich, z.B. mit Oberlicht oder Seitenteil
auch für zweiflüglige Schiebetürlösungen
verschiedene Zargen-Profilgeometrien hinsichtlich Radien und Schattennut auf der Türblatt-Gegenseite
optional: beidseitiger Einzugsdämpfer bis 80 kg Türblattgewicht
optional: auch mit Laufschiene für Türen > 100 kg mit entsprechendem Einzugsdämpfer möglich
geeignet für: Patientenzimmer in Krankenhäusern und Kliniken oder Pflegeheimen, Arztpraxen, Studierendenwohnheime, öffentliche Verwaltungsgebäude, Hotels und Gastronomie, privater Wohnungsbau
Laufschiene reversibel, einfache und schnelle Montage auf der Baustelle
Schiebetürantrieb Rapid
Magnetischer Schiebtürantrieb

Magnetischer Schiebtürantrieb Rapid
Aus der Serie Novoferm Schiebetüren von Novoferm
Magnetischer Schiebtürantrieb Rapid
Weitere Informationen
Direkter Kontakt zu "Novoferm"
Passende Inhalte zur Produktinformation "Novoferm Schiebetüren"
Passende Produkte
Downloads
Produktinfos zum Mitnehmen
Apps für Architekten und Planer
Ähnliche Hersteller
Das könnte Sie auch interessieren























