Produkt 30 von 71

wedi Fundo Integro Duschelement

Dieses Produkt von wedi gibt es in 9 Varianten



Beschreibung

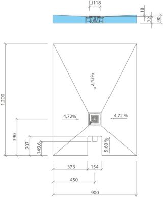
Fundo Integro ist mit 90 mm das flachste normkonforme bodengleiche wedi Komplettsystem mit werkseitig integrierter Ablauftechnik (DN50). Dieses Duschelement eignet sich perfekt für die Sanierung und ist darüber hinaus eine sichere und zeitsparende Alternative für jeden Neubau. Alle relevanten Normen (EN 1253 und EN 12056) werden auf einen Schlag erfüllt: 50 mm Sperrwasserhöhe, 0,8 l/sec. Ablaufleistung, mindestens 1,5%iges ebenmäßig vorgeformtes Gefälle, montagefertig abgedichtet und im Handumdrehen eingebaut. Sicher ist sicher: Die bereits werkseitig integrierte Ablauftechnik im wasserdichten blauen XPS-Kern des Fundo Integro Duschelements sorgt für maximale Sicherheit. Eine passende Ablaufabdeckung sowie Hilfsmittel zur Abdichtung sind bereits im Lieferumfang enthalten. Das Duschelement selbst eignet sich für verschiedene Beläge wie die wedi Fundo Top Designoberflächen, Fliesen oder Naturstein. Starten Sie Ihr Badezimmerprojekt noch heute und minimieren Sie das Einbaurisiko dank der Fundo Integro.

Downloads

Passende Ausschreibungstexte und BIM-Daten herunterladen

Produkteigenschaften

Produktkategorie

Duschboden-Elemente

Gebäude-Bauteile

Fußböden

Fliesenböden

Technische Bauteile

Sanitäranlagen

Einzelduschen

Reihenduschen

Baufunktionen

Fliesenträger

barrierefrei

seniorengerecht

Raumtypen

Badezimmer

Duschräume

Untergründe, Lage

Innenflächen

Ausführung Ablauf

Belastbarkeit

Farbton

Form

Produkt

Werkstoff

Breite (mm)

Höhe (mm)

Länge (mm)

Position Ablaufloch

Ablaufleistung (l/s)

Druckfestigkeit (N/mm²)

Gewicht (kg)

Ausführung Anschluss Ablauf

zentral | Anschluss kurze Seite

zentral

dezentral | Anschluss kurze Seite

zentral | Anschluss lange Seite

Anwendungsbereich

öffentliche Gebäude, barrierefreie Wohnungen, als Bauwerksabdichtung im Verbund mit Fliesen- und Plattenbelägen

Rollstuhlbelastbar ab Mindestfliesengröße in (mm)

50 x 50

Glasmosaik, Mindestgröße in (mm)

20 x 20

Passende Inhalte zum Produkt "wedi Fundo Integro Duschelement"

Passende Produktserie

Duschsysteme: Bodengleiche Duschen, Abläufe und Zubehör
Bodengleiche Duschen "Fundo" von wedi aus flachem, wasserdichtem Duschelement, integrierter Punkt- oder Linienentwässerung und passendem Zubehör für begehbare Duschen in barrierefreien Bädern. Ob als verflieste Walk-In Dusche oder bodengleiche Dusche mit fugenloser Designoberfläche - wedi "Fundo" Systemlösungen sind barrierefrei, langlebig und geeignet für Neubau und Sanierung.

Downloads

Umweltdeklarationen

Bitte melden Sie sich an

Um diese Funktion nutzen zu können, müssen Sie bei heinze.de registriert und angemeldet sein.

Hier anmelden

Diese Seite weiterempfehlen

1277445736