361

CAD-Details zu Fenster-Steuerungen

Hier finden Sie Konstruktionszeichnungen, Ausführungsdetails und technische Zeichnungen zum Produktbereich Fenster-Steuerungen in den wichtigsten CAD-Formaten (DWG und DXF).

Auswahl filtern

FAKRO Dachfenster
Schwingfenster

FAKRO Dachfenster

108 CAD-Details zum Thema Fenstersteuerungen
EEJ – Eindeckrahmen für Flachblech

FAKRO Dachfenster

1 CAD-Detail zum Thema Fenstersteuerungen
EEV – Eindeckrahmen für Flachblech

FAKRO Dachfenster

13 CAD-Details zum Thema Fenstersteuerungen
EGJ – Eindeckrahmen für Schichtstücke

FAKRO Dachfenster

1 CAD-Detail zum Thema Fenstersteuerungen
EGV – Eindeckrahmen für dicke Schichtstücke

FAKRO Dachfenster

8 CAD-Details zum Thema Fenstersteuerungen
EHV-A_G – Balkonfenster-Eindeckrahmen

FAKRO Dachfenster

1 CAD-Detail zum Thema Fenstersteuerungen
EHV-AT_G Thermo - Balkonfenster-Eindeckrahmen

FAKRO Dachfenster

1 CAD-Detail zum Thema Fenstersteuerungen
EHV-AT Thermo – Eindeckrahmen mit zusätzlicher Thermoisolation

FAKRO Dachfenster

14 CAD-Details zum Thema Fenstersteuerungen
EHV-AT Thermo KDV – Eindeckrahmen m. zusätz. Thermoisolation + KDV

FAKRO Dachfenster

12 CAD-Details zum Thema Fenstersteuerungen
EHV – Eindeckrahmen für hochprofilierte Eindeckmaterialien

FAKRO Dachfenster

17 CAD-Details zum Thema Fenstersteuerungen
EHW – Eindeckrahmen für hochprofilierte Eindeckmaterialien

FAKRO Dachfenster

4 CAD-Details zum Thema Fenstersteuerungen
ELJ – Eindeckrahmen für Schichtstücke

FAKRO Dachfenster

5 CAD-Details zum Thema Fenstersteuerungen
ELV-A_G - Balkonfenster-Eindeckrahmen für flache, dünne Eindeckmaterialien

FAKRO Dachfenster

1 CAD-Detail zum Thema Fenstersteuerungen
ELV-AT Thermo – Eindeckrahmen für flache Eindeckmaterialien

FAKRO Dachfenster

1 CAD-Detail zum Thema Fenstersteuerungen
ELV – Eindeckrahmen für Schichtstücke

FAKRO Dachfenster

13 CAD-Details zum Thema Fenstersteuerungen
ELW – Eindeckrahmen für flache Eindeckmaterialien

FAKRO Dachfenster

2 CAD-Details zum Thema Fenstersteuerungen
ERN-H – Firstverbindung

FAKRO Dachfenster

12 CAD-Details zum Thema Fenstersteuerungen
ERV-Z – Firstverbindung

FAKRO Dachfenster

11 CAD-Details zum Thema Fenstersteuerungen
ESA – Aufkeilrahmen

FAKRO Dachfenster

10 CAD-Details zum Thema Fenstersteuerungen
ESJ – Eindeckrahmen für flache, dünne Eindeckmaterialien

FAKRO Dachfenster

2 CAD-Details zum Thema Fenstersteuerungen
ESS – Eindeckrahmen für flache Eindeckmaterialien

FAKRO Dachfenster

1 CAD-Detail zum Thema Fenstersteuerungen
ESV – Eindeckrahmen für flache Eindeckmaterialien

FAKRO Dachfenster

8 CAD-Details zum Thema Fenstersteuerungen
ESW – Eindeckrahmen für flache Eindeckmaterialien

FAKRO Dachfenster

2 CAD-Details zum Thema Fenstersteuerungen
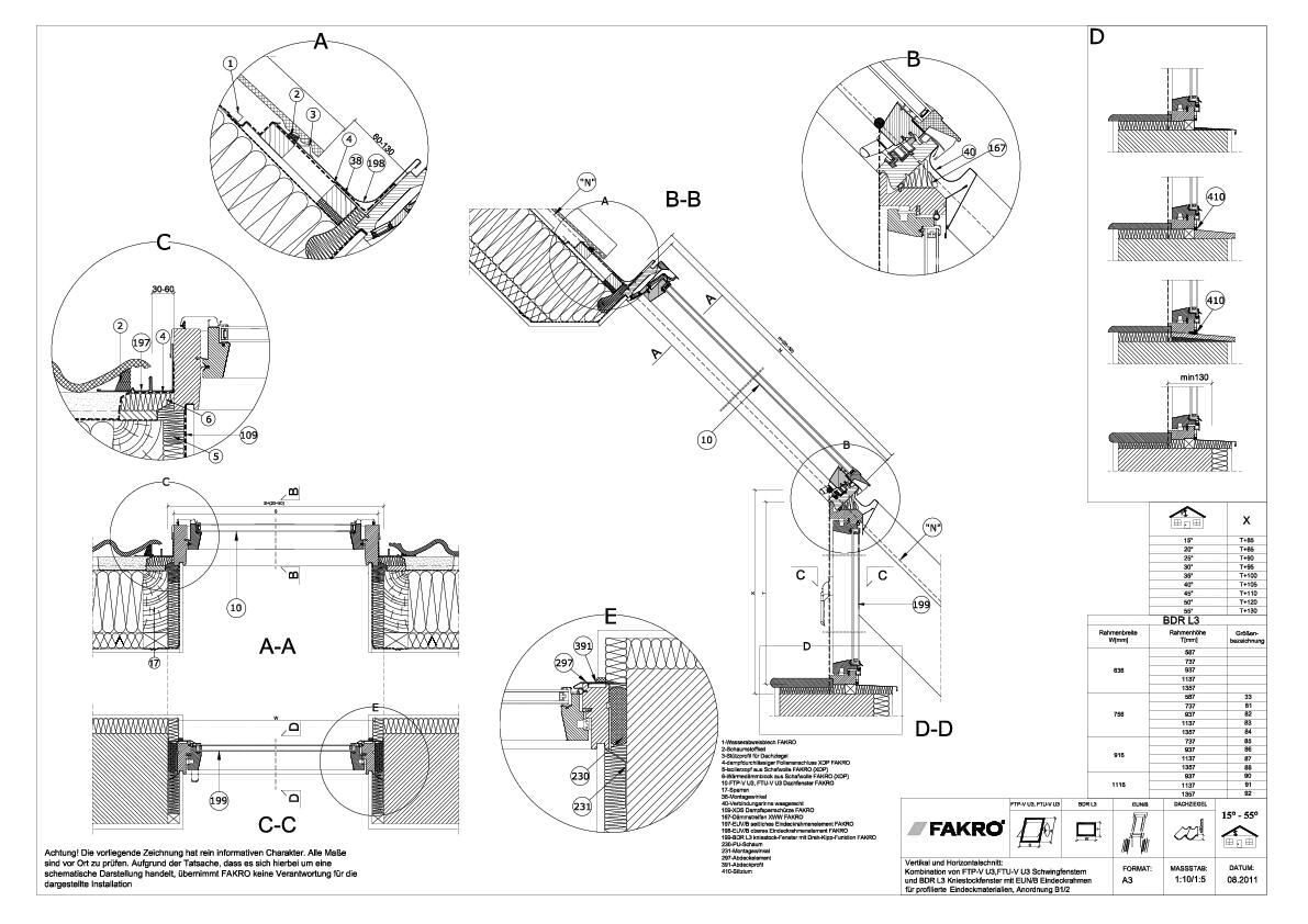
EUN – Knie-Eindeckrahmen

FAKRO Dachfenster

6 CAD-Details zum Thema Fenstersteuerungen
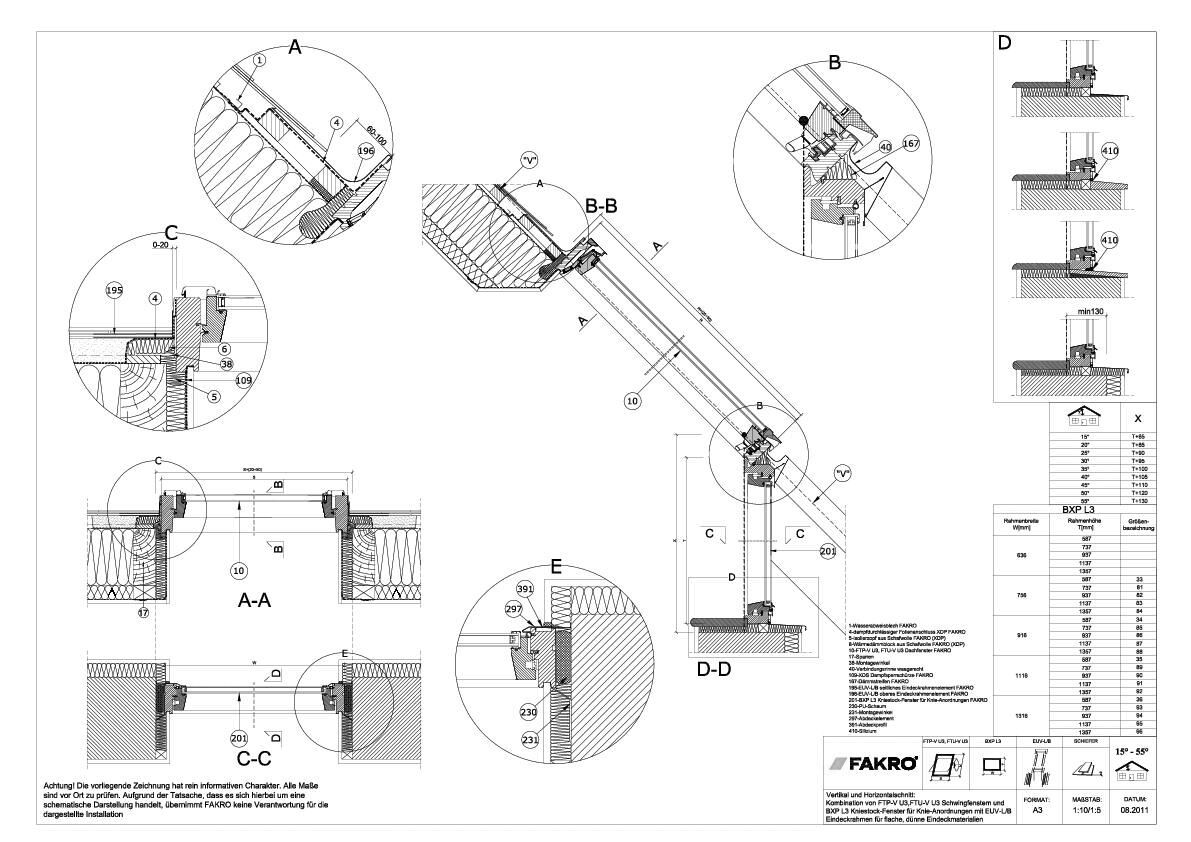
EUV_B – Knie-Eindeckrahmen

FAKRO Dachfenster

26 CAD-Details zum Thema Fenstersteuerungen
EUV-L_B – Knie-Eindeckrahmen

FAKRO Dachfenster

7 CAD-Details zum Thema Fenstersteuerungen
EZA – Aufkeilrahmen

FAKRO Dachfenster

10 CAD-Details zum Thema Fenstersteuerungen
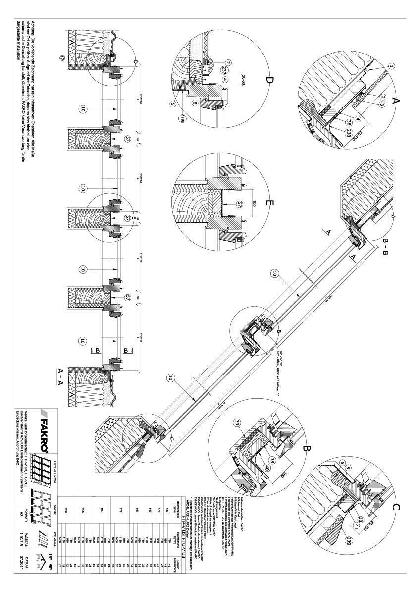
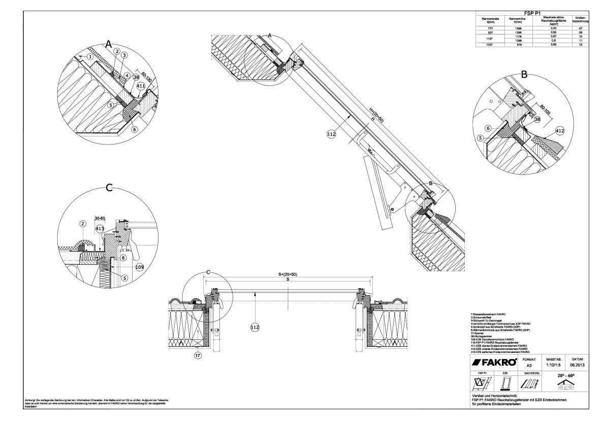
EZS – Eindeckrahmen für profilierte Eindeckmaterialien

FAKRO Dachfenster

3 CAD-Details zum Thema Fenstersteuerungen
EZV – Eindeckrahmen für profilierte Eindeckmaterialien

FAKRO Dachfenster

14 CAD-Details zum Thema Fenstersteuerungen
EZW – Eindeckrahmen für profilierte Eindeckmaterialien

FAKRO Dachfenster

1 CAD-Detail zum Thema Fenstersteuerungen
KDV – Eindeckrahmen für profilierte Eindeckmaterialien

FAKRO Dachfenster

22 CAD-Details zum Thema Fenstersteuerungen
KHN – Eindeckrahmen für hochprofilierte Eindeckmaterialien

FAKRO Dachfenster

2 CAD-Details zum Thema Fenstersteuerungen
KSV – Eindeckrahmen für flache Eindeckmaterialien

FAKRO Dachfenster

3 CAD-Details zum Thema Fenstersteuerungen
KZV – Eindeckrahmen für profilierte Eindeckmaterialien

FAKRO Dachfenster

6 CAD-Details zum Thema Fenstersteuerungen
Zubehör

FAKRO Dachfenster

13 CAD-Details zum Thema Fenstersteuerungen

Bitte melden Sie sich an

Um diese Funktion nutzen zu können, müssen Sie bei heinze.de registriert und angemeldet sein.

Hier anmelden
1351640550