814 CAD-Details von: FAKRO Dachfenster

Hier finden Sie Konstruktionszeichnungen, Ausführungsdetails und technische Zeichnungen zum Produktbereich in den wichtigsten CAD-Formaten (DWG und DXF).

Auswahl filtern

FAKRO Dachfenster
Dachfenster
Schwingfenster

FAKRO Dachfenster

108 CAD-Details zum Thema
Dachfenster mit Eindeckrahmen - Einbaudetails

FAKRO Dachfenster

290 CAD-Details zum Thema
EEJ – Eindeckrahmen für Flachblech

FAKRO Dachfenster

1 CAD-Detail zum Thema
EEV – Eindeckrahmen für Flachblech

FAKRO Dachfenster

13 CAD-Details zum Thema
EGJ – Eindeckrahmen für Schichtstücke

FAKRO Dachfenster

1 CAD-Detail zum Thema
EGV – Eindeckrahmen für dicke Schichtstücke

FAKRO Dachfenster

8 CAD-Details zum Thema
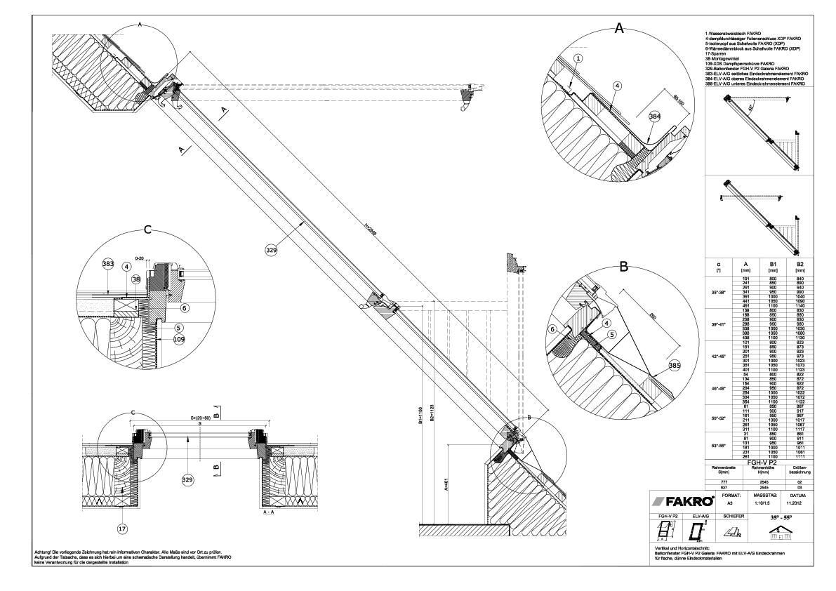
EHV-A_G – Balkonfenster-Eindeckrahmen

FAKRO Dachfenster

1 CAD-Detail zum Thema
EHV-AT_G Thermo - Balkonfenster-Eindeckrahmen

FAKRO Dachfenster

1 CAD-Detail zum Thema
ELJ – Eindeckrahmen für Schichtstücke

FAKRO Dachfenster

5 CAD-Details zum Thema
ELV – Eindeckrahmen für Schichtstücke

FAKRO Dachfenster

13 CAD-Details zum Thema
ERN-H – Firstverbindung

FAKRO Dachfenster

12 CAD-Details zum Thema
ERV-Z – Firstverbindung

FAKRO Dachfenster

11 CAD-Details zum Thema
ESA – Aufkeilrahmen

FAKRO Dachfenster

10 CAD-Details zum Thema
EUN – Knie-Eindeckrahmen

FAKRO Dachfenster

6 CAD-Details zum Thema
EUV_B – Knie-Eindeckrahmen

FAKRO Dachfenster

26 CAD-Details zum Thema
EUV-L_B – Knie-Eindeckrahmen

FAKRO Dachfenster

7 CAD-Details zum Thema
EZA – Aufkeilrahmen

FAKRO Dachfenster

10 CAD-Details zum Thema
Dachfenster Zusatzelemente

FAKRO Dachfenster

32 CAD-Details zum Thema
Rauchabzugsfenster

FAKRO Dachfenster

48 CAD-Details zum Thema
Kniestockfenster

FAKRO Dachfenster

90 CAD-Details zum Thema

Bitte melden Sie sich an

Um diese Funktion nutzen zu können, müssen Sie bei heinze.de registriert und angemeldet sein.

Hier anmelden
1390476924