59 CAD-Details von: Gorter Deutschland

Hier finden Sie Konstruktionszeichnungen, Ausführungsdetails und technische Zeichnungen zum Produktbereich in den wichtigsten CAD-Formaten (DWG und DXF).

Auswahl filtern

Gorter Deutschland
Gorter®
Schachtabdeckungen
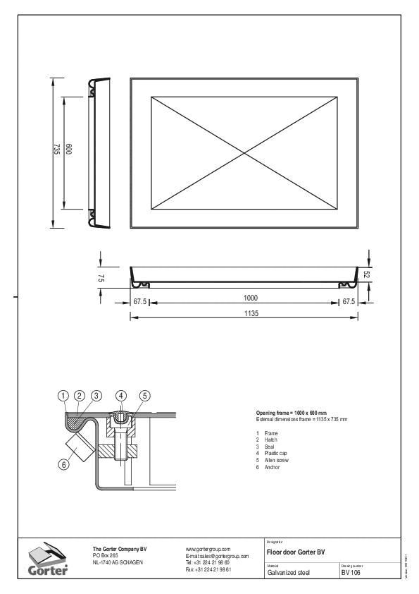
WA Bodenluken

Gorter Deutschland

6 CAD-Details zum Thema
WAEI Bodenluken

Gorter Deutschland

5 CAD-Details zum Thema
WAPT Bodenluken

Gorter Deutschland

5 CAD-Details zum Thema
WAG Bodenluken

Gorter Deutschland

2 CAD-Details zum Thema
OP Bodenluken

Gorter Deutschland

5 CAD-Details zum Thema
Bodenluke Bodenklappe

Gorter Deutschland

36 CAD-Details zum Thema

Bitte melden Sie sich an

Um diese Funktion nutzen zu können, müssen Sie bei heinze.de registriert und angemeldet sein.

Hier anmelden
1454767003