CAD-Detail 4 von 13

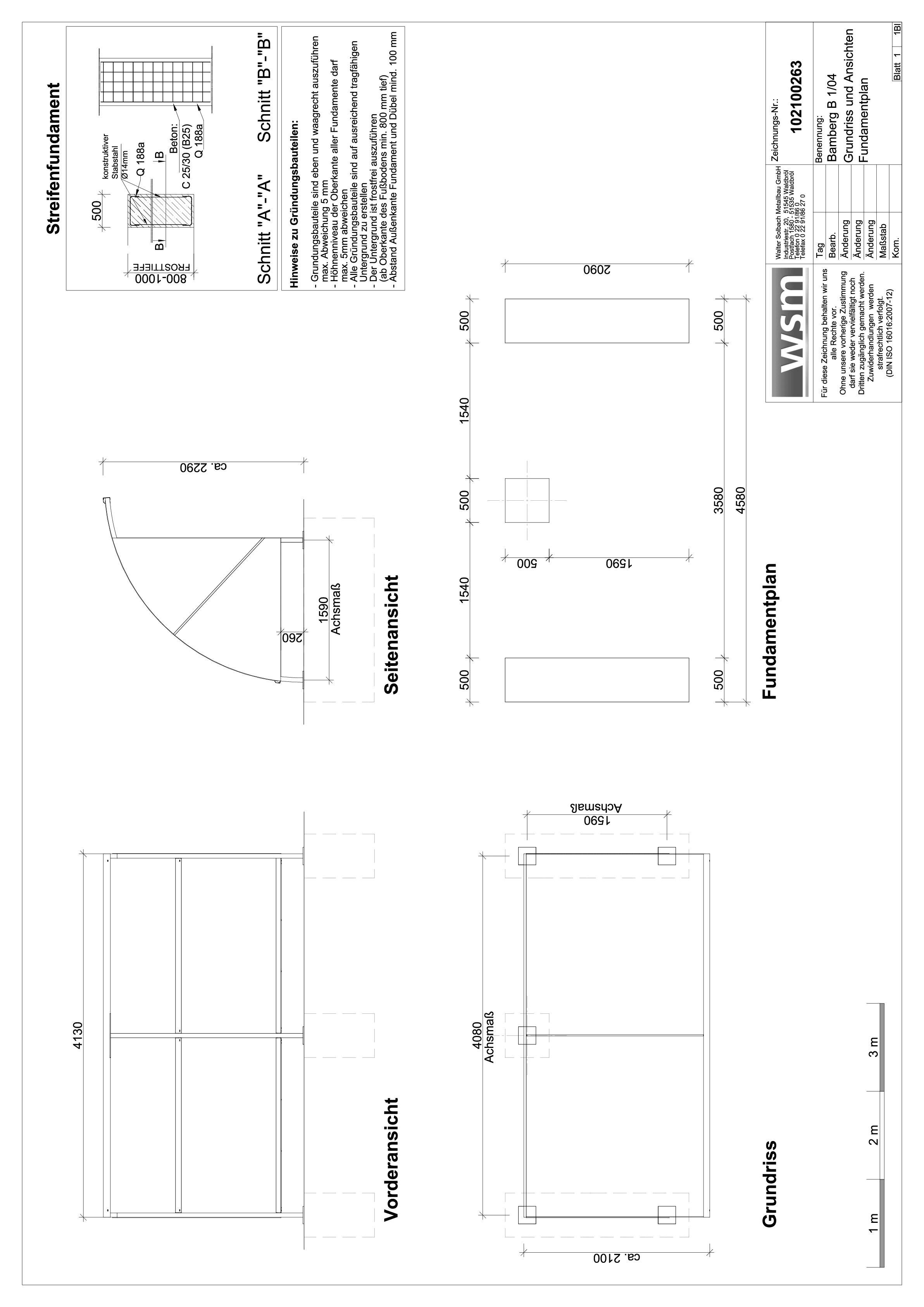
WSM Überdachungssystem Bamberg

WSM - Walter Solbach Metallbau


WSM - Walter Solbach Metallbau - WSM Überdachungssystem Bamberg

Das von Ihnen ausgewählte CAD-Detail ist Bestandteil einer herstellerspezifischen Zusammenstellung von Details und Konstruktionszeichnungen. Für eine optimale Vorschau und leichtere Auswahl der Zeichnungen leiten wir Sie zu unserem CAD-Manager weiter.

Diese Zusammenstellung beinhaltet 1 CAD-Detail.

Passende Inhalte zum CAD-Detail "WSM Überdachungssystem Bamberg"

Passende Produktinformationen

Überdachungsysteme und Einhausungen
Überdachungssysteme und Einhausungen von WSM bieten zuverlässigen Schutz vor Witterung und sind dabei funktional, optisch ansprechend und flexibel. Ob Personenüberdachungen, Fahrradunterstände oder Einhausungen – die robusten, korrosionsgeschützte Konstruktionen der WSM Überdachungssysteme sind in verschiedenen Größen und Designs erhältlich, optional mit zusätzlichen Features wie integrierter Beleuchtung oder begrünten Dächern.
Nachhaltige Mobilitätsinfrastruktur
Lösungen für eine nachhaltige Mobilitätsinfrastruktur unterstützen das Angebot im Radverkehr und ÖPNV. WSM Überdachungen für Fahrradständer und Haltestellen, ausgestattet mit Ladestationen für E-Bikes, VersoVolt Photovoltaikanlagen und der GreenPlus Dachbegrünung, verbessern die städtische Infrastruktur und leisten einen Beitrag für eine nachhaltige Mobilität.

Bitte melden Sie sich an

Um diese Funktion nutzen zu können, müssen Sie bei heinze.de registriert und angemeldet sein.

Hier anmelden

Diese Seite weiterempfehlen

1492085529