Gorter Deutschland GmbH
Ohligsmühle 7
42103 Wuppertal
Deutschland
Alle Inhalte von Gorter Deutschland
Produktinformationen Produkte / BIM-Daten Ausschreibungstexte CAD-Details Architekturobjekte Alle Inhalte anzeigenPassende Suchbegriffe zu Gorter Deutschland
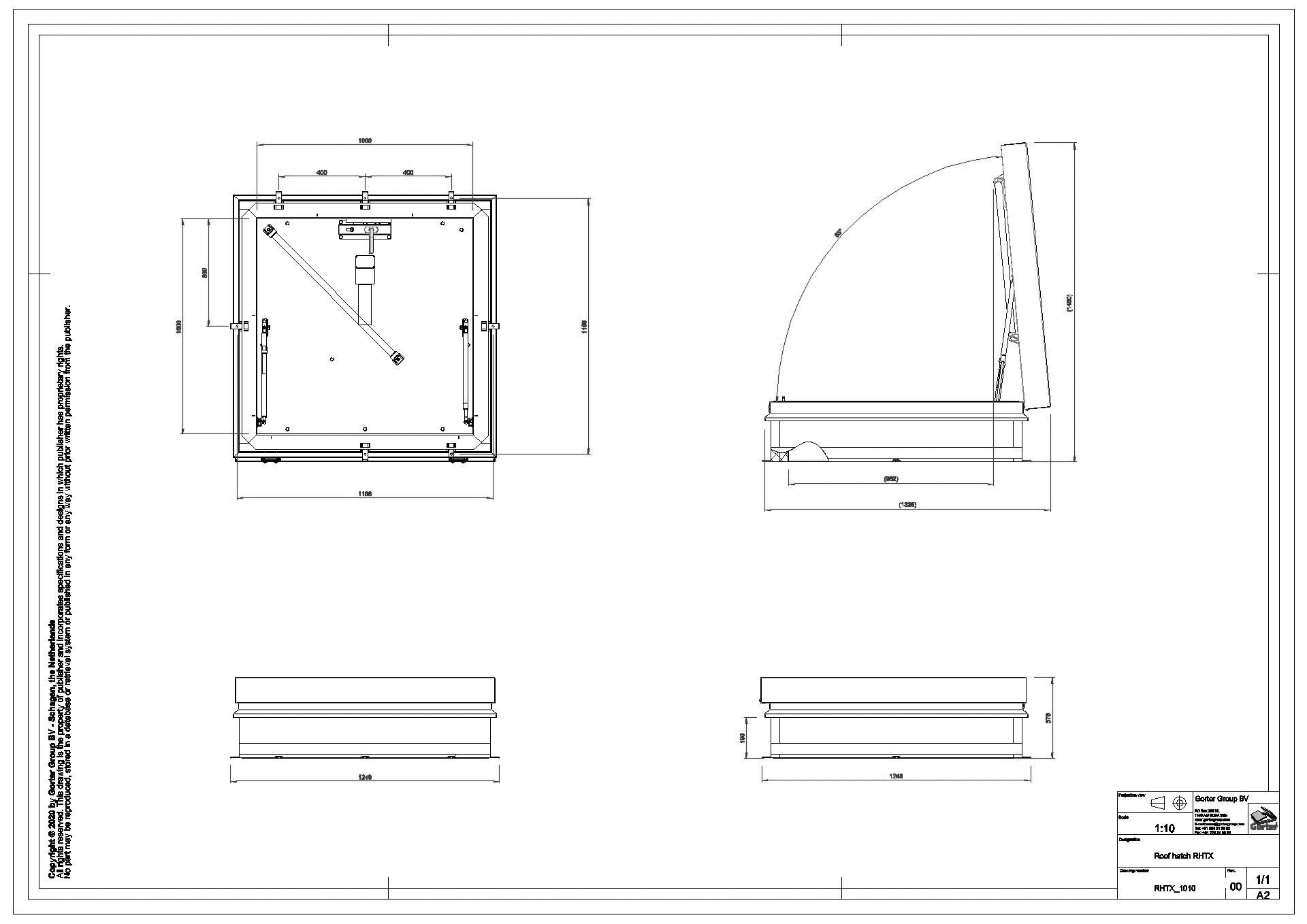
Schachtabdeckungen Schachtbauteile Dachausstiegs-Klappen Dächer Dachausstiege Reinigungsschächte Bodenluken Revisionsschächte Einzelschachtabdeckungen Revisionsschacht-Abdeckungen Notausstiegfunktion Klappen Flachdach Dachterrassen Revisionsklappen Türen Dachluken Flachdachausstiege Flachdach-Fluchtwege Dachterrassen-Ausstiege Treppen Brandschutz Rauchschutz TageslichtnutzungRHTX Dachausstiege
Gorter Deutschland
Das von Ihnen ausgewählte CAD-Detail ist Bestandteil einer herstellerspezifischen Zusammenstellung von Details und Konstruktionszeichnungen. Für eine optimale Vorschau und leichtere Auswahl der Zeichnungen leiten wir Sie zu unserem CAD-Manager weiter.
Diese Zusammenstellung beinhaltet 3 CAD-Details.
Passende Inhalte zum CAD-Detail "RHTX Dachausstiege"
Passende Produktinformationen
Passende Produkte
Passende Ausschreibungstexte
Ähnliche Hersteller
Das könnte Sie auch interessieren