CAD-Detail 30 von 73

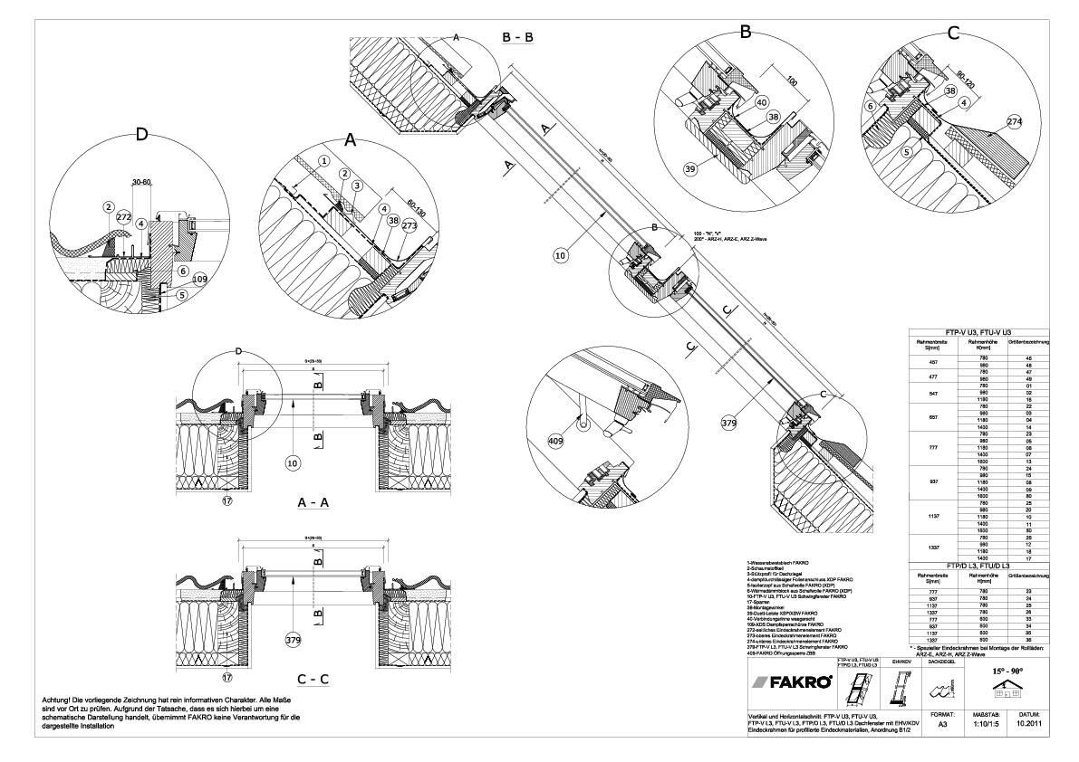
KDV – Eindeckrahmen für profilierte Eindeckmaterialien

FAKRO Dachfenster


FAKRO Dachfenster - KDV – Eindeckrahmen für profilierte Eindeckmaterialien

Das von Ihnen ausgewählte CAD-Detail ist Bestandteil einer herstellerspezifischen Zusammenstellung von Details und Konstruktionszeichnungen. Für eine optimale Vorschau und leichtere Auswahl der Zeichnungen leiten wir Sie zu unserem CAD-Manager weiter.

Diese Zusammenstellung beinhaltet 22 CAD-Details.

Passende Inhalte zum CAD-Detail "KDV – Eindeckrahmen für profilierte Eindeckmaterialien"

Passende Produktserien

Dachflächenfenster mit Thermoisolation
Dachflächenfenster mit Thermoisolation aus Holz oder Kunststoff und passenden Anschlusslösungen für den energiesparenden Anschluss an die bestehende Dachkonstruktion. FAKRO Dachflächenfenster sind als Klapp-Schwingfenster, Schwingfenster, Balkonfenster, Ausstiegsfenster und Dachfenster-Kombinationen für den Einbau in Anordnungen erhältlich. Hierfür stehen verschiedene Isolierverglasungen von energiesparend bis einbruchsicher zur Auswahl.
Dach-Austauschfenster
Dach-Austauschfenster von FAKRO ermöglichen einen Dachfensteraustausch ohne die Fensternische und die Innenverkleidung zu verändern. Die Fenstergrößen der Dach-Austauschfenster und die Abstände der Innenfutternuten werden an die Maße der alten Dachfenster angepasst. Mit dem Dach-Austauschfenster von FAKRO ist die Sanierung unter weitestgehender Erhaltung der Bausubstanz möglich.

Bitte melden Sie sich an

Um diese Funktion nutzen zu können, müssen Sie bei heinze.de registriert und angemeldet sein.

Hier anmelden

Diese Seite weiterempfehlen

1352458043