CAD-Detail 8.223 von 14.840

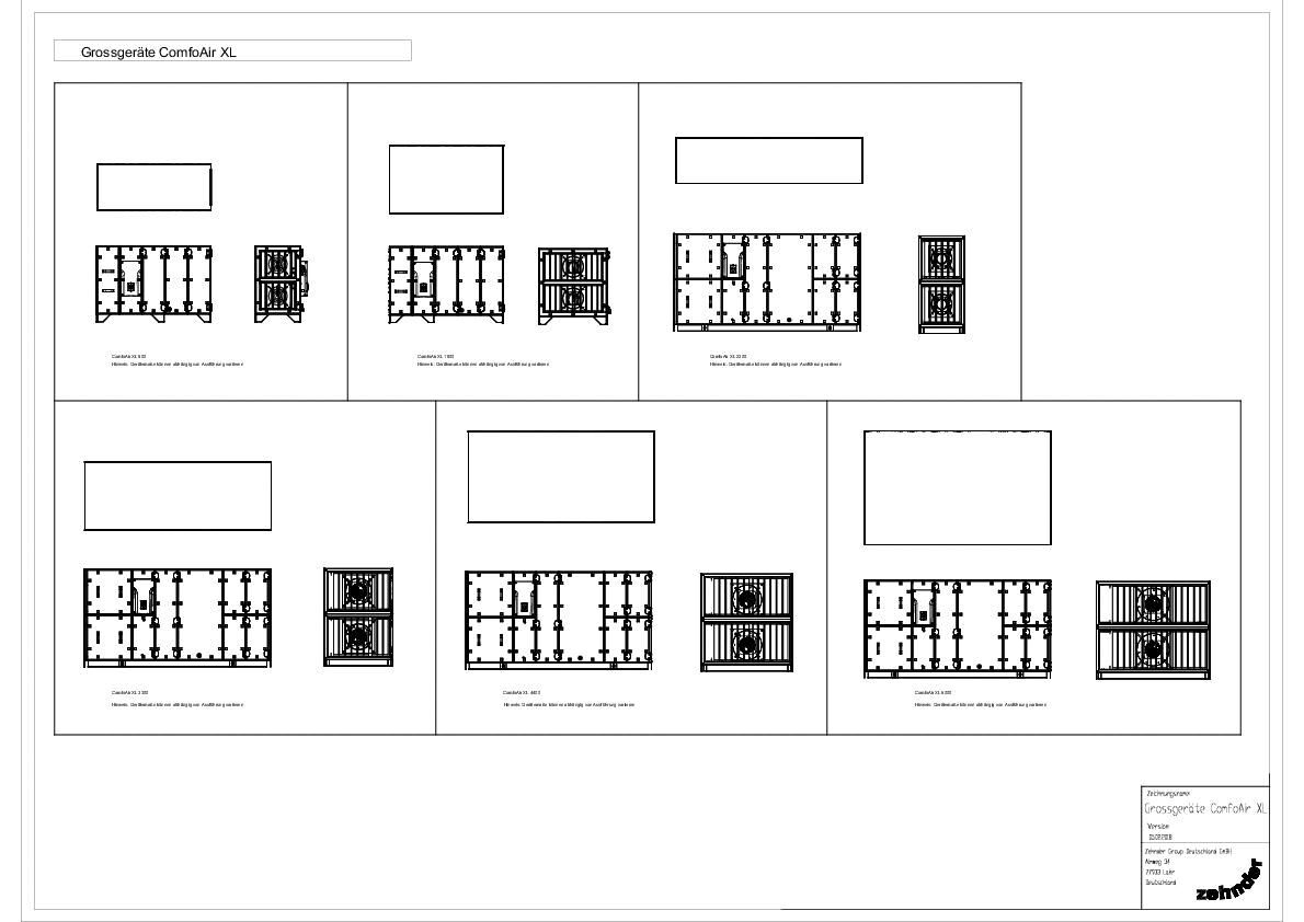
Grossgeräte

Zehnder


Zehnder - Grossgeräte

Das von Ihnen ausgewählte CAD-Detail ist Bestandteil einer herstellerspezifischen Zusammenstellung von Details und Konstruktionszeichnungen. Für eine optimale Vorschau und leichtere Auswahl der Zeichnungen leiten wir Sie zu unserem CAD-Manager weiter.

Diese Zusammenstellung beinhaltet 3 CAD-Details.

Passende Inhalte zum CAD-Detail "Grossgeräte"

Passende Produktserien

Zehnder zentrale Raumlüftung
Zentrale Komfort-Lüftungsgeräte Zehnder ComfoAir Q für Wohnungen, Einfamilienhäuser und kleinere Gewerbeeinheiten mit Luftleistungen bis 600 m³/h. Innovativen Lösungen für energiesparenden und leisen Betrieb, mit hoher Wärmerückgewinnung, für Wohlfühlklima und modernen Bedienkomfort. Mit den optional Systemerweiterungen, wie Erdwärmetauscher, Luftverteilsystem oder der Kühleinheit ComfoClime Cool können zusätzliche Anforderungen erfüllt werden.
Zehnder Lüftungssysteme für Großprojekte
Großprojekte wie Schulen, Kliniken, Restaurants, Bibliotheken, Bürokomplexe, Fitnesszentren oder Gewerbeobjekte bedürfen einer abgestimmten Lüftungslösung. So lassen sich die Ansprüche und Vorgaben der Bauherren hinsichtlich Energieeffizienz, Schallschutz, Komfort und Wartungsfreundlichkeit erfüllen. Zehnder bietet ausgereifte Komplettsysteme für Sanierung und Neubau, zertifizierte Sicherheit und Unterstützung bei der Umsetzung des Lüftungskonzeptes.

Bitte melden Sie sich an

Um diese Funktion nutzen zu können, müssen Sie bei heinze.de registriert und angemeldet sein.

Hier anmelden

Diese Seite weiterempfehlen

1401608291