GROHE Deutschland
Vertriebs GmbH
Zur Porta 9
32457 Porta Westfalica
Deutschland
Alle Inhalte von GROHE
Produktserien Produktdaten Ausschreibungstexte CAD-Details Architekturobjekte Alle Inhalte anzeigenPassende Suchbegriffe zu GROHE
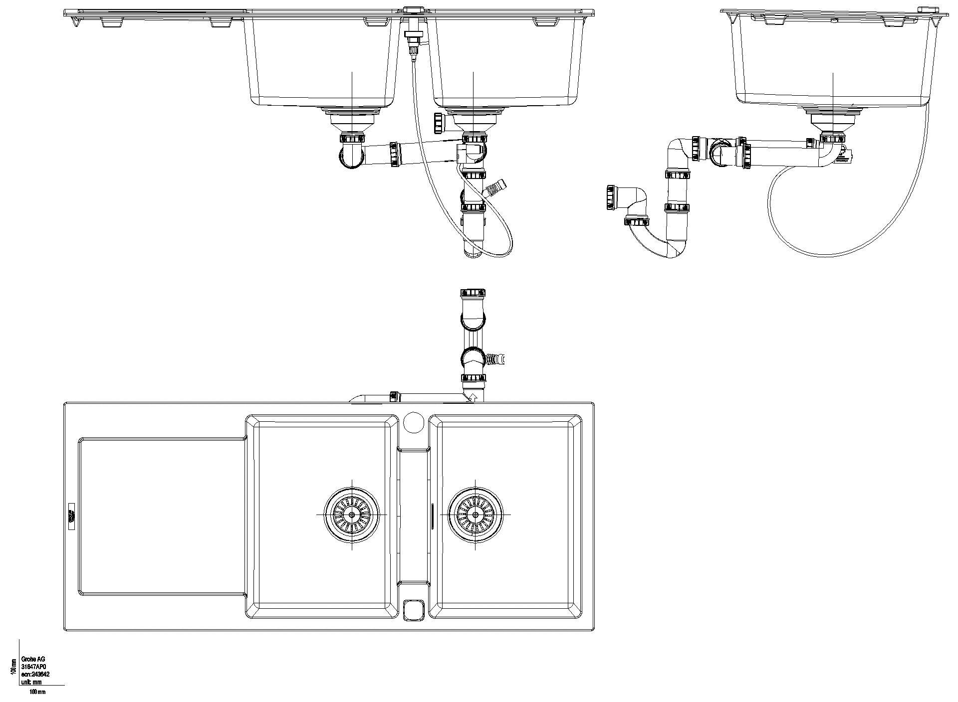
Sanitärarmaturen Badarmaturen Thermostatarmaturen Badewannenarmaturen Einhandarmaturen Bidetarmaturen Spültischarmaturen Brause-Mischbatterien Duscharmaturen Brausegarnituren Handbrausen Sanitärobjekte Urinal-Spülarmaturen Tafelwasserspender Waschtische Bidet-Becken WC-Becken Selbstschlussventile Vorgefertigte Installationseinheiten Spezialarmaturen Küchenarmaturen Wasser-Meldesensoren Ablaufgarnituren Regenbrausen SanitärauslaufarmaturenGROHE Kompositspüle K500 31647 2 Becken 1160x500mm mit ATF re/li granit schwarz
GROHE
Passende Inhalte zum CAD-Detail "GROHE Kompositspüle K500 31647 2 Becken 1160x500mm mit ATF re/li granit schwarz"
Passende Produktserie
Passendes Produkt
Passende Ausschreibungstexte 6
Alle anzeigenÄhnliche Hersteller
Das könnte Sie auch interessieren