CAD-Detail 97 von 173

GM RAILING

Glas Marte


Glas Marte - GM RAILING

Das von Ihnen ausgewählte CAD-Detail ist Bestandteil einer herstellerspezifischen Zusammenstellung von Details und Konstruktionszeichnungen. Für eine optimale Vorschau und leichtere Auswahl der Zeichnungen leiten wir Sie zu unserem CAD-Manager weiter.

Diese Zusammenstellung beinhaltet 37 CAD-Details.

Passende Inhalte zum CAD-Detail "GM RAILING"

Passende Produktserie

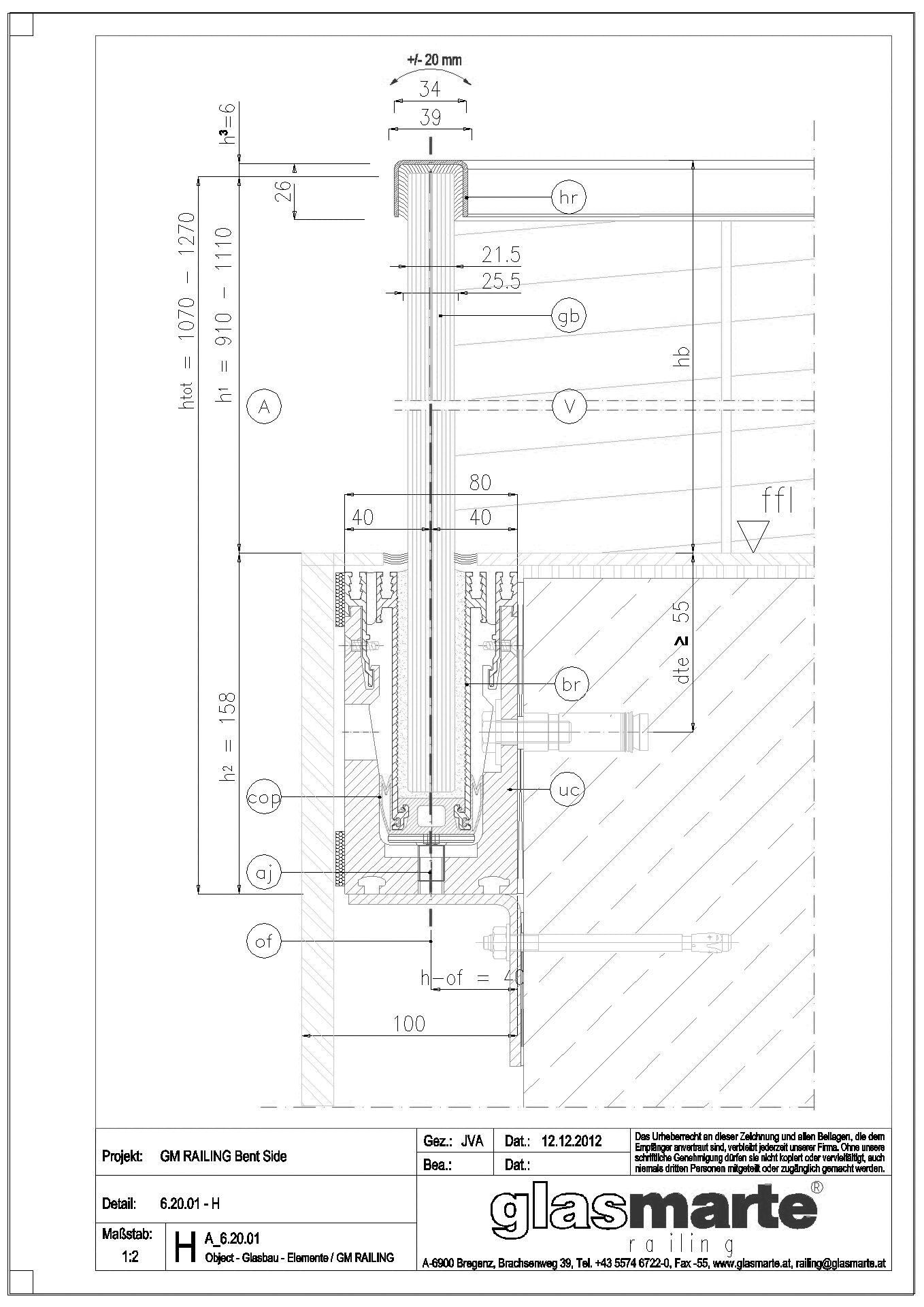
Glasgeländer GM RAILING® und GM WINDOORAIL
Die GM RAILING® Ganzglasgeländer sind vielseitig anwendbar. Basierend auf unterschiedlichen Systemen lassen sich viele Varianten realisieren. Zur Produktserie gehören auch Glasgeländermodule für Französische Fenster: GM WINDOORAIL®.

Bitte melden Sie sich an

Um diese Funktion nutzen zu können, müssen Sie bei heinze.de registriert und angemeldet sein.

Hier anmelden

Diese Seite weiterempfehlen

1389597381