Systea GmbH
Margarete-Steiff-Str. 6
24558 Henstedt-Ulzburg
Deutschland
Alle Inhalte von SYSTEA
Produktinformationen Produktdaten Ausschreibungstexte CAD-Details Architekturobjekte Alle Inhalte anzeigenPassende Suchbegriffe zu SYSTEA
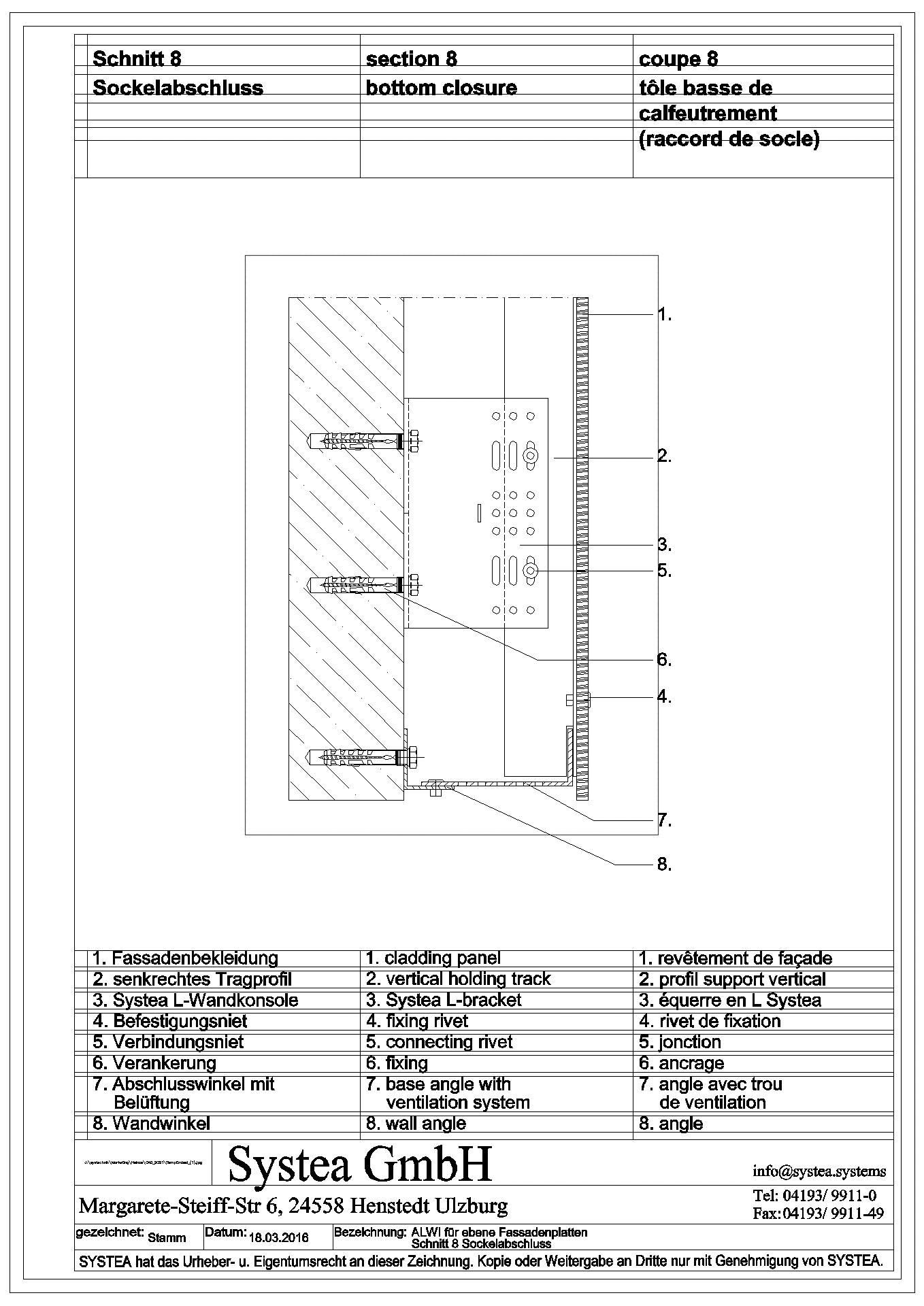
Fassadenbekleidungen Profile Fassaden Außenwandbekleidungssysteme Bekleidung Bekleidung Unterkonstruktion Außenwände Wände Vorgehängte hinterlüftete Fassaden Hinterlüftete Fassaden Fassadenplatten Vorhangfassaden Fassadenprofile Fassadenbausysteme Wandbekleidungen Befestigung Platten-Montageprofile Montage Fassadenbefestigungen Bau-Befestigungsmittel Profilbausysteme Wandbausysteme Fassadenplattenprofile Außenwandbekleidungen Fassadenkonstruktionen2021_09_22_ALWI_Fassadenplatten_50_Sockelabschluss_V1
SYSTEA
Passende Inhalte zum CAD-Detail "2021_09_22_ALWI_Fassadenplatten_50_Sockelabschluss_V1"
Passende Produktinformationen
Passendes Produkt
Passende Ausschreibungstexte 133
Alle anzeigenÄhnliche Hersteller
Das könnte Sie auch interessieren