
MEA Bautechnik GmbH
Sudetenstr. 1
86551 Aichach
Deutschland
Alle Inhalte von MEA Bautechnik
Produktserien Produkte / BIM-Daten Ausschreibungstexte CAD-Details Architekturobjekte Alle Inhalte anzeigenPassende Suchbegriffe zu MEA Bautechnik
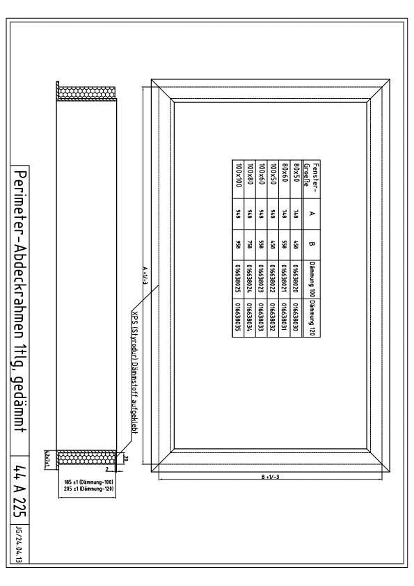
Keller Belichtung - Tageslicht Fertigfensterelemente Fenster Kellerfenster Schachtbauteile Entwässerung Entwässerungsanlagen Lichtschächte Ablauftechnik Garagen Werkstätten Fassadenschacht-Zubehör Entwässerungsrinnen Fensterbausysteme Kellerfenstersysteme Schächte Gitterroste Fenstersysteme KippflügelfensterPerimeter-Abdeckrahmen MEAFRAME für MEALUXIT
MEA Bautechnik
Der von Ihnen ausgewählte Ausschreibungstext ist Bestandteil einer herstellerspezifischen Zusammenstellung von Leistungsbeschreibungen. Für eine optimale Vorschau und leichtere Auswahl der gewünschten Texte leiten wir Sie zu unserem Ausschreibungstext-Manager weiter.
Diese Zusammenstellung beinhaltet 64 Einzelpositionen.
Passende Inhalte zum Ausschreibungstext "Perimeter-Abdeckrahmen MEAFRAME für MEALUXIT"
Passende Produktserien
Passende CAD-Details
Ähnliche Hersteller
Das könnte Sie auch interessieren