Text 12 von 34

Frontgitterzaun Athos

Heras


Heras Frontgitterzaun Athos ...... cm hoch,
 
liefern und fachgerecht montieren wie nachstehend
beschrieben.
 

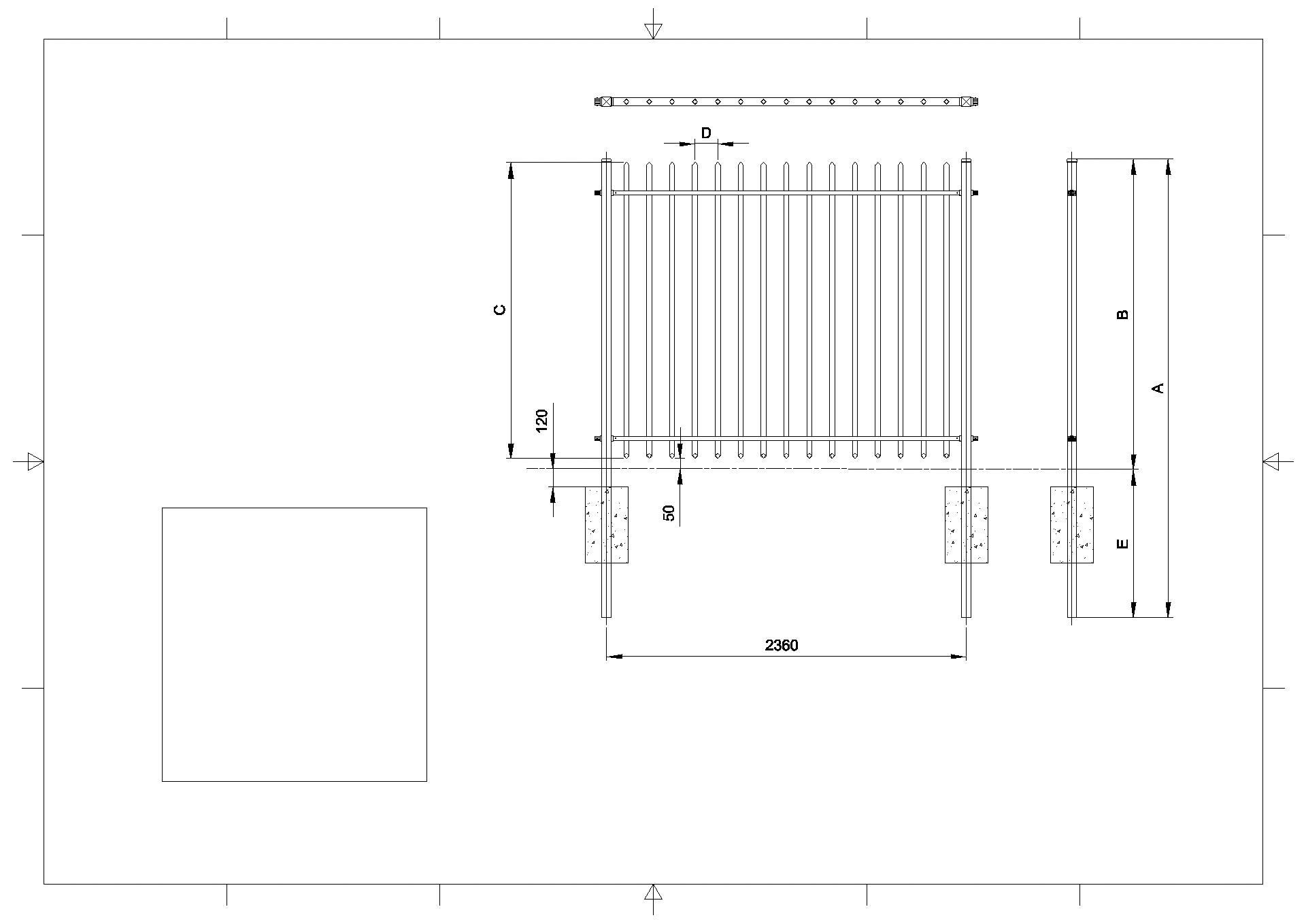
Pfosten:

Bestehend aus Quadratrohren 60 x 60 x 2 mm mit Abdeckkappe.
 
Pfostenlänge: ...............m
 

Frontgitterfelder:

Oberer und unterer Querträger aus einseitig an der
Oberseite abgerundetem Stahlprofil 50 x 30 x 25 mm,
Wandstärke 2 mm. Vertikal durch die Träger gesteckte
Gitterstäbe, Kernabstand 150 mm, Quadratstahlrohr
25 x 25 mm.
 

Korrosionsschutz:

Sämtliche Stahlteile sind nach der Herstellung innen
und außen hochwertig verzinkt.
 
( ).....Und zusätzlich kunststoffbeschichtet.
........Die Pulverbeschichtung ist lichtecht sowiekratz- .und stoßfest.
 
.....( ).....RAL 6005 moosgrün
.....( ).....RAL 7016 anthrazitgrau
.....( ).....RAL 7030 steingrau
.....( )................

 

Ausführung:

Die Pfosten sind im Kernabstand von 2.360 mm (blinde
Verbindung) bzw. 2.420 mm (Bügelverbindung)
 
( ).....in Betoneinzelfundamente
 
........Abmessung ..... x ....... x ...... cm,
 
........bei Bodenklasse ..........
 
( ).....mittels angeschweißter Fußplatte 160 x 160 mmmit 1 Dübel M 16 auf
.....( ).....eine vorhandene Mauer
.....( ).....einen Betonboden
.....( ).............
lot-, und fluchtgerecht zu versetzen. Die Frontgitterfelder werden durch Spezialbefestigungselemente am Pfosten befestigt.
 

  • Menge: ..........
  • Einheit: m
  • EP: ..........
  • GP: ..........

Passende Inhalte zum Ausschreibungstext "Frontgitterzaun Athos"

Passende Produktserie

Frontgitter übersteigsicher
Seriengefertigte Frontgitterzäune aus Stahl-Vierkant- oder Rundstäben. Ausführungen je nach Anwendungsgebiet: stabil durch doppelten Oberträger, übersteigsicher durch abgeschrägte Senkrechtstäbe oder Zackenleiste oder kinderfreundlich durch spezielle Konstruktionen, die ein Überklettern und Einklemmen verhindern.

Bitte melden Sie sich an

Um diese Funktion nutzen zu können, müssen Sie bei heinze.de registriert und angemeldet sein.

Hier anmelden

Diese Seite weiterempfehlen

1447918246