Text 25 von 54

Fiberglas-Hubtor SPACELITE® HT80 / HT80XL

Butzbach Industrietore


Der von Ihnen ausgewählte Ausschreibungstext ist Bestandteil einer herstellerspezifischen Zusammenstellung von Leistungsbeschreibungen. Für eine optimale Vorschau und leichtere Auswahl der gewünschten Texte leiten wir Sie zu unserem Ausschreibungstext-Manager weiter.

Diese Zusammenstellung beinhaltet 2 Einzelpositionen.

Passende Inhalte zum Ausschreibungstext "Fiberglas-Hubtor SPACELITE® HT80 / HT80XL"

Passende Produktserien

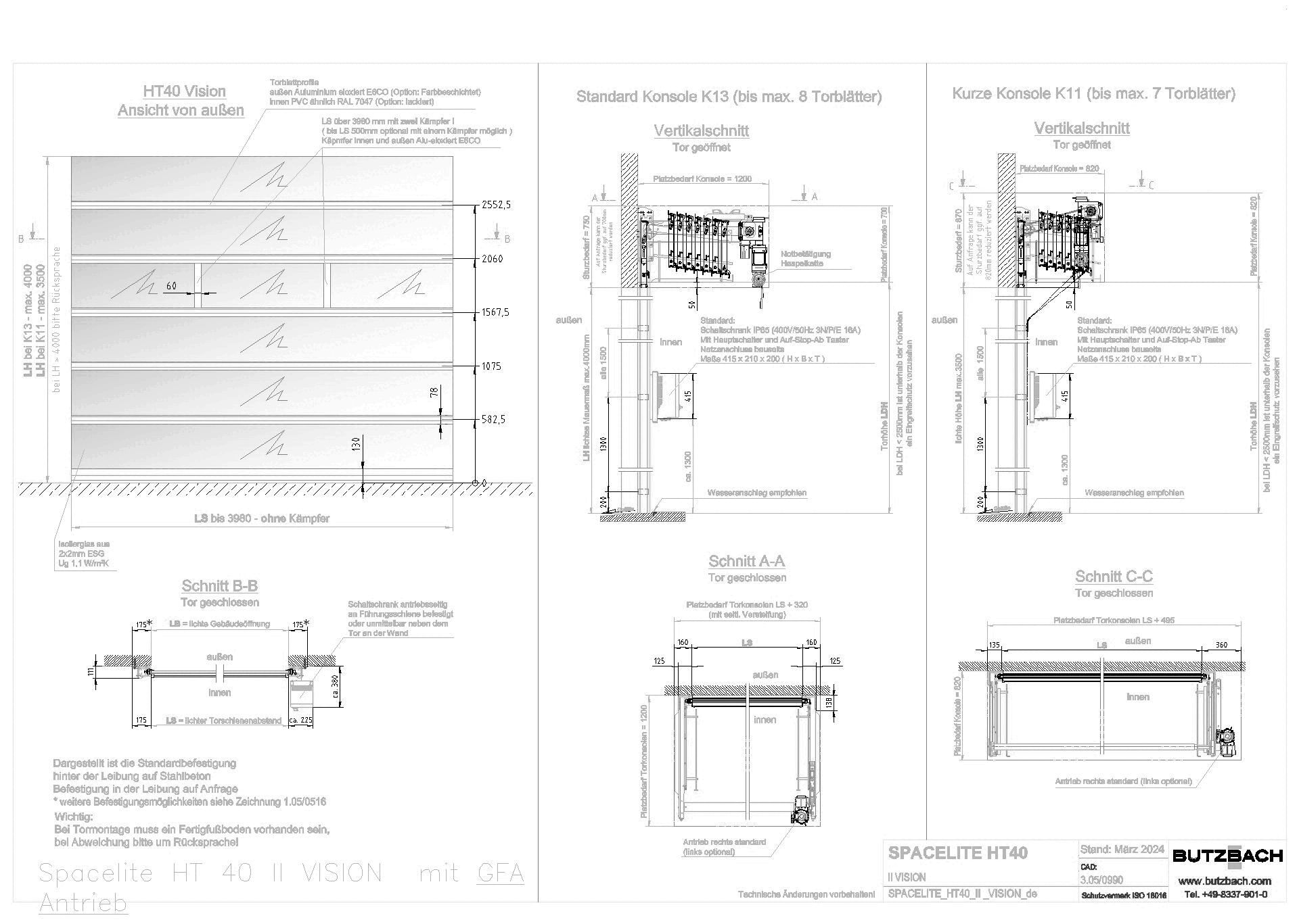
Hubtore
Hubtore SPACELITE sind platzsparend, wärmedämmend, lichtdurchlässig und in einbruchhemmender Ausführung nach DIN/TS 18194 auch als Sicherheitstore einsetzbar. Beim Öffnen der Hubtore reihen sich die einzelnen Torelemente senkrecht und kompakt hintereinander auf. Vielfältige Ausstattungsoptionen machen SPACELITE Hubtore zu einem flexiblen Industrietorsystem, das sich auch für großformatige Tore (bis zu 25 m Breite oder 24 m Höhe) eignet.
Sicherheitstore
Sicherheitstore von Butzbach garantieren maximalen Schutz für Gebäude mit hohen Sicherheitsanforderungen. Die Hub- und Sektionaltore erfüllen einen erhöhten Sicherheitsschutz (Widerstandsklassen RC2, RC3 und RC4) gemäß DIN/TS 18194 für sicherheitsrelevante Infrastrukturen.

Bitte melden Sie sich an

Um diese Funktion nutzen zu können, müssen Sie bei heinze.de registriert und angemeldet sein.

Hier anmelden

Diese Seite weiterempfehlen

1353035309