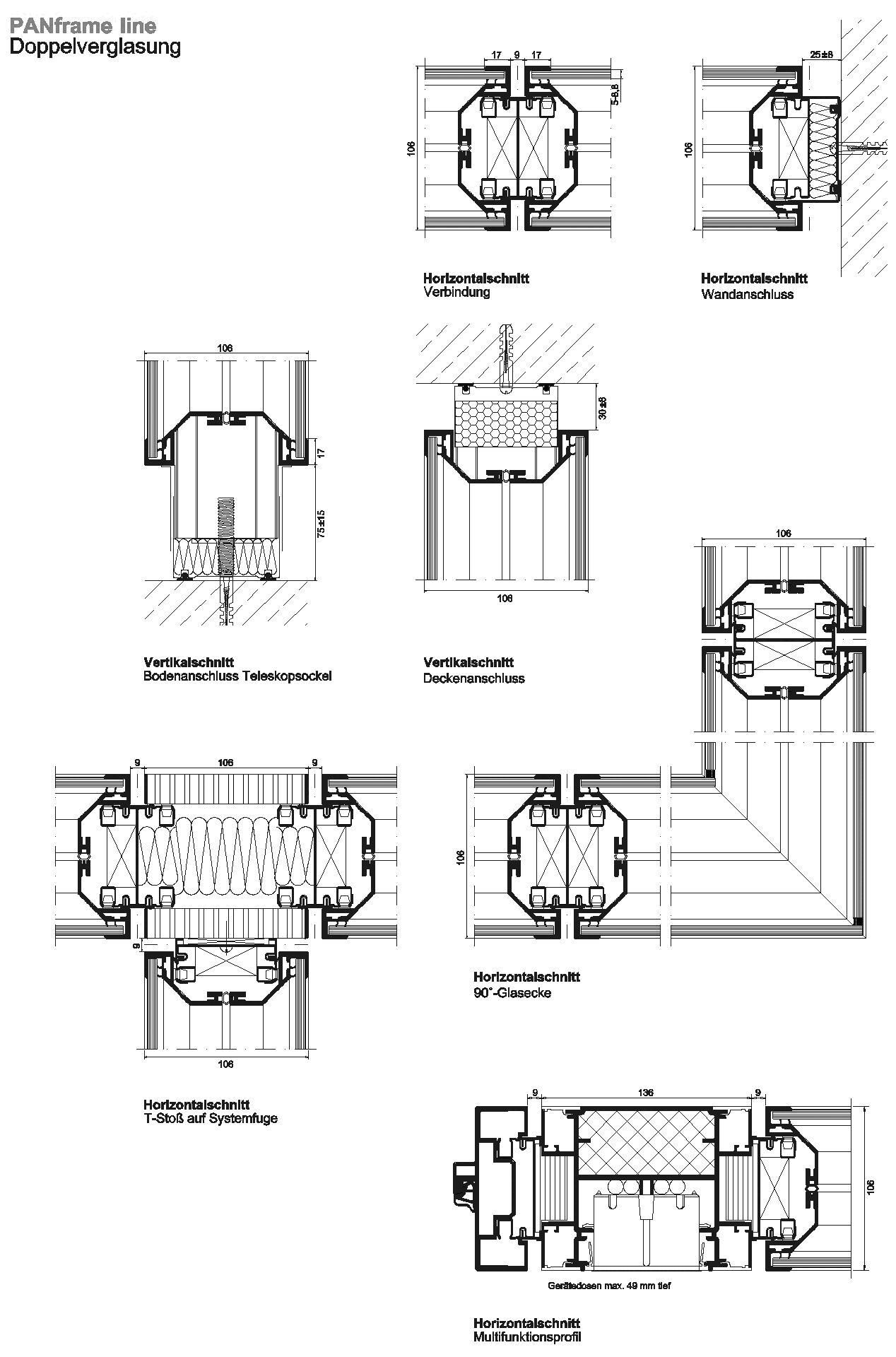
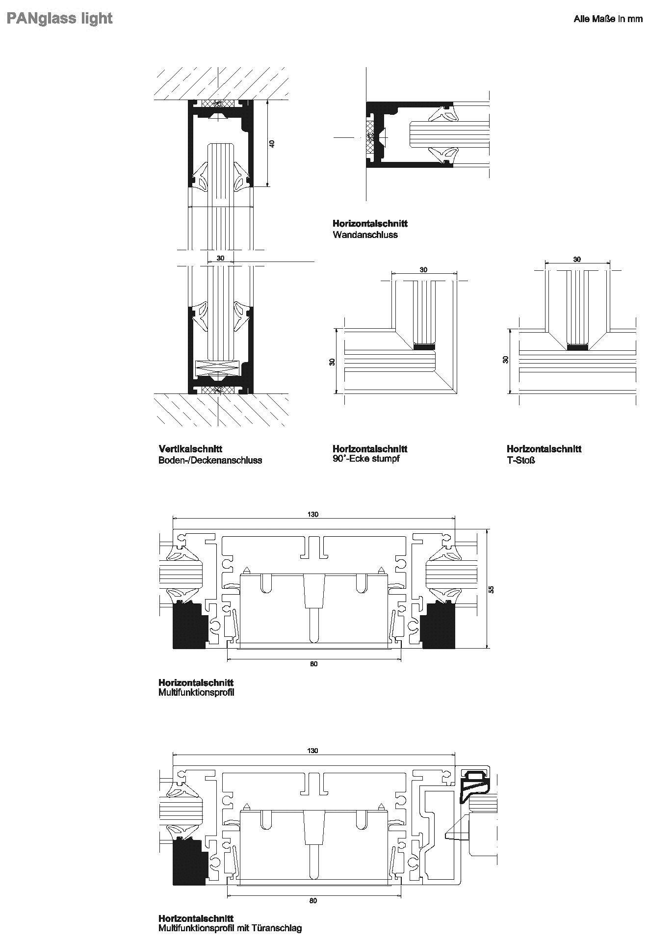
119

CAD-Details zu Ganzglas-Wände

Hier finden Sie Konstruktionszeichnungen, Ausführungsdetails und technische Zeichnungen zum Produktbereich Ganzglas-Wände in den wichtigsten CAD-Formaten (DWG und DXF).

Suche: Ganzglas-Wände

Auswahl filtern

CAD-Daten bei mysolarlux

Solarlux

1 CAD-Detail zum Thema Ganzglas-Wände
Glastrennwände

GEZE

39 CAD-Details zum Thema Ganzglas-Wände
GM SCHIEBESYSTEME

Glas Marte

6 CAD-Details zum Thema Ganzglas-Wände
CAD

Schüco International Alusysteme

1 CAD-Detail zum Thema Ganzglas-Wände
Raumgestaltungssystem Schüco Interior Systems

ALUMIS

1 CAD-Detail zum Thema Ganzglas-Wände
PANwood

PAN+ARMBRUSTER

Bitte melden Sie sich an

Um diese Funktion nutzen zu können, müssen Sie bei heinze.de registriert und angemeldet sein.

Hier anmelden
1449909002