241

CAD-Details zu Aluminium-Profile

Hier finden Sie Konstruktionszeichnungen, Ausführungsdetails und technische Zeichnungen zum Produktbereich Aluminium-Profile in den wichtigsten CAD-Formaten (DWG und DXF).

Auswahl filtern

SYSTEA
01_ALWI für ebene Fassadenplatten

SYSTEA

11 CAD-Details zum Thema Aluminium-Profile
02_ALWI für waagerecht verlegte Wellprofiltafeln

SYSTEA

10 CAD-Details zum Thema Aluminium-Profile
03_ALWI für waagerecht verlegte Siding

SYSTEA

3 CAD-Details zum Thema Aluminium-Profile
04_ALKAPO für ebene Fassadenplatten

SYSTEA

12 CAD-Details zum Thema Aluminium-Profile
05_UKLA für keramische Fassadenplatten

SYSTEA

5 CAD-Details zum Thema Aluminium-Profile
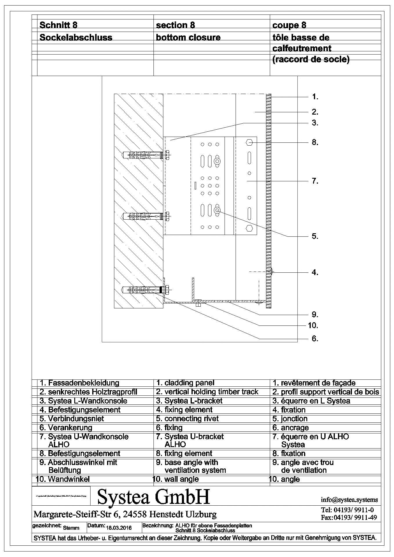
06_ALHO für ebene Fassadenplatten

SYSTEA

10 CAD-Details zum Thema Aluminium-Profile
07_ALWI für Fassadenplatten aus Verbundmaterial

SYSTEA

13 CAD-Details zum Thema Aluminium-Profile
08_ALWI für geklebte Fassadenplatten

SYSTEA

3 CAD-Details zum Thema Aluminium-Profile
09_TC110 Uk_ArGeTon Eisenberger-Keramikplatten

SYSTEA

13 CAD-Details zum Thema Aluminium-Profile
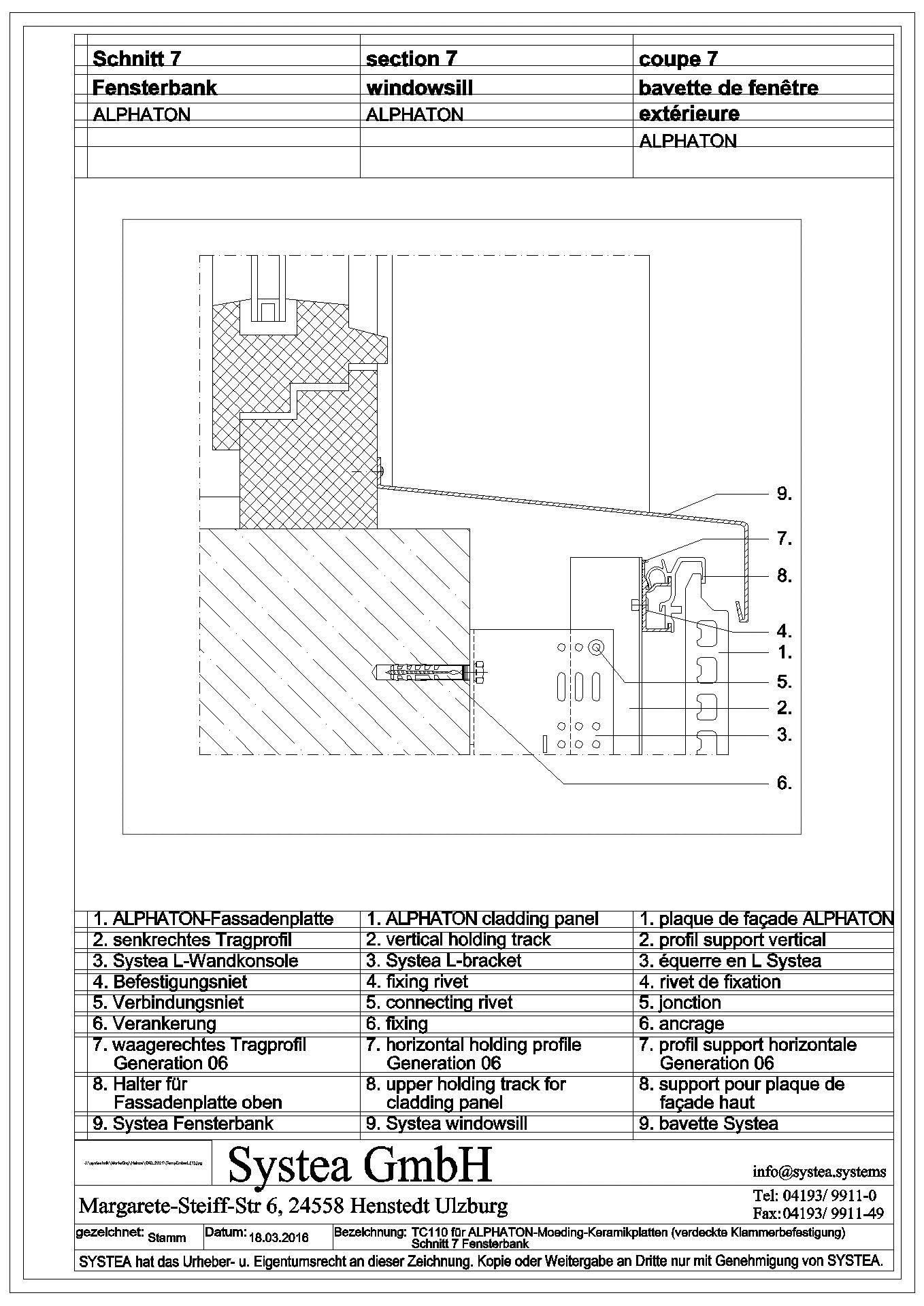
10_TC110 für Moeding-Keramikplatten

SYSTEA

11 CAD-Details zum Thema Aluminium-Profile
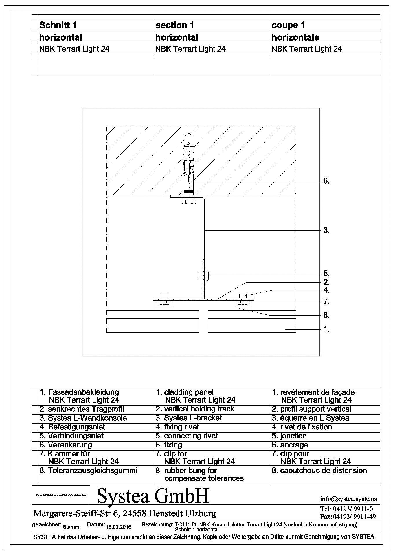
11_TC110 Uk für NBK-Fassadenplatten

SYSTEA

40 CAD-Details zum Thema Aluminium-Profile
12_UBE für ebene Fassadenplatten

SYSTEA

12 CAD-Details zum Thema Aluminium-Profile
13_UBE NG2 und UBE für Naturstein

SYSTEA

14 CAD-Details zum Thema Aluminium-Profile
14_UBEKA für ebene Fassadenplatten

SYSTEA

12 CAD-Details zum Thema Aluminium-Profile
15_ALWI Buchtal KeraTWIN K20

SYSTEA

14 CAD-Details zum Thema Aluminium-Profile
16_KH35 / SZ20 / CS20 für Kassetten aus Verbundmaterial

SYSTEA

8 CAD-Details zum Thema Aluminium-Profile
17_KU35 Verbundkassetten

SYSTEA

19 CAD-Details zum Thema Aluminium-Profile

Ähnliche Suchen

Bitte melden Sie sich an

Um diese Funktion nutzen zu können, müssen Sie bei heinze.de registriert und angemeldet sein.

Hier anmelden
1501845148