13
CAD-Details zu stahl stähle
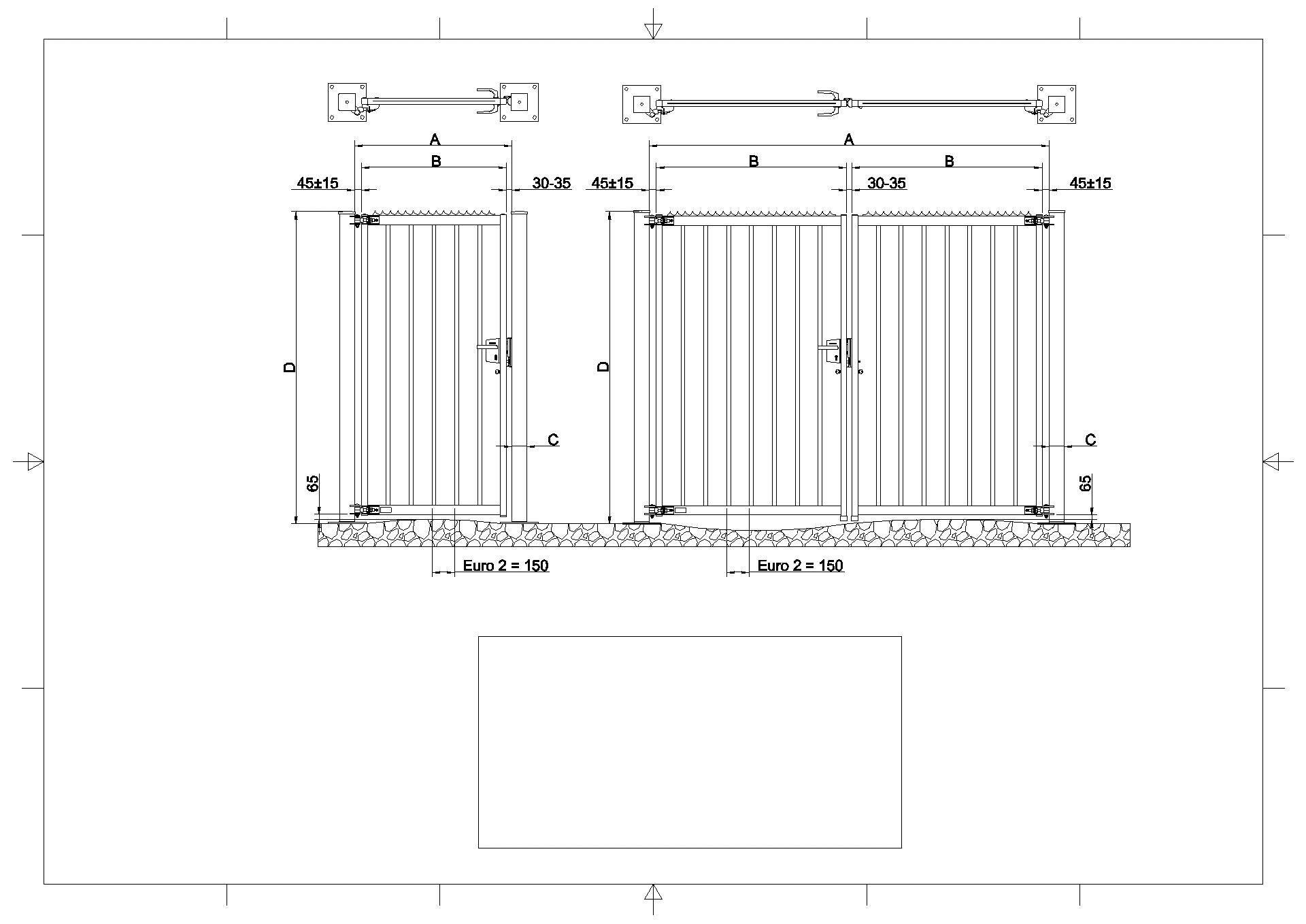
Hier finden Sie Konstruktionszeichnungen, Ausführungsdetails und technische Zeichnungen zum Produktbereich stahl stähle in den wichtigsten CAD-Formaten (DWG und DXF).
Auswahl filtern
13
Hier finden Sie Konstruktionszeichnungen, Ausführungsdetails und technische Zeichnungen zum Produktbereich stahl stähle in den wichtigsten CAD-Formaten (DWG und DXF).
Auswahl filtern
Um diese Funktion nutzen zu können, müssen Sie bei heinze.de registriert und angemeldet sein.
Hier anmelden