4.957
CAD-Details zu Rinnen
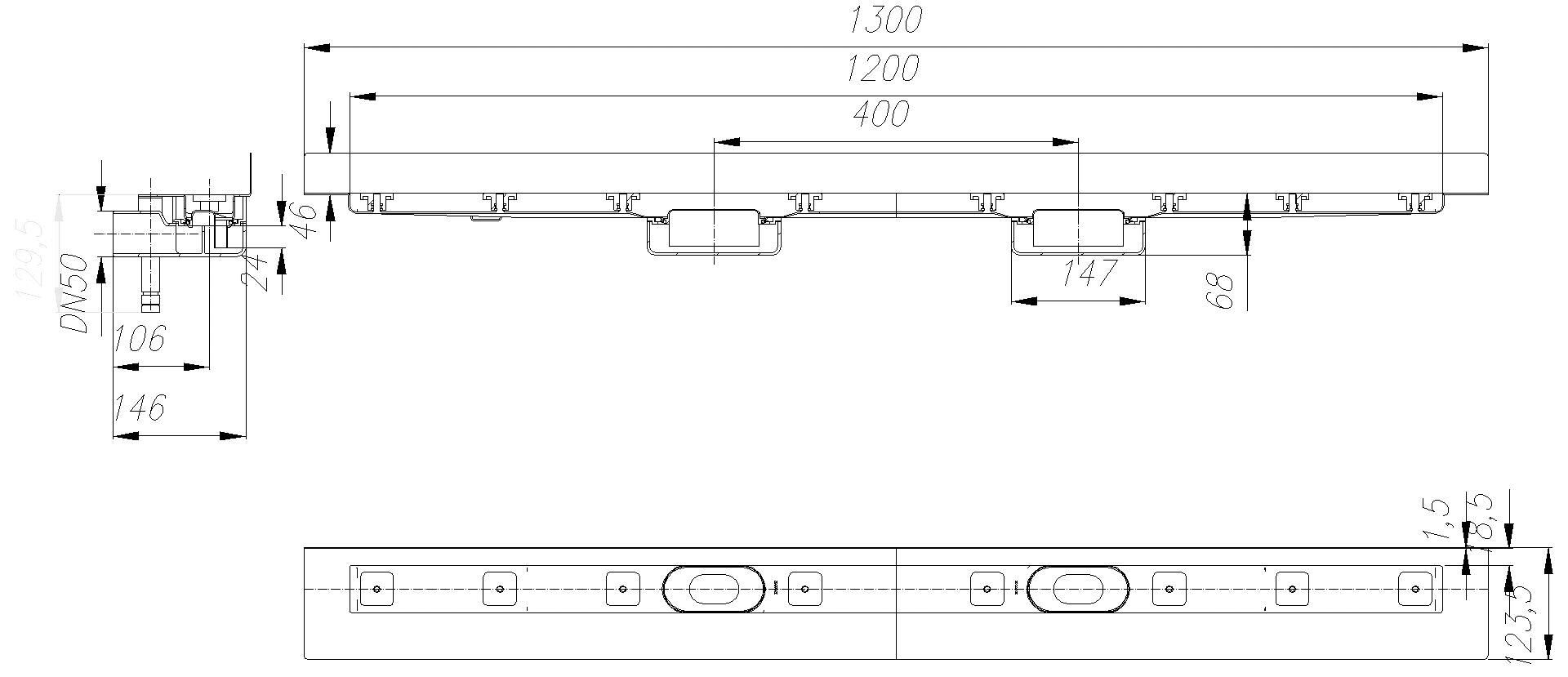
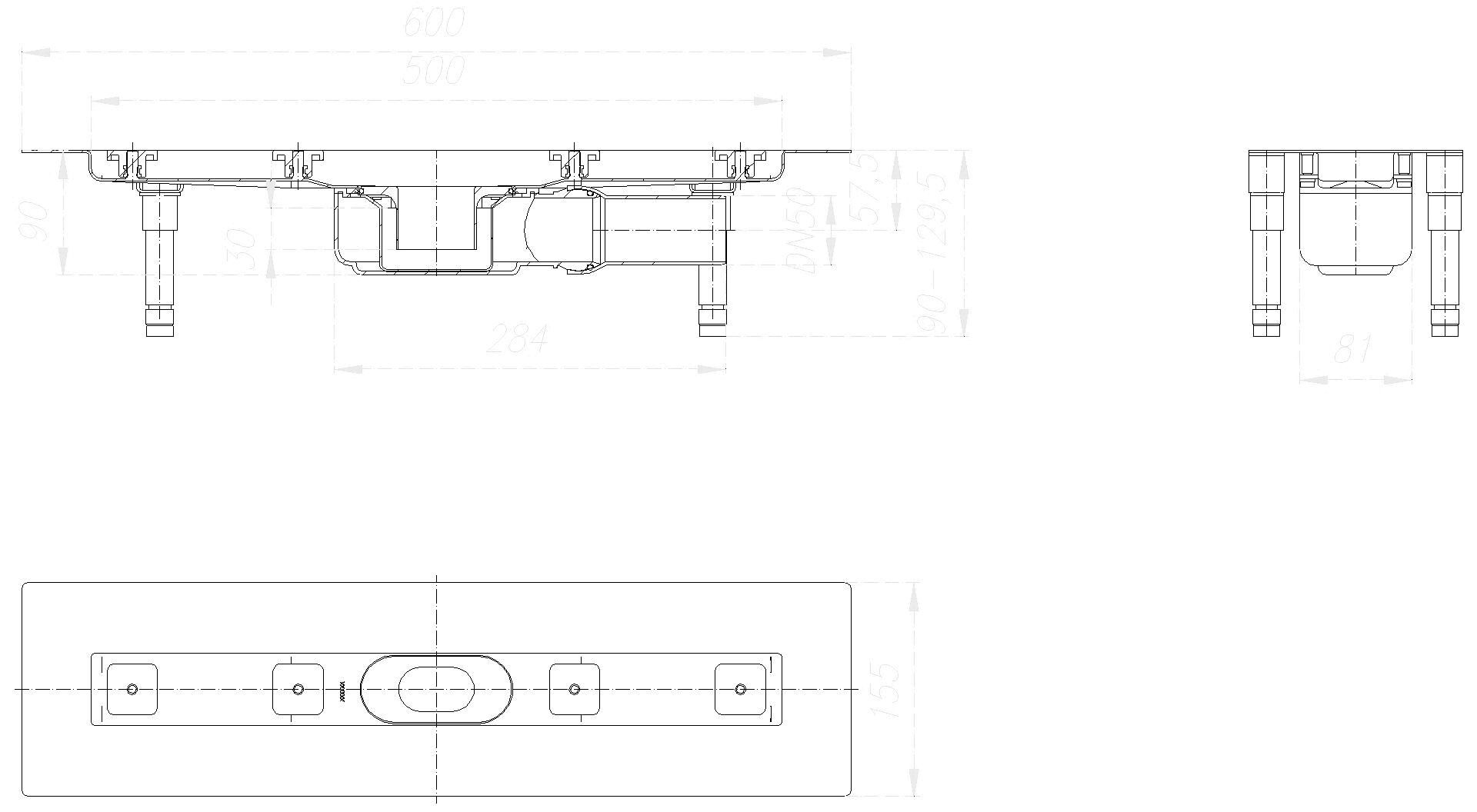
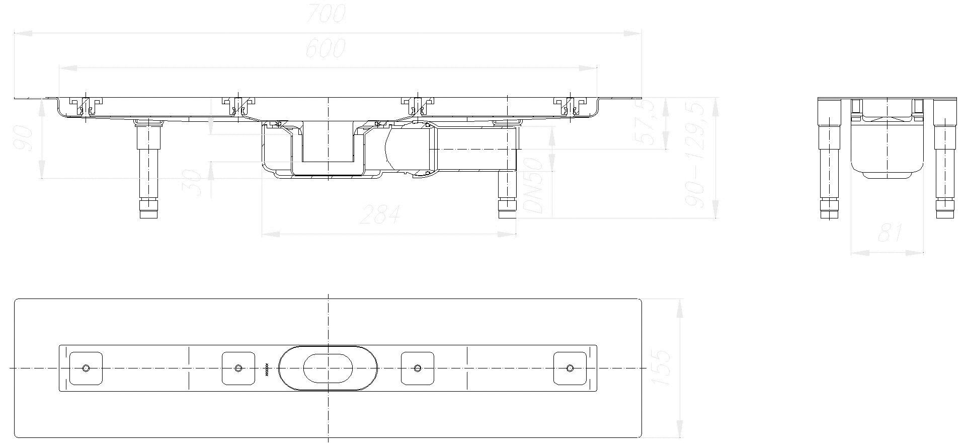
Hier finden Sie Konstruktionszeichnungen, Ausführungsdetails und technische Zeichnungen zum Produktbereich Rinnen in den wichtigsten CAD-Formaten (DWG und DXF).
Auswahl filtern
4.957
Hier finden Sie Konstruktionszeichnungen, Ausführungsdetails und technische Zeichnungen zum Produktbereich Rinnen in den wichtigsten CAD-Formaten (DWG und DXF).
Auswahl filtern
Um diese Funktion nutzen zu können, müssen Sie bei heinze.de registriert und angemeldet sein.
Hier anmelden