917

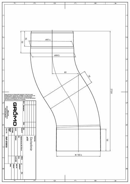
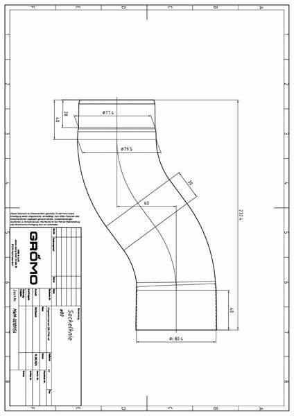
CAD-Details zu Regenfallrohr-Bögen

Hier finden Sie Konstruktionszeichnungen, Ausführungsdetails und technische Zeichnungen zum Produktbereich Regenfallrohr-Bögen in den wichtigsten CAD-Formaten (DWG und DXF).

Suche: Regenfallrohr-Bögen Produktkategorie: Regenfallrohr-Formstücke

Auswahl filtern

Regenfallrohr-Formstücke
01_nach_Einsatzbereich

GUTJAHR Systemtechnik

188 CAD-Details zum Thema Regenfallrohr-Bögen
02_nach_Drainagen

GUTJAHR Systemtechnik

165 CAD-Details zum Thema Regenfallrohr-Bögen
03_nach_Einbausituation

GUTJAHR Systemtechnik

203 CAD-Details zum Thema Regenfallrohr-Bögen

Bitte melden Sie sich an

Um diese Funktion nutzen zu können, müssen Sie bei heinze.de registriert und angemeldet sein.

Hier anmelden
1480160462