79.238

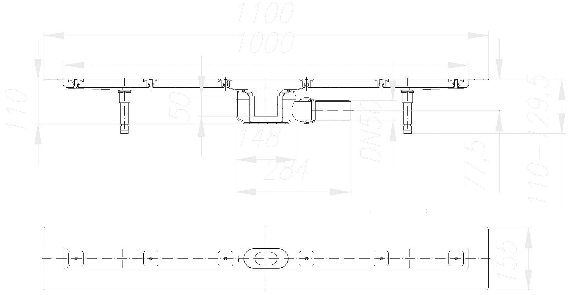
CAD-Details zu system

Hier finden Sie Konstruktionszeichnungen, Ausführungsdetails und technische Zeichnungen zum Produktbereich system in den wichtigsten CAD-Formaten (DWG und DXF).

Suche: system

Auswahl filtern

Bitte melden Sie sich an

Um diese Funktion nutzen zu können, müssen Sie bei heinze.de registriert und angemeldet sein.

Hier anmelden
1391837289