680

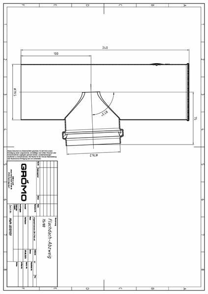
CAD-Details zu Regenfallrohr-Abzweige

Hier finden Sie Konstruktionszeichnungen, Ausführungsdetails und technische Zeichnungen zum Produktbereich Regenfallrohr-Abzweige in den wichtigsten CAD-Formaten (DWG und DXF).

Suche: Regenfallrohr-Abzweige Produktkategorie: Regenfallrohr-Formstücke

Auswahl filtern

Regenfallrohr-Formstücke

Bitte melden Sie sich an

Um diese Funktion nutzen zu können, müssen Sie bei heinze.de registriert und angemeldet sein.

Hier anmelden
1313291163