880

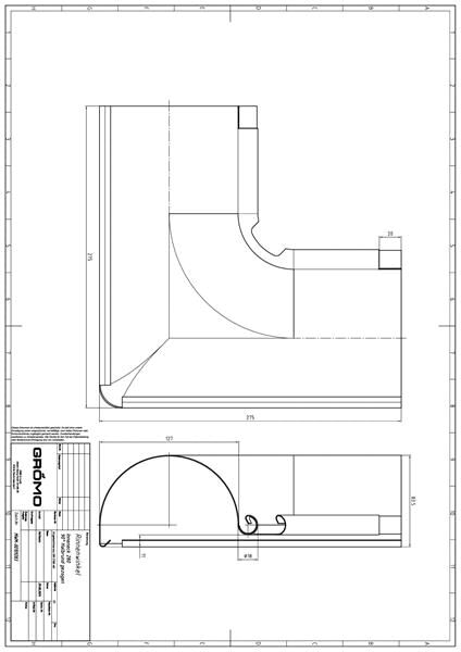
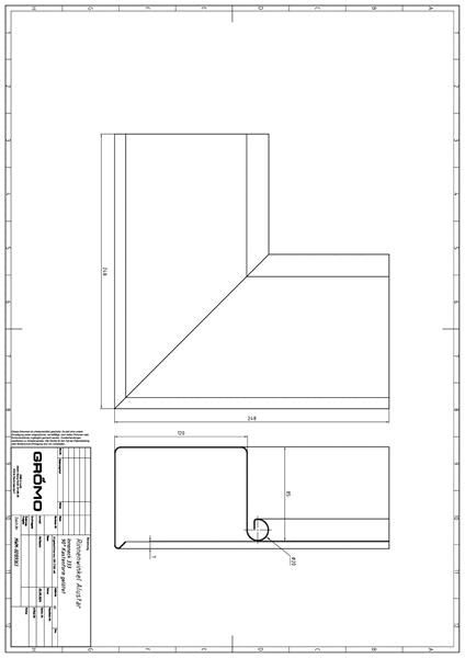
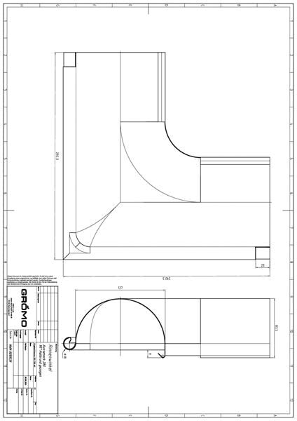
CAD-Details zu Dachrinnen-Winkel

Hier finden Sie Konstruktionszeichnungen, Ausführungsdetails und technische Zeichnungen zum Produktbereich Dachrinnen-Winkel in den wichtigsten CAD-Formaten (DWG und DXF).

Suche: Dachrinnen-Winkel Produktkategorie: Dachrinnenformstücke

Auswahl filtern

Dachrinnenformstücke

Bitte melden Sie sich an

Um diese Funktion nutzen zu können, müssen Sie bei heinze.de registriert und angemeldet sein.

Hier anmelden
1479724848