518

CAD-Details zu Dach-Absturzsicherungen

Hier finden Sie Konstruktionszeichnungen, Ausführungsdetails und technische Zeichnungen zum Produktbereich Dach-Absturzsicherungen in den wichtigsten CAD-Formaten (DWG und DXF).

Suche: Dach-Absturzsicherungen

Auswahl filtern

ABS-Lock DH04-F (für Schiefereindeckung o.ä.)

ABS Safety

1 CAD-Detail zum Thema Dach-Absturzsicherungen
ABS-Lock DH05

ABS Safety

1 CAD-Detail zum Thema Dach-Absturzsicherungen
ABS-Lock DH Basic

ABS Safety

1 CAD-Detail zum Thema Dach-Absturzsicherungen
LUX-top ASP EV 10 II EV 10 III

ST QUADRAT Fall Protection S.A.

2 CAD-Details zum Thema Dach-Absturzsicherungen
LUX-top ASP EV 2

ST QUADRAT Fall Protection S.A.

6 CAD-Details zum Thema Dach-Absturzsicherungen
LUX-top ASP EV 2

ST QUADRAT Fall Protection S.A.

3 CAD-Details zum Thema Dach-Absturzsicherungen
LUX-top ASP EV 2_2s 90°_90° LR

ST QUADRAT Fall Protection S.A.

2 CAD-Details zum Thema Dach-Absturzsicherungen
LUX-top ASP EV 2 Konterplatte

ST QUADRAT Fall Protection S.A.

2 CAD-Details zum Thema Dach-Absturzsicherungen
LUX-top ASP EV 2s

ST QUADRAT Fall Protection S.A.

2 CAD-Details zum Thema Dach-Absturzsicherungen
LUX-top ASP EV 7

ST QUADRAT Fall Protection S.A.

10 CAD-Details zum Thema Dach-Absturzsicherungen
LUX-top ASP EV 7 HFE

ST QUADRAT Fall Protection S.A.

1 CAD-Detail zum Thema Dach-Absturzsicherungen
LUX-top ASP EV 7 II

ST QUADRAT Fall Protection S.A.

1 CAD-Detail zum Thema Dach-Absturzsicherungen
LUX-top ASP EV 9 EV 9 II EV 9 III

ST QUADRAT Fall Protection S.A.

7 CAD-Details zum Thema Dach-Absturzsicherungen
LUX-top ASP EV Konterplatte

ST QUADRAT Fall Protection S.A.

6 CAD-Details zum Thema Dach-Absturzsicherungen
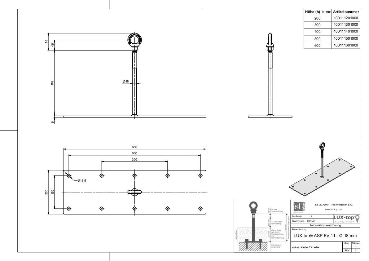
LUX-top ASP EV 11

ST QUADRAT Fall Protection S.A.

2 CAD-Details zum Thema Dach-Absturzsicherungen
13 BALUGA easy

Glassline

9 CAD-Details zum Thema Dach-Absturzsicherungen
Einfache Intensivbegrünungen

Zinco

22 CAD-Details zum Thema Dach-Absturzsicherungen
Extensive Dachbegrünungen

Zinco

87 CAD-Details zum Thema Dach-Absturzsicherungen
Intensive Dachbegrünungen

Zinco

61 CAD-Details zum Thema Dach-Absturzsicherungen
Schräg- und Steildachbegrünungen

Zinco

35 CAD-Details zum Thema Dach-Absturzsicherungen

Bitte melden Sie sich an

Um diese Funktion nutzen zu können, müssen Sie bei heinze.de registriert und angemeldet sein.

Hier anmelden
1401629290