CAD-Detail 11 von 43

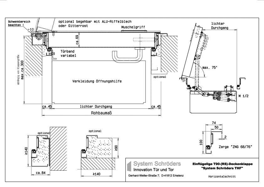
Stahl-Deckenklappe T 90-1 System Schröders THF

System Schröders Türen + Tore


System Schröders Türen + Tore - Stahl-Deckenklappe T 90-1 System Schröders THF

Das von Ihnen ausgewählte CAD-Detail ist Bestandteil einer herstellerspezifischen Zusammenstellung von Details und Konstruktionszeichnungen. Für eine optimale Vorschau und leichtere Auswahl der Zeichnungen leiten wir Sie zu unserem CAD-Manager weiter.

Diese Zusammenstellung beinhaltet 3 CAD-Details.

Passende Inhalte zum CAD-Detail "Stahl-Deckenklappe T 90-1 System Schröders THF"

Passende Produktserien

Deckenklappen, T90 Brandschutz und Rauchschutz für den horizontalen Einbau
Für den Durchstieg von Gebäudedecken mit Feuerschutz und Rauchschutz bietet System Schröders die sichere Lösung: Die System Schröders T90 Feuerschutz-Deckenklappe THF. Wahlweise kann diese feuerbeständige Deckenklappe zusätzlich mit Rauchschutz ausgerüstet werden.
System Schröders Türen FLAT
Flächenbündige Feuerschutztüren für anspruchsvolle Einsatzbereiche: Anspruchsvolle Bauprojekte stellen hohe Anforderungen an die Leistungsfähigkeit von Brandschutzabschlüssen. Für Architekten und Planer spielen zudem optische Aspekte eine wichtige Rolle. Die System Schröders Feuerschutztüren FLAT tragen dem Rechnung. Sie fügen sich funktional und optisch in das Gesamtprojekt.
System Schröders Leichtlauftüren mit Gleitlagern
System Schröders bietet für alle seine bewährten Sicherheitstüren neuartige Leichtlaufbänder. Deren patentierte Gleitlager reduzieren die erforderlichen Öffnungskräfte gegenüber Kugellagern konventioneller Türbänder um 50 % bis 60 %.

Bitte melden Sie sich an

Um diese Funktion nutzen zu können, müssen Sie bei heinze.de registriert und angemeldet sein.

Hier anmelden

Diese Seite weiterempfehlen

1397831680