BaSys - Bartels
Systembeschläge GmbH
Gewerbegebiet Echternhagen 2
32689 Kalletal
Deutschland
Alle Inhalte von BaSys - Bartels Systembeschläge
Produktserien Produkte / BIM-Daten Ausschreibungstexte CAD-Details Architekturobjekte Alle Inhalte anzeigenPassende Suchbegriffe zu BaSys - Bartels Systembeschläge
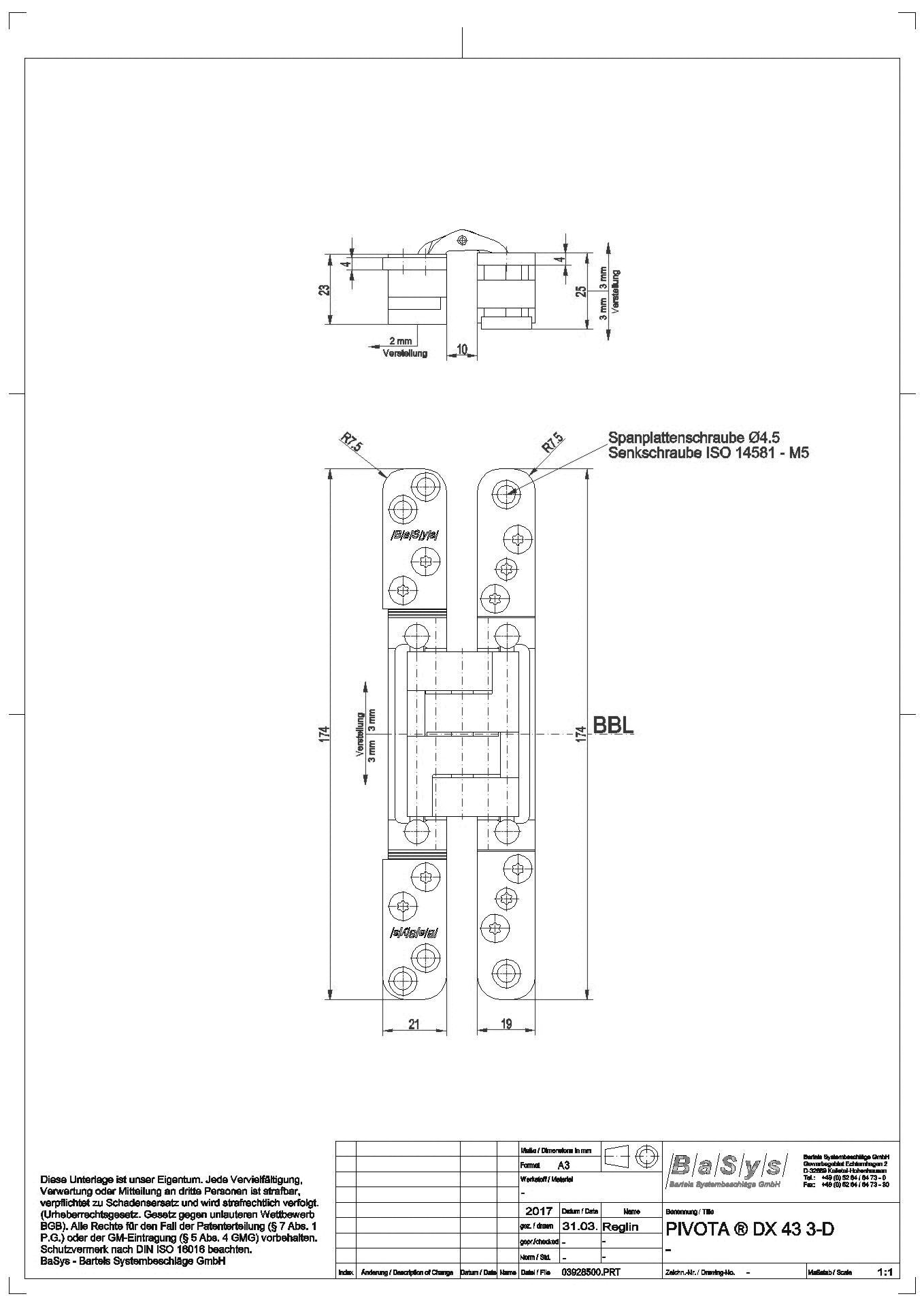
Türbänder Türen Objekttüren Gebäudeschutz Scharniere Brandschutz Objekt-Türbänder Sicherheitstürbänder Brandschutz-Türbänder Brandschutztüren Brandabschlusssysteme Einbruchschutz Türzargen Innentürbänder Mehrzwecktüren Nebeneingangstüren Baubeschläge Zimmertüren Drehflügeltüren Innentürzargen Schließbleche Türband-Einzelteile Wohnungseingangstüren Türband-AufnahmeelementePIVOTA ® DX 43 3-D
BaSys - Bartels Systembeschläge
Passende Inhalte zum CAD-Detail "PIVOTA ® DX 43 3-D"
Passende Produktserie
Passendes Produkt
Passender Ausschreibungstext
Ähnliche Hersteller
Das könnte Sie auch interessieren
- Türdrückergarnituren und Lagertechnik
- Objekttüren und Funktionstüren
- forster Profilsysteme – Bauen im Bestand
- forster presto – Profilsystem für Türen und Fenster ohne Wärmeschutz
- forster fuego light – Profilsystem für Brandschutztüren und Verglasungen
- Novoferm Sicherheitstüren
- Novoferm Multifunktions-Stahltüren - NovoPorta Premio und Plano