Dennis Dworak
Roto Frank Treppen GmbH
Gutenbergstr. 21
86356 Neusäß
Deutschland
Alle Inhalte von Roto Frank Treppen
Produktserien Produktdaten Ausschreibungstexte CAD-Details Architekturobjekte Alle Inhalte anzeigenPassende Suchbegriffe zu Roto Frank Treppen
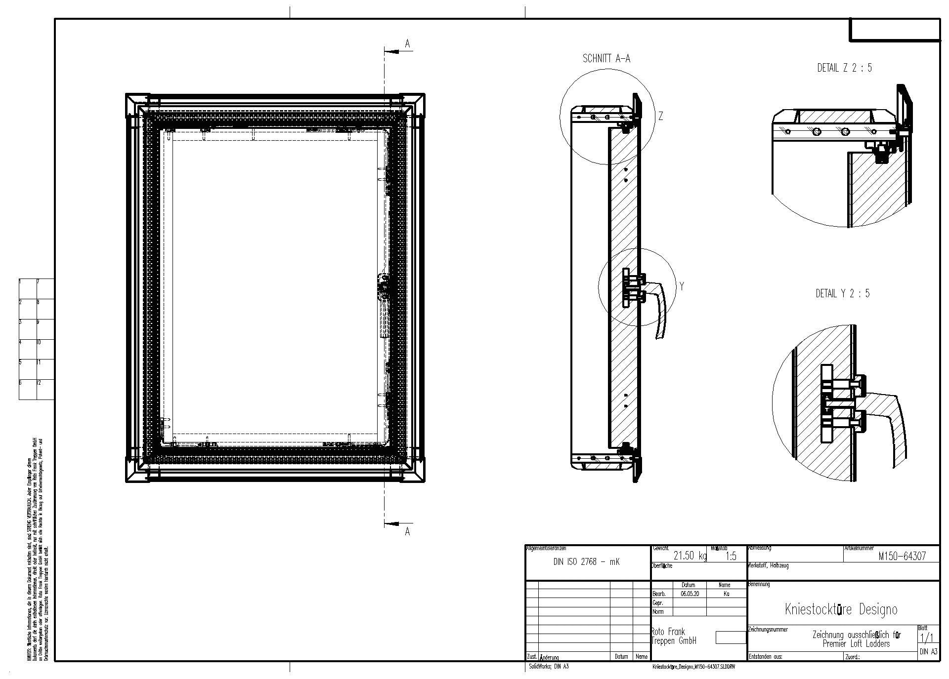
Belichtung - Tageslicht Tageslichtnutzung Dachterrassen Dachausstiege Außendämmung Ausstiegsfenster Flachdach Wärmebrückendämmung Flachdachbelichtung Dachbelichtung Dachausstiegs-Klappen Flachdachausstiege Bodentreppen Einschubtreppen Falttreppen Notausstiegfunktion Flachdach-Fluchtwege Dachterrassen-Ausstiege Wartungstreppen Brandschutz-Bodentreppen Brandschutz-Dachluken Treppen Innentreppen Dächer DachbödenKniestocktüre Designo
Roto Frank Treppen
Das von Ihnen ausgewählte CAD-Detail ist Bestandteil einer herstellerspezifischen Zusammenstellung von Details und Konstruktionszeichnungen. Für eine optimale Vorschau und leichtere Auswahl der Zeichnungen leiten wir Sie zu unserem CAD-Manager weiter.
Diese Zusammenstellung beinhaltet 1 CAD-Detail.
Passende Inhalte zum CAD-Detail "Kniestocktüre Designo"
Passende Produktserie
Passendes Produkt
Passender Ausschreibungstext
Ähnliche Hersteller
Das könnte Sie auch interessieren