CAD-Detail 8.289 von 14.840

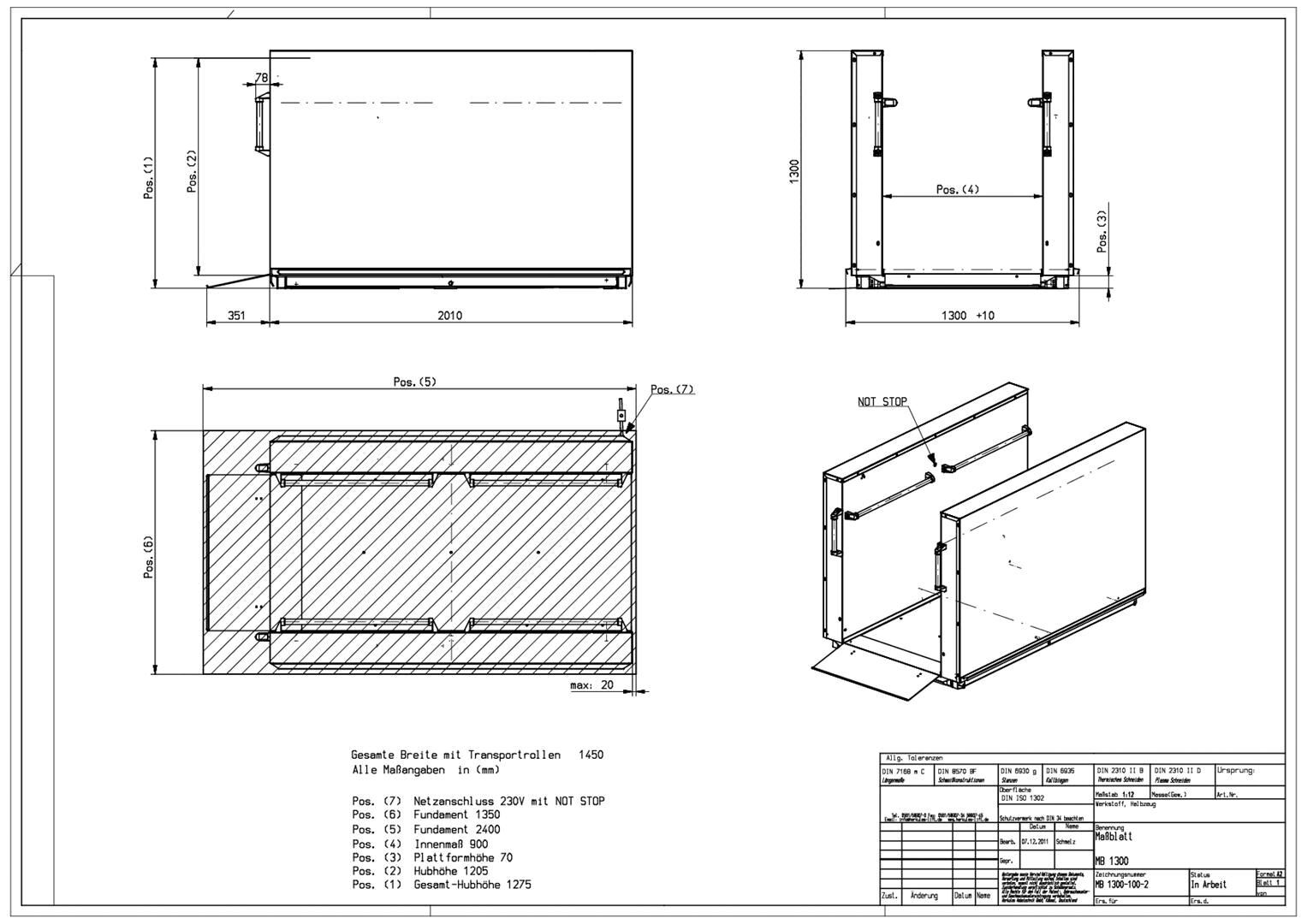
Hublift MB1300

Liftwerk


Liftwerk - Hublift MB1300

Das von Ihnen ausgewählte CAD-Detail ist Bestandteil einer herstellerspezifischen Zusammenstellung von Details und Konstruktionszeichnungen. Für eine optimale Vorschau und leichtere Auswahl der Zeichnungen leiten wir Sie zu unserem CAD-Manager weiter.

Diese Zusammenstellung beinhaltet 12 CAD-Details.

Passende Inhalte zum CAD-Detail "Hublift MB1300"

Passende Produktserie

Hublifte und Hebebühnen für den barrierefreien Zugang
Hublifte und Hebebühnen für den barrierefreien Zugang mobilitätseingeschränkter Personen, elektrischer Rollstühle und Elektro-Mobile. Rollstuhl-Hublifte und Hebebühnen von Liftwerk sind stufenlos einstellbar und geeignet zur Sofort-Montage. Das Liftwerk Angebot reicht von Hubliften mit minimalem Platzbedarf über bodenebene Rollstuhl-Hebebühnen bis zu vertikalen Plattformliften für Innen und Außen.

Bitte melden Sie sich an

Um diese Funktion nutzen zu können, müssen Sie bei heinze.de registriert und angemeldet sein.

Hier anmelden

Diese Seite weiterempfehlen

1401592358