Wellhöfer Treppen
GmbH & Co. KG
Max-Mengeringhausen-Str. 1
97084 Würzburg
Deutschland
Tel. +49 931 614050
info@wellhoefer.de
www.wellhoefer.de
Kontakt aufnehmen
phone
Rückruf
euro_symbol
Preisanfrage
import_contacts
Planungsunterlagen
location_on
Bezugsquellen
Alle Inhalte von Wellhöfer Treppen
Produktserien Ausschreibungstexte CAD-Details Architekturobjekte Alle Inhalte anzeigenPassende Suchbegriffe zu Wellhöfer Treppen
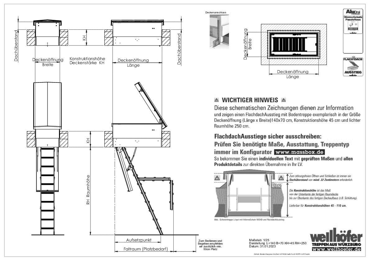
Treppen Innentreppen Dächer Dachausstiege Dachböden Bodentreppen Nebentreppen Treppenbausysteme Brandschutz Flachdach Notausstiegfunktion Einschubtreppen Brandschutz-Bodentreppen Dachausstiegs-Klappen Türen Revisionsklappen Falttreppen Flachdach-Fluchtwege Holz-Treppen Klappen Dachoberlichter LichtkuppelnFlachdachAusstieg mit Bodentreppe AluDrei WärmeSchutz WSPH Passivhaus
Wellhöfer Treppen
Passende Inhalte zum CAD-Detail "FlachdachAusstieg mit Bodentreppe AluDrei WärmeSchutz WSPH Passivhaus"
Passende Produktserie
Passende Ausschreibungstexte
Ähnliche Hersteller
Das könnte Sie auch interessieren