CAD-Detail 3.428 von 40.855

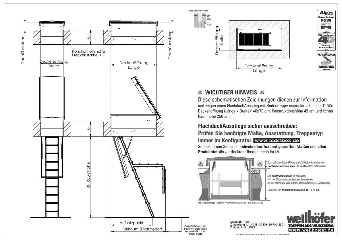
FlachdachAusstieg mit Bodentreppe AluDrei FeuerSchutz FS30 WärmeSchutz WS4D

Wellhöfer Treppen


Wellhöfer Treppen - FlachdachAusstieg mit Bodentreppe AluDrei FeuerSchutz FS30 WärmeSchutz WS4D

Passende Inhalte zum CAD-Detail "FlachdachAusstieg mit Bodentreppe AluDrei FeuerSchutz FS30 WärmeSchutz WS4D"

Passende Produktserie

Bodentreppen und Scherentreppen von Wellhöfer
Wellhöfer bietet schadstoffarme und klimaneutrale Bodentreppen aus Holz, Aluminium oder Stahl und Aluminium-Scherentreppen. Ausstattungen für alle Anforderungen von Wärmeschutz, Brandschutz, Bauordnung, DIN und QNG. Einbausicherheit durch passende Maßanfertigungen und geprüfte Deckenanschluss-Systeme. Wellhöfer-Produkte sind vom Sentinel Haus Institut wohngesund geprüft.

Bitte melden Sie sich an

Um diese Funktion nutzen zu können, müssen Sie bei heinze.de registriert und angemeldet sein.

Hier anmelden

Diese Seite weiterempfehlen

1402082078