Staka Bauprodukte
GmbH & Co. KG
Alt-Heerdt 104
40549 Düsseldorf
Deutschland
Tel. +49 211 63553218
flachdachausstiege@staka.com
staka-flachdachausstiege.de
Kontakt aufnehmen
phone
Rückruf
euro_symbol
Preisanfrage
import_contacts
Planungsunterlagen
location_on
Bezugsquellen
Alle Inhalte von Staka
Produktserien Produktdaten Ausschreibungstexte CAD-Details Architekturobjekte Alle Inhalte anzeigenPassende Suchbegriffe zu Staka
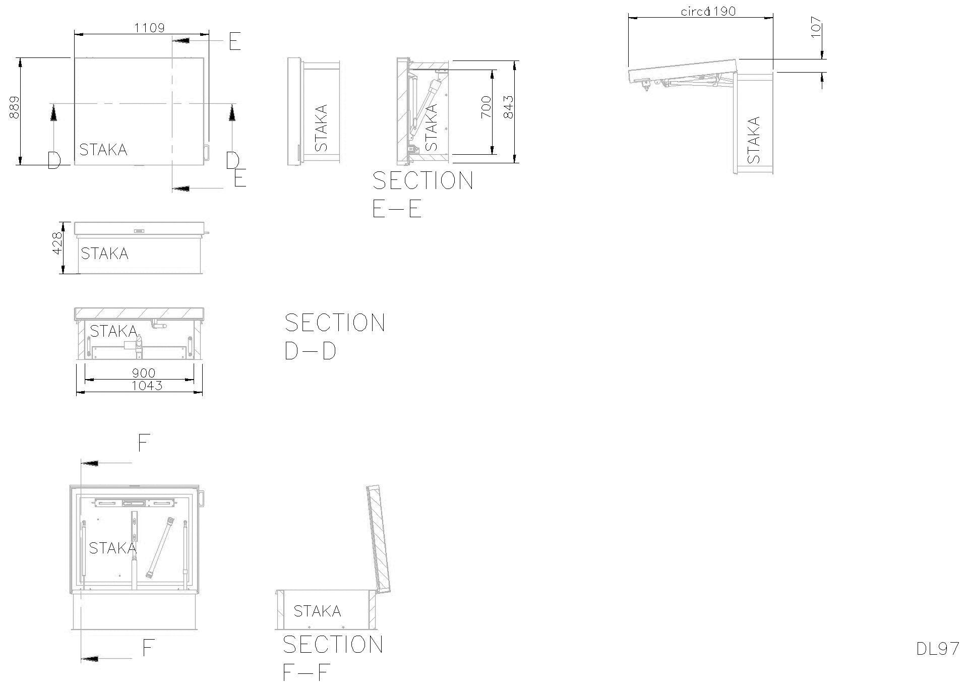
Dachausstiege Dachluken Dachbelichtung Dachausstiegs-Klappen Flachdachausstiege Notausstiegfunktion Wartung Flachdach-Fluchtwege Klappen Flachdach Dächer Treppen Rauchschutz Brandschutz Brandschutz-Dachluken Rauchabzugsklappen Leitern Wärmebrückendämmung Wärmeschutz Flachdachdämmung Außendämmung Dachdämmung Treppenbausysteme NebentreppenFlachdachausstieg DL97 elektrisch
Staka
Passende Inhalte zum CAD-Detail "Flachdachausstieg DL97 elektrisch"
Passende Produktserie
Passende Produkte
Passende Ausschreibungstexte 15
Alle anzeigenÄhnliche Hersteller
Das könnte Sie auch interessieren