CAD-Detail 3.395 von 40.864

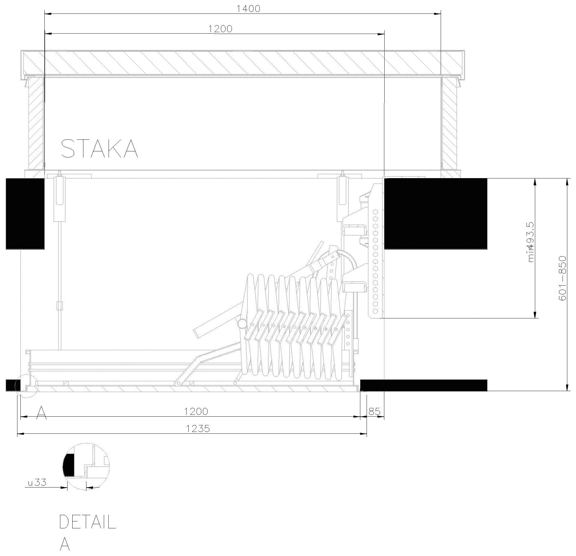
Flachdachausstieg DL147 mit Scherentreppe und Deckenhohlraumüberbrückung (2 Stufen)

Staka


Staka - Flachdachausstieg DL147 mit Scherentreppe und Deckenhohlraumüberbrückung (2 Stufen)

Passende Inhalte zum CAD-Detail "Flachdachausstieg DL147 mit Scherentreppe und Deckenhohlraumüberbrückung (2 Stufen)"

Passende Produktserie

Flachdachausstiege, Dachluken und Sicherheitszubehör: Staka
Flachdachausstiege, Dachluken und passende Treppen, Leitern sowie Sicherheitszubehör von Staka für den Dachzugang von Flachdächern. Der ThermoTop Flachdachausstieg mit effektiver thermisch getrennter Konstruktion und patentiertem Deckel-Schließsystem erzielt einen U-Wert von 0,21 W/m2·K und bietet eine langlebige, robuste und nachhaltige Dachluken-Lösung.

Bitte melden Sie sich an

Um diese Funktion nutzen zu können, müssen Sie bei heinze.de registriert und angemeldet sein.

Hier anmelden

Diese Seite weiterempfehlen

1386901799