593

CAD-Details zu Türschließtechnik

Hier finden Sie Konstruktionszeichnungen, Ausführungsdetails und technische Zeichnungen zum Produktbereich Türschließtechnik in den wichtigsten CAD-Formaten (DWG und DXF).

Auswahl filtern

BTS 80

dormakaba

13 CAD-Details zum Thema Türschließtechnik
ITS 96

dormakaba

35 CAD-Details zum Thema Türschließtechnik
BTS 75 V

dormakaba

2 CAD-Details zum Thema Türschließtechnik
BTS 84

dormakaba

1 CAD-Detail zum Thema Türschließtechnik
ITS 96 FL

dormakaba

1 CAD-Detail zum Thema Türschließtechnik
RTS 85

dormakaba

3 CAD-Details zum Thema Türschließtechnik
SR 390

dormakaba

1 CAD-Detail zum Thema Türschließtechnik
TS 71

dormakaba

1 CAD-Detail zum Thema Türschließtechnik
TS 72

dormakaba

1 CAD-Detail zum Thema Türschließtechnik
TS 73 V

dormakaba

1 CAD-Detail zum Thema Türschließtechnik
TS 83

dormakaba

3 CAD-Details zum Thema Türschließtechnik
TS 90 Impulse

dormakaba

1 CAD-Detail zum Thema Türschließtechnik
TS 93

dormakaba

16 CAD-Details zum Thema Türschließtechnik
TS 97

dormakaba

2 CAD-Details zum Thema Türschließtechnik
TS 99

dormakaba

3 CAD-Details zum Thema Türschließtechnik
Bodentürschließer

GEZE

42 CAD-Details zum Thema Türschließtechnik
Integrierte Türschließer

GEZE

32 CAD-Details zum Thema Türschließtechnik
Türkomfort

GEZE

28 CAD-Details zum Thema Türschließtechnik
Türschließer

GEZE

124 CAD-Details zum Thema Türschließtechnik
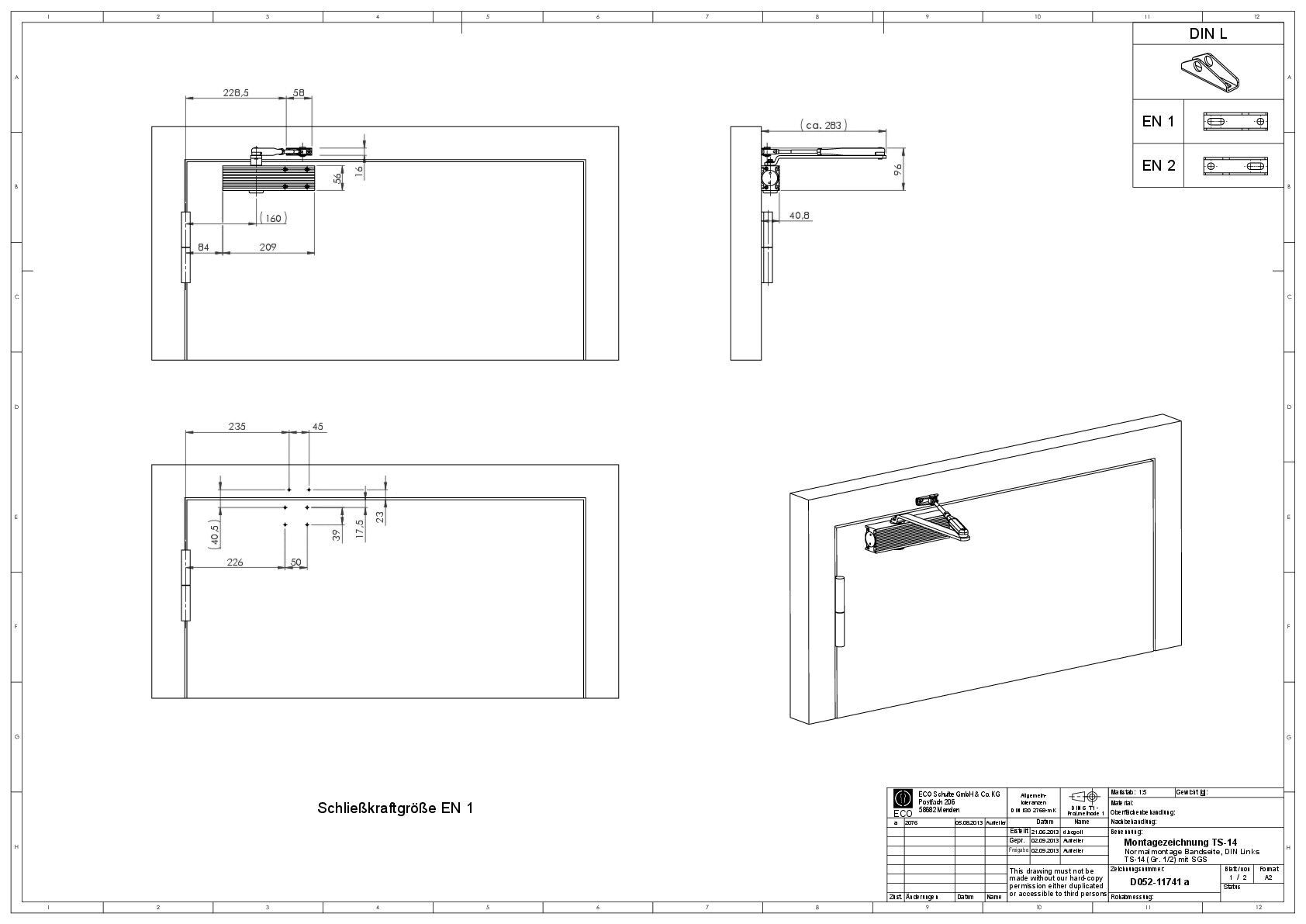
Türschliessertechnik

ECO Schulte

269 CAD-Details zum Thema Türschließtechnik
Beschläge

Adolf Würth

4 CAD-Details zum Thema Türschließtechnik
RWA K 600 T

GEZE

10 CAD-Details zum Thema Türschließtechnik

Bitte melden Sie sich an

Um diese Funktion nutzen zu können, müssen Sie bei heinze.de registriert und angemeldet sein.

Hier anmelden
1358237082