Text 6 von 57

Feuerschutzstahltür T 30-1 einflügelig System Schröders TSN-1

System Schröders Türen + Tore


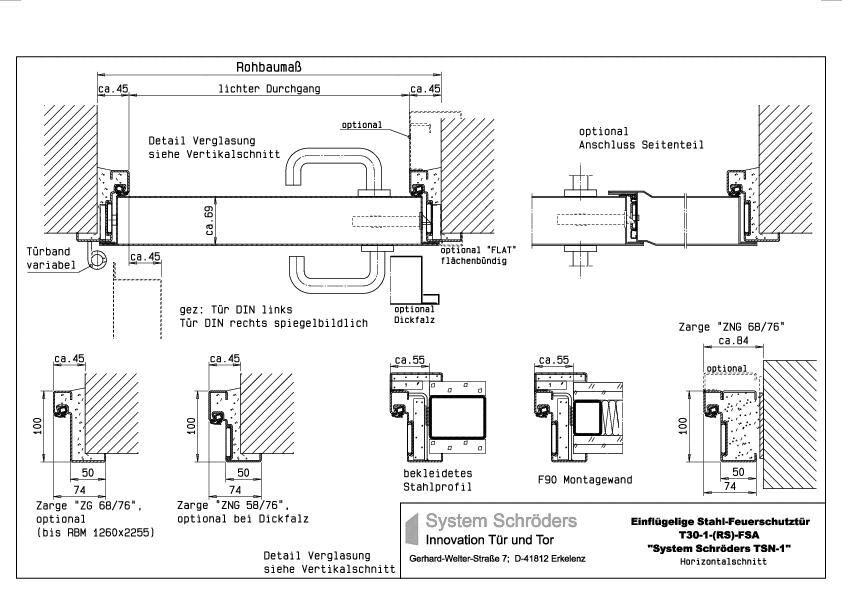
T 30-1-Stahltür/-klappe „System Schröders TSN-1“


Einflügelige feuerhemmende Stahltür/-klappe
Allgemeine bauaufsichtliche Zulassung Nr. Z-6.20-1909
mit Übereinstimmungszeichen
als Leichtlauftür mit patentierten Gleitlagern

Rohbaubreite: _________ mm
Rohbauhöhe:__________ mm

DIN Richtung
( ) Links
( ) Rechts

( ) Rauchschutz S200 nach EN 1634-3 mit absenkbarer Bodendichtung

Einbruchschutz EN 1627-1630
( ) RC-1
( ) RC-2
( ) RC-3
( ) RC-4

Beschusshemmung nach EN 1522
( ) FB4
( ) FB6

( ) Schallschutz EN ISO 10140-1 /EN ISO 717
(bis RW,(C;Ctr) = 53 dB) ____ dB

( ) Wärmegedämmt (UD ≥ 1,3 W/m2K) ____ W/m2K
( ) erhöhte Luftdichtigkeit
(bis 4 nach nach EN 12207) Klasse _____

( ) Widerstandsfähigkeit gegen Windlast
(bis Klasse C5 nach EN 12210) Klasse C_____

( ) Schlagregendichtheit nach
(bis Klasse 8A nach EN 12208) Klasse _____

( ) Druck- /Sogwiderstand 5.000 Pa nach DIN EN 12211

( ) Explosionsschutz (ATEX)

( ) Flächenbündige Optik (FLAT)

Blattdicke: 68 mm

Blechdicke:
( ) 1,5 mm
( ) 1,0 mm

Blechausführung:
( ) verzinkt

( ) Edelstahl V2A
( ) Edelstahl V4A

Oberfläche:
( ) grundiert
( ) pulverbeschichtet in RAL _________

Seiten-/Oberteil:
( ) mit Seitenteil Breite _________mm
( ) mit Glasausschnitt _______mm x______ mm
( ) mit Oberteil Höhe _________mm
( ) mit Glasausschnitt _______mm x______ mm

Schloss:
( ) Einfallenschloss nach EN 12209 / DIN 18250
( ) Panikschloss mit Panikfunktion
( ) B ( ) C ( ) D ( ) E
( ) als Selbstverriegelndes Panikschloss
( ) Sonderschloss __________________

Beschlag:
( ) Drückergarnitur oder ( ) Wechselgarnitur
( ) Rosette ( ) Kurzschild oder ( ) Langschild
( ) Kunststoff ( ) Aluminium oder ( ) Edelstahl
( ) Sonderbeschlag _________________

Schließung:
( ) Federband
( ) Türschließer mit Gestänge DIN EN 1154
( ) Türschließer mit Gleitschiene DIN EN 1154
( ) Drehflügelantrieb
( ) Sonderschließer _________________

Bänder:
( ) 2-teilige KO-Bänder 200/16/5 mit Gleitlagern
( ) 3-teilige KO-Bänder 200/16/5 mit Gleitlagern
( ) Objektbänder 3D

Material Bänder:
( ) verzinkt
( ) Edelstahl

Zarge:
ZNG mit bündig eingeklemmter THELESOL-Brandschutzleiste
mit EPDM-Gummidichtung oder Silikon Gummidichtung
( ) Eckzarge
( ) Eckzarge mit angesetzter Umfassungszarge
Wanddicke ______________mm
( ) Blockzarge für stumpfen Einbau
( ) Zarge vierseitig

Bodendichtung:
( ) ohne
( ) absenkbare Bodendichtung
( ) Gleitdichtung

Verglasung:
( ) Rechteckverglasung _________mm x________ mm
( ) Bullauge Ø 450 mm

Einbau:
( ) in Mauerwerk/Beton
( ) in Porenbeton
( ) in Montagewand
( ) in bekleidete Stahlträger
( ) ______________________________

( ) in großer Höhe (> 500 mm über OKF)

Zusatzausstattung:
( ) Magnetkontakt ____________
( ) Riegelkontakt ____________
( ) elektrischer Türöffner ____________
( ) Durchbruchmelder ____________
( ) Erdung ____________
( ) Feststellanlage ____________
( ) Spion ____________
( ) ______________________________
( ) ______________________________

Weitere Informationen:

Theo Schröders Entwicklung und Beratung GmbH
Zechenring 23, 41836 Hückelhoven
Tel. 02433-93901-60
info@system-schroeders.de
www.system-schroeders.de

  • Menge: ..........
  • Einheit: St
  • EP: ..........
  • GP: ..........

Passende Inhalte zum Ausschreibungstext "Feuerschutzstahltür T 30-1 einflügelig System Schröders TSN-1"

Passende Produktinformationen

T30/T90 Feuerschutztüren mit Drehflügel mit Zulassung
Die lizenzierten Fertigungsbetriebe von System Schröders bieten feurbeständige (T90) sowie feuerhemmende (T30) Feuerschutztüren nach DIN 4102 wahlweise mit weiteren Leistungseigenschaften wie Rauchschutz, Einbruchschutz, Schallschutz, Wärmedämmung, erhöhter Luftdichtigkeit und Druck-/Sogwiderstand an.
System Schröders Türen FLAT
Flächenbündige Feuerschutztüren für anspruchsvolle Einsatzbereiche: Anspruchsvolle Bauprojekte stellen hohe Anforderungen an die Leistungsfähigkeit von Brandschutzabschlüssen. Für Architekten und Planer spielen zudem optische Aspekte eine wichtige Rolle. Die System Schröders Feuerschutztüren FLAT tragen dem Rechnung. Sie fügen sich funktional und optisch in das Gesamtprojekt.
System Schröders Leichtlauftüren mit Gleitlagern
System Schröders bietet für alle seine bewährten Sicherheitstüren neuartige Leichtlaufbänder. Deren patentierte Gleitlager reduzieren die erforderlichen Öffnungskräfte gegenüber Kugellagern konventioneller Türbänder um 50 % bis 60 %.

Bitte melden Sie sich an

Um diese Funktion nutzen zu können, müssen Sie bei heinze.de registriert und angemeldet sein.

Hier anmelden

Diese Seite weiterempfehlen

1454640398