Dennis Dworak
Roto Frank Treppen GmbH
Gutenbergstr. 21
86356 Neusäß
Deutschland
Alle Inhalte von Roto Frank Treppen
Produktinformationen Produktdaten Ausschreibungstexte CAD-Details Architekturobjekte Alle Inhalte anzeigenPassende Suchbegriffe zu Roto Frank Treppen
Belichtung - Tageslicht Tageslichtnutzung Dachterrassen Dachausstiege Außendämmung Ausstiegsfenster Flachdach Wärmebrückendämmung Flachdachbelichtung Dachbelichtung Dachausstiegs-Klappen Flachdachausstiege Bodentreppen Einschubtreppen Falttreppen Notausstiegfunktion Flachdach-Fluchtwege Dachterrassen-Ausstiege Wartungstreppen Brandschutz-Bodentreppen Brandschutz-Dachluken Treppen Innentreppen Dächer DachbödenRoto Frank Treppen Bodentreppen Cadet 3 Norm
Dieses Produkt von Roto Frank Treppen gibt es in 4 Varianten
Beschreibung
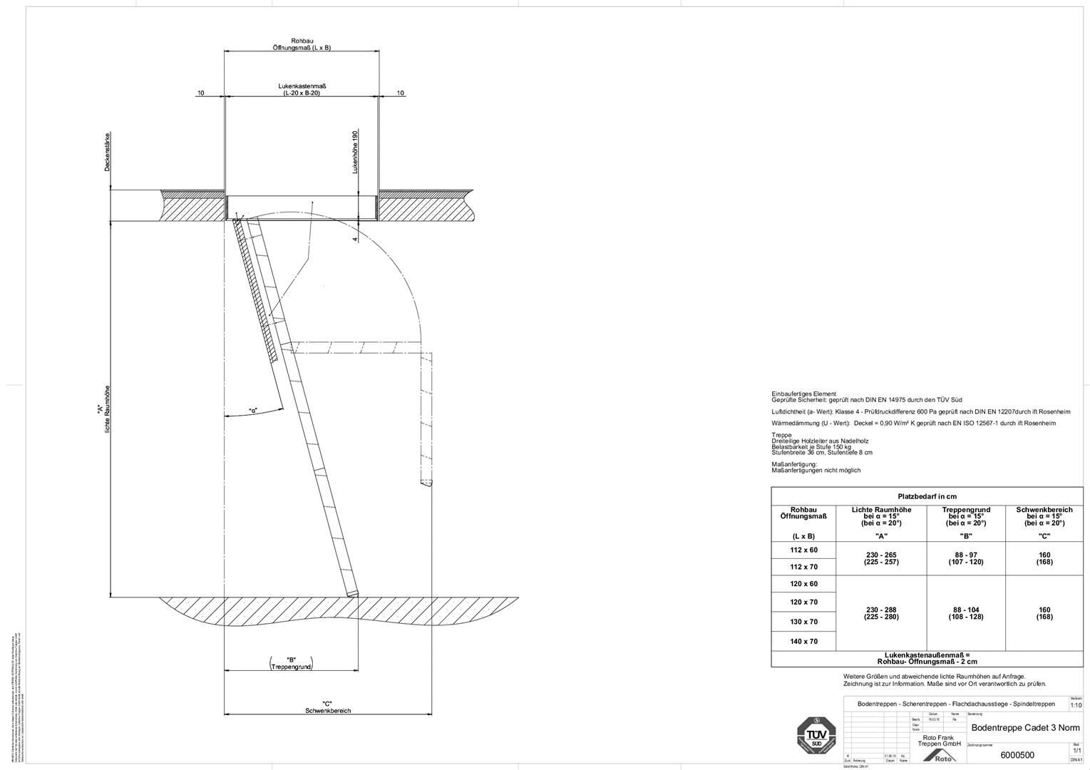
Die klassische Bodentreppe Cadet 3 Norm steht für die traditionelle Bodentreppe in vielen Normgrößen. Die Unterseite des weißen Deckels kann verkleidet werden. Der optisch ansprechende Lukenkasten ist rundum weiß und wird mit einer Hohlkammer-Deckeldichtung ausgestattet. Dieses Produkt ist für den Einbau in eine Warmdachsituation geeignet.Downloads
Dokumente und Planungshilfen
Produkteigenschaften
Produktkategorie
Treppen
Gebäude-Bauteile
Warm-Flachdach
Dachböden
Treppen
Schutzfunktionen
Notausstiegfunktion
Untergründe, Lage
Innen
Art der Verriegelung
Bedienung
Holzart
Klasse Luftdurchlässigkeit
Werkstoff Trag- und Trittkonstruktion
Breite Trittstufe (mm)
max. Belastbarkeit (kg)
Tiefe Trittstufe (mm)
Dichtung
Umlaufende Dichtung
Passende Inhalte zum Produkt "Roto Frank Treppen Bodentreppen Cadet 3 Norm"
Passende Produktinformationen
Passender Ausschreibungstext
Passendes CAD-Detail
Ähnliche Hersteller
Das könnte Sie auch interessieren
Weitere Produkte von Roto Frank Treppen
- Roto Frank Treppen Bodentreppe MR Maßrenovierung
- Roto Frank Treppen Bodentreppen Designo
- Roto Frank Treppen Bodentreppen Designo Passivhaus
- Roto Frank Treppen Bodentreppen profiLine F30
- Roto Frank Treppen Bodentreppen profiLine F30 Plus
- Roto Frank Treppen Bodentreppen profiLine F60
- Roto Frank Treppen Bodentreppen Quadro 3