274

CAD-Details zu Belichtung - Tageslicht

Hier finden Sie Konstruktionszeichnungen, Ausführungsdetails und technische Zeichnungen zum Produktbereich Belichtung - Tageslicht in den wichtigsten CAD-Formaten (DWG und DXF).

Auswahl filtern

MEA Bautechnik
Beton-Lichtschacht MEAVECTOR

MEA Bautechnik

24 CAD-Details zum Thema Belichtung - Tageslicht
GFK-Lichtschacht MEAMAX

MEA Bautechnik

18 CAD-Details zum Thema Belichtung - Tageslicht
GFK-Lichtschacht MEAMULTINORM 3-in-1

MEA Bautechnik

32 CAD-Details zum Thema Belichtung - Tageslicht
GFK-Lichtschacht MEAMULTINORM Tiefe 70cm

MEA Bautechnik

28 CAD-Details zum Thema Belichtung - Tageslicht
PVC-Aufsatz MEAFLEX zu Beton-Lichtschacht

MEA Bautechnik

1 CAD-Detail zum Thema Belichtung - Tageslicht
Zargenfenster MEALUXIT

MEA Bautechnik

44 CAD-Details zum Thema Belichtung - Tageslicht
Zargenfenster MEATHERMO AQUA und AQUA PLUS

MEA Bautechnik

41 CAD-Details zum Thema Belichtung - Tageslicht
Stahlkellerfenster MEALIT

MEA Bautechnik

2 CAD-Details zum Thema Belichtung - Tageslicht
PVC-Aufsatz MEAFLEX zu GFK-Lichtschacht

MEA Bautechnik

3 CAD-Details zum Thema Belichtung - Tageslicht
Kunststoff-Fenster MEALON KOMFORT

MEA Bautechnik

1 CAD-Detail zum Thema Belichtung - Tageslicht
Kunststoff-Fenster MEALON KOMFORT mit MEALÜFT AIR

MEA Bautechnik

4 CAD-Details zum Thema Belichtung - Tageslicht
Kunststoff-Fenster MEALON PREMIUM

MEA Bautechnik

1 CAD-Detail zum Thema Belichtung - Tageslicht
Perimeter-Abdeckrahmen MEAFRAME

MEA Bautechnik

8 CAD-Details zum Thema Belichtung - Tageslicht
Zargenfenster MEALUXIT mit MEALÜFT AIR

MEA Bautechnik

4 CAD-Details zum Thema Belichtung - Tageslicht
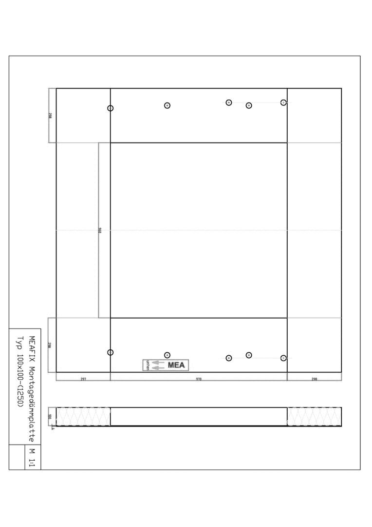
Montagedämmplatte MEAFIX für Beton-Lichtschächte MEAVECTOR

MEA Bautechnik

33 CAD-Details zum Thema Belichtung - Tageslicht
Montagedämmplatte MEAFIX für GFK-Lichtschächte

MEA Bautechnik

30 CAD-Details zum Thema Belichtung - Tageslicht

Bitte melden Sie sich an

Um diese Funktion nutzen zu können, müssen Sie bei heinze.de registriert und angemeldet sein.

Hier anmelden
1454970303